物件掲載企業数:297|賃貸物件:3,611件|売買物件:3,335件|今週の登録物件:334
閲覧中のブラウザ(インターネットエクスプローラー)は非推奨ブラウザです。
物件が正しく表示されなかったり、正しく検索されない場合があります。最新のブラウザ(Google Chrome・Edgeなど)にてご利用お願いいたします。
  

全エリア月極駐車場一覧

表示切替: 一覧表示 地図表示    並び替え:
画像 物件名
所在地
取扱店
面積
間取り
所在階
築年数
賃料
管理費等
共益費
敷金
保証金
礼金
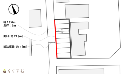
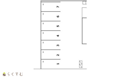
長岡駅まで徒歩約10分!弓町1丁目にある駐車場です! 月額賃料8,000円★(小型車、軽自動車限定)
物件画像
物件画像
物件画像
物件画像
詳細☆お気に入り★お気に入り
竹田パーキング
    新潟県長岡市弓町1丁目80番
    (駐車場)
    -
    -
    -
    -
    0.8万円
    なし
    なし
    なし
    なし
    なし
      水道町3丁目『酒井駐車場』 融雪設備あります。
      物件画像
      物件画像
      物件画像
      物件画像
      詳細☆お気に入り★お気に入り
      水道町3『酒井駐車場』
        長岡市水道町3-2437-2
        (駐車場)
        -
        -
        -
        -
        0.8万円
        なし
        なし
        なし
        なし
        なし
        写真たくさんあり!!
          中央病院敷地まで徒歩1分、看護学生や近隣の方おすすめです。
          物件画像
          物件画像
          物件画像
          物件画像
          詳細☆お気に入り★お気に入り
          中央病院至近駐車場
            新潟県長岡市川崎町1936-1
            (駐車場)
            -
            -
            -
            -
            0.8万円
            なし
            なし
            なし
            なし
            1ヶ月
            写真たくさんあり!!
            動画あり!!
              冬期間(12~3月)月額10,000円
              物件画像
              物件画像
              物件画像
              物件画像
              詳細☆お気に入り★お気に入り
              谷崎駐車場
                新潟県長岡市東新町3丁目6-21
                (駐車場)
                -
                -
                -
                -
                0.8万円
                なし
                なし
                なし
                なし
                なし
                  直江津郵便局、船見公園、第四北越銀行近くのガレージ駐車場!
                  物件画像
                  物件画像
                  物件画像
                  物件画像
                  詳細☆お気に入り★お気に入り
                  天王町ガレージ 区画D
                    新潟県上越市中央3丁目9番2号
                    (駐車場)
                    -
                    -
                    -
                    -
                    0.8万円
                    なし
                    なし
                    なし
                    なし
                    なし
                    写真たくさんあり!!
                      短期間は12,000円です。
                      物件画像
                      物件画像
                      物件画像
                      物件画像
                      詳細☆お気に入り★お気に入り
                      丸山パーキング
                        新潟県長岡市新保1丁目9-10
                        (駐車場)
                        -
                        -
                        -
                        -
                        0.8万円
                        なし
                        なし
                        1ヶ月
                        なし
                        なし
                          今朝白2丁目にある駐車場! 融雪装置付いてます!
                          物件画像
                          物件画像
                          物件画像
                          物件画像
                          詳細☆お気に入り★お気に入り
                          丸山パーキング
                            新潟県長岡市今朝白2丁目2-8
                            (駐車場)
                            -
                            -
                            -
                            -
                            0.8万円
                            なし
                            なし
                            なし
                            なし
                            なし
                            写真たくさんあり!!
                              長岡バイパスへのアクセス良好、川崎方面や長岡駅、川西方面へもスムーズです。
                              物件画像
                              物件画像
                              物件画像
                              物件画像
                              詳細☆お気に入り★お気に入り
                              【賃貸】東新町1丁目 駐車場 NO.5
                                新潟県長岡市東新町1丁目2-7
                                (駐車場)
                                -
                                -
                                -
                                -
                                0.8万円
                                なし
                                なし
                                なし
                                なし
                                なし
                                写真たくさんあり!!
                                動画あり!!
                                  消雪設備有り 冬期・短期利用可(10,000円になります)
                                  物件画像
                                  物件画像
                                  物件画像
                                  物件画像
                                  詳細☆お気に入り★お気に入り
                                  小林パーキング
                                    新潟県長岡市末広1-6-12
                                    (駐車場)
                                    -
                                    -
                                    -
                                    -
                                    0.8万円
                                    なし
                                    なし
                                    なし
                                    なし
                                    なし
                                      長岡バイパスへのアクセス良好、川崎方面や長岡駅、川西方面へもスムーズです。
                                      物件画像
                                      物件画像
                                      物件画像
                                      物件画像
                                      詳細☆お気に入り★お気に入り
                                      【賃貸】東新町1丁目 駐車場 NO.6
                                        新潟県長岡市東新町1丁目2-7
                                        (駐車場)
                                        -
                                        -
                                        -
                                        -
                                        0.8万円
                                        なし
                                        なし
                                        なし
                                        なし
                                        なし
                                        写真たくさんあり!!
                                        動画あり!!
                                          貸主につき仲介手数料不要♪
                                          物件画像
                                          物件画像
                                          物件画像
                                          物件画像
                                          詳細☆お気に入り★お気に入り
                                          東神田駐車場
                                            新潟県長岡市東神田3丁目甲1617-3 他
                                            (駐車場)
                                            -
                                            -
                                            -
                                            -
                                            0.838万円
                                            なし
                                            なし
                                            なし
                                            なし
                                            なし
                                              融雪設備完備
                                              物件画像
                                              物件画像
                                              物件画像
                                              物件画像
                                              詳細☆お気に入り★お気に入り
                                              丸恩パーキング
                                                新潟県長岡市千手1丁目12番11号
                                                (駐車場)
                                                -
                                                -
                                                -
                                                -
                                                0.85万円
                                                なし
                                                なし
                                                なし
                                                なし
                                                なし
                                                  旧国道沿い、神田交差点近く
                                                  物件画像
                                                  物件画像
                                                  物件画像
                                                  物件画像
                                                  詳細☆お気に入り★お気に入り
                                                  パーク稲葉屋
                                                    新潟県長岡市新町1丁目4-19
                                                    (駐車場)
                                                    -
                                                    -
                                                    -
                                                    -
                                                    0.88万円
                                                    なし
                                                    なし
                                                    なし
                                                    なし
                                                    なし
                                                    写真たくさんあり!!
                                                      消雪設備有り、前面消雪道路、JR長岡駅まで徒歩約10分
                                                      物件画像
                                                      物件画像
                                                      物件画像
                                                      物件画像
                                                      詳細☆お気に入り★お気に入り
                                                      フェリーチェ駐車場
                                                        新潟県長岡市福住3丁目甲1106番3
                                                        (駐車場)
                                                        -
                                                        -
                                                        -
                                                        -
                                                        0.88万円
                                                        なし
                                                        なし
                                                        なし
                                                        なし
                                                        なし
                                                          12月1日からご利用可能です
                                                          物件画像
                                                          物件画像
                                                          物件画像
                                                          物件画像
                                                          詳細☆お気に入り★お気に入り
                                                          大島新町4パーキング
                                                            新潟県長岡市大島新町4丁目甲921-18
                                                            (駐車場)
                                                            -
                                                            -
                                                            -
                                                            -
                                                            0.88万円
                                                            なし
                                                            なし
                                                            なし
                                                            なし
                                                            なし
                                                            写真たくさんあり!!
                                                              物件画像
                                                              物件画像
                                                              物件画像
                                                              物件画像
                                                              詳細☆お気に入り★お気に入り
                                                              ミナト月極駐車場
                                                                新潟県上越市西本町1-2-26
                                                                (駐車場)
                                                                -
                                                                -
                                                                -
                                                                -
                                                                0.88万円
                                                                なし
                                                                なし
                                                                なし
                                                                なし
                                                                なし
                                                                  長生橋近くの駐車場です。
                                                                  物件画像
                                                                  物件画像
                                                                  物件画像
                                                                  物件画像
                                                                  詳細☆お気に入り★お気に入り
                                                                  畠山トータルアカデミー駐車場Ⅲ
                                                                    新潟県長岡市山田1丁目4番7号
                                                                    (駐車場)
                                                                    -
                                                                    -
                                                                    -
                                                                    -
                                                                    0.88万円
                                                                    なし
                                                                    なし
                                                                    なし
                                                                    なし
                                                                    なし
                                                                      融雪設備あり♪蔵王1丁目にあります!賃料月額8,800円です♪
                                                                      物件画像
                                                                      物件画像
                                                                      物件画像
                                                                      物件画像
                                                                      詳細☆お気に入り★お気に入り
                                                                      蔵王一丁目駐車場
                                                                        新潟県長岡市蔵王1丁目2-9
                                                                        (駐車場)
                                                                        -
                                                                        -
                                                                        -
                                                                        -
                                                                        0.88万円
                                                                        なし
                                                                        なし
                                                                        なし
                                                                        なし
                                                                        なし
                                                                          当駐車場敷地内及び全面道路に融雪設備完備
                                                                          物件画像
                                                                          物件画像
                                                                          物件画像
                                                                          物件画像
                                                                          詳細☆お気に入り★お気に入り
                                                                          MUGIパーキング
                                                                            新潟県長岡市水道町4丁目2番8号
                                                                            (駐車場)
                                                                            -
                                                                            -
                                                                            -
                                                                            -
                                                                            0.88万円
                                                                            なし
                                                                            なし
                                                                            なし
                                                                            なし
                                                                            なし
                                                                            写真たくさんあり!!
                                                                              冬期間(12月~3月)のみ利用したい場合は、月額12,000円となります。
                                                                              物件画像
                                                                              物件画像
                                                                              物件画像
                                                                              物件画像
                                                                              詳細☆お気に入り★お気に入り
                                                                              パーキング佐藤
                                                                                新潟県長岡市今朝白2-2-29
                                                                                (駐車場)
                                                                                -
                                                                                -
                                                                                -
                                                                                -
                                                                                0.9万円
                                                                                なし
                                                                                なし
                                                                                なし
                                                                                なし
                                                                                なし
                                                                                  表示切替: 一覧表示 地図表示    並び替え:
                                                                                  0件がマッチ
                                                                                  基本条件
                                                                                  物件種別 駐車場
                                                                                  賃料


                                                                                  間取り
                                                                                  所在階
                                                                                  面積
                                                                                  築年数
                                                                                  方位
                                                                                  おすすめ条件
                                                                                  情報公開日
                                                                                  0件がマッチ
                                                                                  人気のあるこだわり条件