長岡バイパスへのアクセス良好、川崎方面や長岡駅、川西方面へもスムーズです。
| 物件名
							 所在地  | 
							面積
							 間取り 所在階  | 
							築年数
							 方位  | 
							賃料
							 管理費等 共益費  | 
							敷金
							 保証金 礼金  | 
							種別
							 構造  | 
						
|---|---|---|---|---|---|
| 【賃貸】東新町1丁目 駐車場 NO.2 新潟県長岡市東新町1丁目2-7  | - - -  | - -  | 0.8万円 なし なし  | なし なし なし  | 駐車場 -  | 
						
| 外観 | 間取り | 
|---|---|
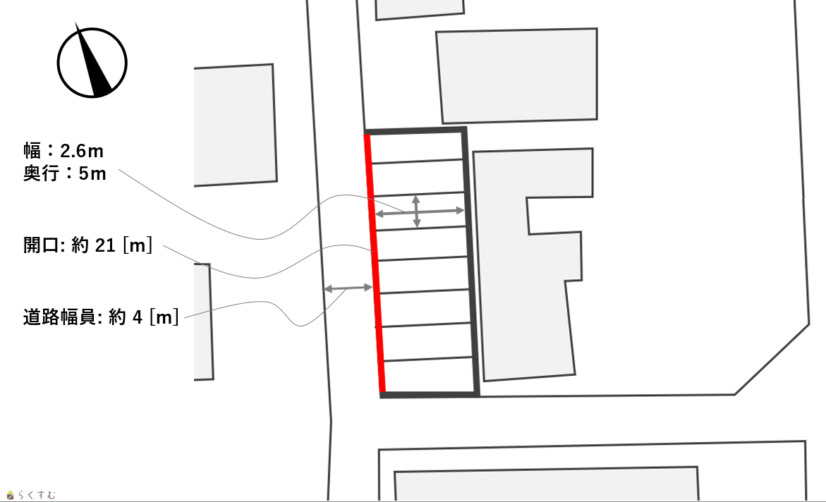
								![]() ※画像クリックで拡大表示 駐車場 
							 | 
							
								![]() ※画像クリックで拡大表示 区画図 
							 | 
						
| 詳細画像 | |
| 
								 | 
						|
| 動画 | |
| 
								 | 
						|
| 消雪パイプあり・ミニバンも駐車可能です。 | |||
| 物件コード | 00320-100003 | ||
|---|---|---|---|
| 物件名 | 【賃貸】東新町1丁目 駐車場 NO.2 | ||
| 交通 | 駅:信越線 北長岡駅から徒歩17分、バス:昭和通りから徒歩4分 | ||
| 所在地 | 新潟県長岡市東新町1丁目2-7 | ||
| 物件種別 | 駐車場 | ||
| 総戸数 | - | ||
| 構造 | - | 階建 | - | 
| 所在階/階数 | - | 号室 | - | 
| 面積 | - | 方位 | - | 
| 間取り | - | ||
| 賃料 | 0.8万円/月
								
								 | 
							管理費 | - | 
| 礼金 | - | 敷金 | - | 
| ほか初期費用 | - | その他諸費用 | 振込手数料:880円 ※最大の金額です。  | 
						
| 更新料 | - | 火災(家財)保険 | - | 
| 共益費 | - | 町内費 | - | 
| 駐車場 | - | バイク料金 | - | 
| 鍵交換費 | - | 清掃料 | - | 
| 振込手数料 | 
									880円
									 ※最大の金額です。  | 
														||
| 更新事務手数料 | - | ||
| 保証区分 | 
								緊急連絡先のみ | 
						||
| 保証会社 | 
							   区分:指定なし
							   
							  	 
							   
							   							    -  | 
							
						||
| 連帯保証人 | 
							   区分:不要 -  | 
						||
| 仲介手数料 | 
								
																	8,000円
									 | 
							
						||
| 築年月 | - | ||
| 利用制限 | - | ||
| 学校区 | 新町小学校(478m)・北中学校(1,598m) | ||
| 設備 | 即利用可能、融雪井戸あり | ||
| 入居時期 | 即入居可 | ||
| 取引態様 | 仲介 | ||
| 備考 | 駐車場所はNO.2になります。 | ||
| 手数料負担割合/配分割合 | 貸主:-% 借主:100% / 元付:100% 客付:-% | ||
| 取り扱い会社 | 
								 有限会社 ブライトサクセス 新潟県長岡市新町1-1-2  | 
						||
| 情報登録日 | 2025/10/09 | 次回更新予定日 | 2025/11/18 | 
						| TEL: | 0258-35-2220 | |
|---|---|---|
| 所在地: | 新潟県長岡市新町1-1-2 | |
| 交通: | 長岡駅 | |
| 営業時間: | 年中無休 10:00~18:00/定休日:オンライン (9:30~21:00) | |
| 免許番号: | 新潟県知事(1)第5629号 | 
										
											 | 
								
| 所属団体名: | 公社 新潟県宅地建物取引協会 新潟支部 | |
| 取引態様: | 仲介 | |
| ホームページ: | https://bright-success.net/ | |