物件掲載企業数:297|賃貸物件:3,596件|売買物件:3,317件|今週の登録物件:226
閲覧中のブラウザ(インターネットエクスプローラー)は非推奨ブラウザです。
物件が正しく表示されなかったり、正しく検索されない場合があります。最新のブラウザ(Google Chrome・Edgeなど)にてご利用お願いいたします。
  

新潟県長岡市西神田町2-8-3 駐車場 0.8万円の物件情報

敷地内、前面道路に消雪パイプがあるので冬場も安心です♪

物件名
所在地
面積
間取り
所在階
築年数
方位
賃料
管理費等
共益費
敷金
保証金
礼金
種別
構造
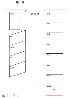
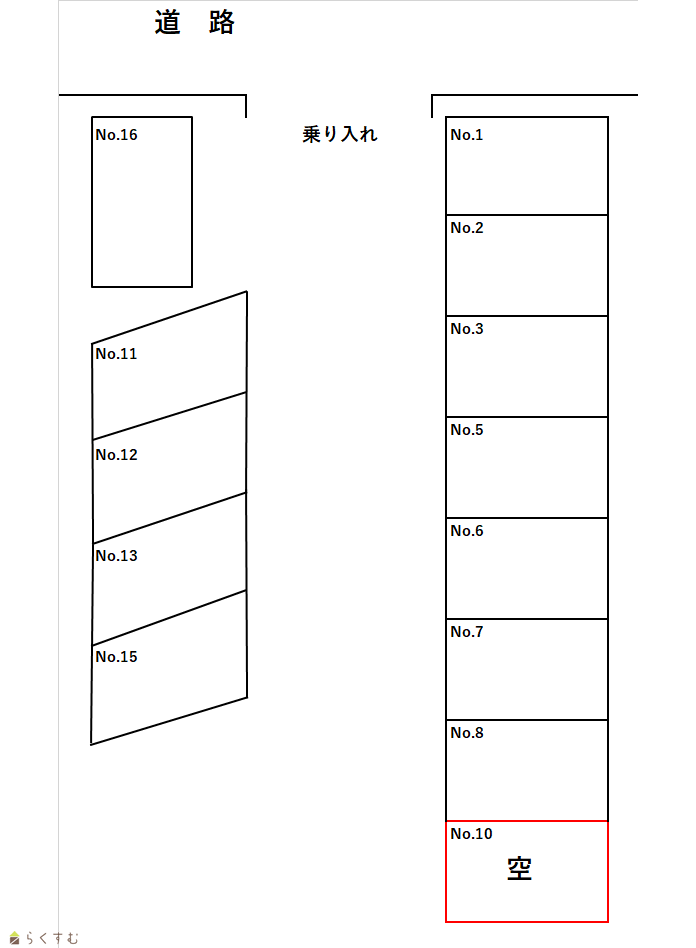
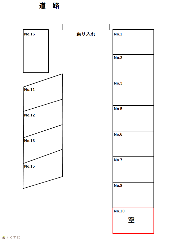
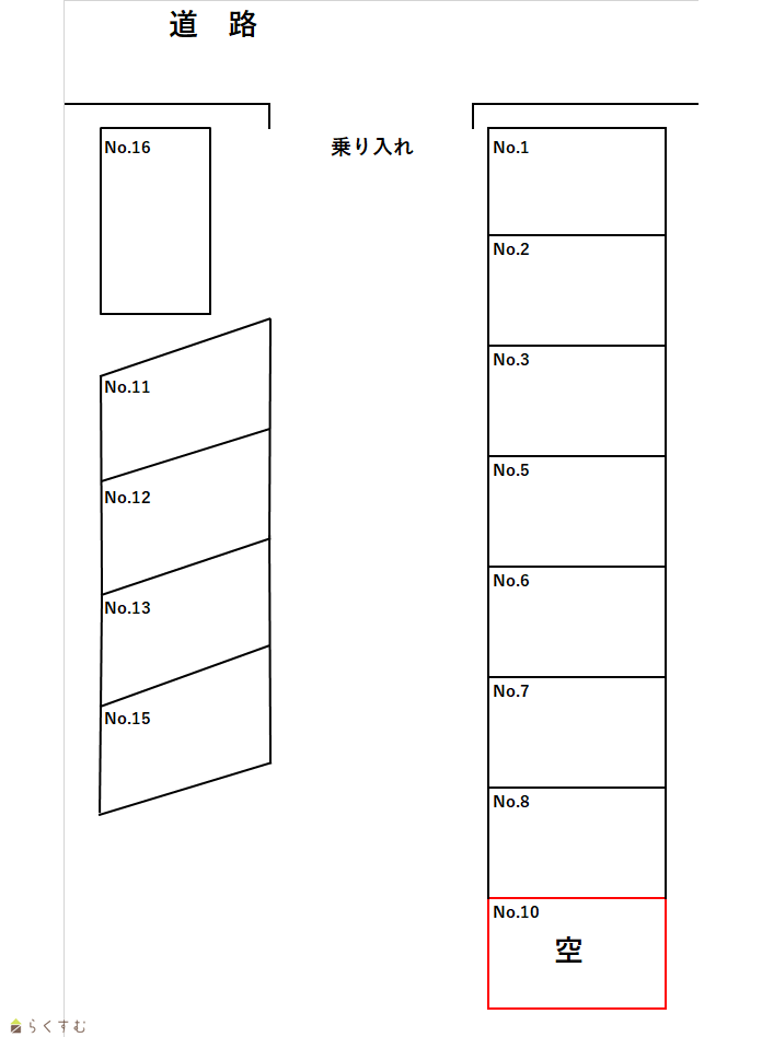
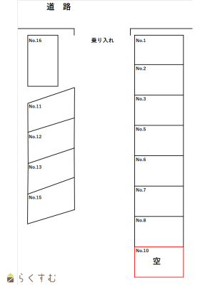
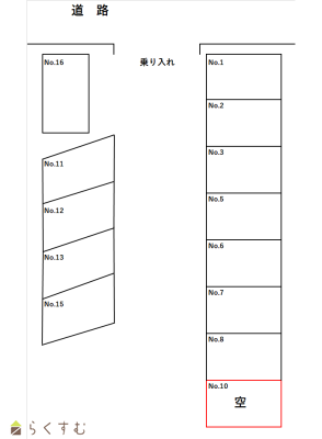
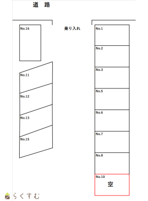
渡辺パーキング No.13
新潟県長岡市西神田町2-8-3
-
-
-
-
-
0.8万円
なし
なし
なし
なし
なし
駐車場
-
  • 渡辺パーキング No.13
    フェニックス不動産 株式会社
  • この物件を問い合わせる/無料
  • TEL: 0258-38-6077

物件画像

外観 間取り
物件画像
※画像クリックで拡大表示
前面道路より
物件画像
※画像クリックで拡大表示
間取り
詳細画像


物件概要

物件コード 00181-100415
物件名 渡辺パーキング No.13
交通 駅:上越新幹線 長岡駅から徒歩19分、バス:昭和通りから徒歩3分
所在地 新潟県長岡市西神田町2-8-3
物件種別 駐車場
総戸数 -
構造 - 階建 -
所在階/階数 - 号室 -
面積 - 方位 -
間取り -
賃料 0.8万円/月
管理費 -
礼金 -
敷金 -
ほか初期費用 - その他諸費用 -
更新料 - 火災(家財)保険 -
共益費 - 町内費 -
駐車場 - バイク料金 -
鍵交換費 - 清掃料 -
更新事務手数料 -
保証区分 連帯保証人のみ
保証会社 区分:指定なし
-
連帯保証人 区分:要
-
仲介手数料 8,800円
築年月 -
利用制限 -
学校区 神田小学校(109m)・東中学校(617m)
設備 舗装、即利用可能、融雪井戸あり
入居時期 即入居可
取引態様 仲介
備考 冬季間(12月~3月)のみ借りる場合は月額賃料12,000円
手数料負担割合/配分割合 貸主:-%   借主:-% / 元付:-%   客付:-%  
取り扱い会社

フェニックス不動産 株式会社

新潟県長岡市神田町1-2-33

情報登録日 2025/07/11 次回更新予定日 2026/01/07
  • 渡辺パーキング No.13
    フェニックス不動産 株式会社
  • この物件を問い合わせる/無料
  • TEL: 0258-38-6077

この物件の地図・周辺情報・行政情報

この物件の周辺情報・行政情報を詳しく見る
【周辺情報】
物件の近くにあるコンビニや銀行・学校など、アイコン付のマップで詳しく表示できます!
【行政情報】
水道料や下水道料・ガス料金など、暮らしに関係のある情報を表示しています。

担当取扱い店舗情報

取扱い店舗画像
フェニックス不動産 株式会社
TEL: 0258-38-6077
所在地: 新潟県長岡市神田町1-2-33
交通: 長岡駅
営業時間: 9:30~18:00/定休日:水・日・祝(事前予約をいただければ営業いたします)
免許番号: 新潟県知事(2)第5376号 この会社の情報を詳しく見る
所属団体名: 公社 全日本不動産協会 新潟県本部
取引態様: 仲介
ホームページ: http://www.phoenix-fudousan.com/