1
物件掲載企業数:
299
社
|賃貸物件:
3,595
件|売買物件:
3,320
件|今週の登録物件:
211
件
閲覧中のブラウザ(インターネットエクスプローラー)は非推奨ブラウザです。
物件が正しく表示されなかったり、正しく検索されない場合があります。最新のブラウザ(Google Chrome・Edgeなど)にてご利用お願いいたします。
Google Chrome
Microsoft Edge
アパート・マンション・一戸建て
駐車場
貸土地
店舗
事務所
倉庫・工場
新築分譲マンション
中古マンション
新築一戸建て
中古一戸建て
売土地・分譲地
その他(投資物件など)
マンション
一戸建て
土地
ホーム
>
検索方法選択
>
エリア選択
> 物件一覧
全エリア
の
新築一戸建て
一覧
169件
該当しました。
<前のページ
1
2
3
4
5
6
7
8
次のページ>
表示切替:
一覧表示
/
地図表示
並び替え:
指定なし
新着順
価格が安い順
価格が高い順
画像
物件名/所在地/取扱店
詳細
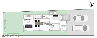
【10/2価格改定しました】 徒歩1分の土手から長岡花火が見えます!アピタやイオンまで車で5分圏内!買い物に便利な立地です!大島小学校区です。前面道路は消雪パイプがあり冬場も安心!
長岡市 大島新町1丁目新築分譲住宅
新潟県長岡市大島新町1丁目2046番1、2046番2
ダイエープロビス株式会社
価格
:
24,900,000
円
土地面積
:165.28㎡ /49.99坪
建物面積
:87.77㎡ /26.55坪
間取り
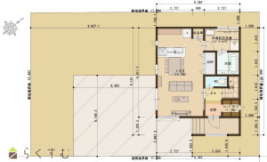
:3LDK
築年月
:2025年3月
\暮らしやすさを追求した住み心地の良い住宅/■徒歩1分の土手から長岡花火を楽しめます■大型商業施設まで車で5分圏内で利便性■保育園・小学校が徒歩10分圏内
(新築住宅)長岡市大島新町
新潟県長岡市大島新町1丁目甲1479付近
新潟土地建物販売センター 株式会社
価格
:
24,900,000
円
土地面積
:165.28㎡ /49.99坪
建物面積
:87.77㎡ /26.55坪
間取り
:3LDK
築年月
:2025年3月
徒歩1分の土手で長岡花火を満喫!渋滞知らずで夏の夜空を楽しめます。アピタ・イオン・リバーサイド千秋が車で5分圏内、買い物や外出の利便性◎
大島新町1 新築戸建
新潟県長岡市大島新町1丁目
有限会社 ブライトサクセス
価格
:
24,900,000
円
土地面積
:165.28㎡ /49.99坪
建物面積
:87.77㎡ /26.55坪
間取り
:3LDK
築年月
:2025年3月
【価格改定】 ☆オープンハウス開催中(予約制) ☆国道8号線まで車で3分! ☆パントリー付きキッチン ☆幹太くん・マイクロバブル給湯器を標準装備 ☆ランドリースペース有り ☆駐車は並列で2台可
当社グループ物件【テイラーハウス】新潟市西区鳥原(B棟)
新潟県新潟市西区鳥原2568-20B棟
株式会社ハーツリアルエステート 新潟支店
価格
:
24,980,000
円
土地面積
:112.09㎡ /33.9坪
建物面積
:98.2㎡ /29.7坪
間取り
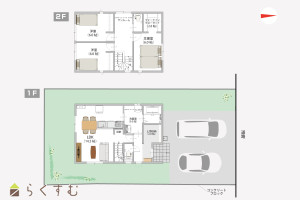
:4LDK
築年月
:2025年5月
☆2025年12月完成予定! ☆4LDK 駐車並列3台可 ☆パントリー完備 ☆食洗機・幹太くん・浴室暖房乾燥機標準装備 ☆設計住宅性能評価取得済み! ☆新発田南バイパスまで車で4分
当社グループ物件!【テイラーハウス】新発田市御幸町1丁目
新潟県新発田市御幸町1-9-11
株式会社ハーツリアルエステート 新潟支店
価格
:
24,980,000
円
土地面積
:220.24㎡ /66.62坪
建物面積
:105.16㎡ /31.81坪
間取り
:4LDK
築年月
:2025年12月
☆2025年9月完成、オープンハウス開催中(予約制) ☆食洗機・幹太くん・浴室暖房乾燥機付 ☆小・中学校徒歩圏内♪ ☆駐車は便利な並列3台可
【テイラーハウス】新潟市西区五十嵐二の町(C棟)
新潟県新潟市西区五十嵐二の町8600-21C棟
株式会社ハーツリアルエステート 新潟支店
価格
:
24,980,000
円
土地面積
:172.32㎡ /52.12坪
建物面積
:105.85㎡ /32.01坪
間取り
:4LDK
築年月
:2025年9月
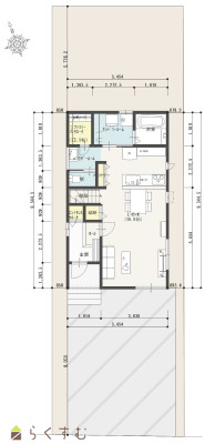
価格改定 ☆エアコンプレゼントキャンペーン実施中※1 ☆オープンハウス開催中(予約制) ☆3LDK・オール電化住宅 ☆17.7帖LDKは3面採光 ☆全室2面採光 ☆浴室暖房乾燥機・食洗機完備 ☆駐車並列2台可
【テイラーハウス】新潟市東区船江町1丁目(A棟)
新潟県新潟市東区船江町1-51-8A棟
株式会社ハーツリアルエステート 新潟支店
価格
:
24,980,000
円
土地面積
:132.5㎡ /40.08坪
建物面積
:91.3㎡ /27.61坪
間取り
:3LDK
築年月
:2024年8月
川崎東小学校・東北中学校エリアの建売住宅です。 原信・コメリの他、飲食店など至近で生活に便利な立地となっています。 川崎ICにも近く、通勤やお出掛けなどアクセス性の良いエリアです。
長岡市豊2丁目 建売住宅 1号棟
新潟県長岡市豊2丁目1940番11
有限会社 一代工務店
価格
:
25,600,000
円
土地面積
:125.99㎡ /38.11坪
建物面積
:90.88㎡ /27.49坪
間取り
:3LDK
築年月
:2025年5月
月々の支払が6万円台~とアパートの家賃並みでマイホームでの暮らしが叶う☆健康と快適性が優れた高気密・高断熱住宅!
上越高土町B 新築建売物件
新潟県上越市高土町2-183
株式会社アップデート不動産 プラスホーム
価格
:
25,800,000
円
土地面積
:140.34㎡ /42.45坪
建物面積
:87.77㎡ /26.55坪
間取り
:3LDK
築年月
:2025年8月
商業施設が近く便利♪保育園・小学校も徒歩圏内◆収納充実♪◆対面キッチン仕様
加茂市新栄町 建売住宅 2号棟
新潟県加茂市新栄町1904番5
有限会社 一代工務店
価格
:
25,800,000
円
土地面積
:192.34㎡ /58.18坪
建物面積
:86.74㎡ /26.23坪
間取り
:3LDK
築年月
:2025年11月
【完成前なので好みのデザイン選べます!】国道8号線へのアクセス良好!スーパーも徒歩4分で買い物にも便利な立地! 吹抜けで2階とつながるリビング、どこにいても家族の気配を感じられます
見附市今町5丁目新築戸建
新潟県見附市今町5丁目23−23
有限会社 ブライトサクセス
価格
:
25,800,000
円
土地面積
:121.43㎡ /36.73坪
建物面積
:82.8㎡ /25.04坪
間取り
:3LDK
築年月
:2025年12月
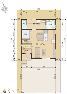
【9/2 価格改定しました!】太陽光パネル搭載で電気代がお得に!インナーガレージ2台分、雪の日の乗り降りもストレスフリーで生活できます。自然落雪の屋根だから雪下ろしをしなくても安心!
陽光台 3層階のデザイン住宅
新潟県長岡市陽光台4丁目1379-167
ダイエープロビス株式会社
価格
:
25,800,000
円
土地面積
:205.22㎡ /62.07坪
建物面積
:115.09㎡ /34.81坪
間取り
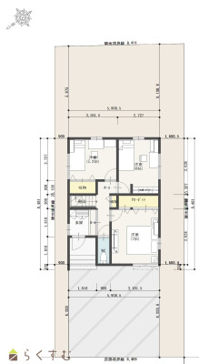
:2LDK
築年月
:2024年4月
【長岡市陽光台】新価格2580万円! ◆空間を有効活用できる3層のスキップフロアのある家♪ ◆南向きの片流れ屋根には太陽光パネルを搭載! ◆嬉しいエアコン3台&カップボード&カーテン付き♪ ◆2台分のインナーガレージを完備!
(新築住宅)長岡市陽光台
新潟県長岡市陽光台4丁目1379-130付近
新潟土地建物販売センター 株式会社
価格
:
25,800,000
円
土地面積
:205.22㎡ /62.07坪
建物面積
:115.09㎡ /34.81坪
間取り
:3LDK
築年月
:2024年4月
【高性能×高気密×高断熱の北海道仕様住宅】 ■前面道路消雪パイプあり ■二重断熱×トリプルサッシで家中快適 ■エアコン1台付き ■スーパー・コンビニ・薬局まで徒歩6分
長岡市城岡 新築住宅
新潟県長岡市城岡3丁目11-31付近
新潟土地建物販売センター 株式会社
価格
:
25,800,000
円
土地面積
:132.83㎡ /40.18坪
建物面積
:93.57㎡ /28.3坪
間取り
:3LDK
築年月
:2025年7月
グリーンヒルズ燕吉田南 きれいな分譲地内です。 小学校・こども園も至近でお子様の通学通園も安心です。 コンビニ・スーパー・駅も徒歩圏内で生活に便利な立地です♪
燕市吉田下中野 建売住宅 2号棟
新潟県燕市吉田下中野字門光寺535番12、537番9、564番9
有限会社 一代工務店
価格
:
25,800,000
円
土地面積
:187.28㎡ /56.65坪
建物面積
:90.06㎡ /27.24坪
間取り
:3LDK
築年月
:2025年6月
LDK16.5帖+吹き抜け+通風・採光良好で、明るく開放的な住空間。徒歩10分圏内にスーパーやコンビニがそろい、毎日の買い物にも便利。
城岡3丁目 新築戸建
新潟県長岡市城岡3丁目
有限会社 ブライトサクセス
価格
:
25,800,000
円
土地面積
:132.83㎡ /40.18坪
建物面積
:93.57㎡ /28.3坪
間取り
:3LDK
築年月
:2025年7月
◆選べる家電・家具7万円分プレゼント対象物件!詳しくは備考欄をご確認ください♪ ■高性能平屋住宅!スーパーと8号線が近く生活がしやすい好立地
長岡市下々条町
新潟県長岡市下々条町5-1付近
ハーバーエステート株式会社
価格
:
25,800,000
円
土地面積
:186.9㎡ /56.53坪
建物面積
:62.72㎡ /18.97坪
間取り
:3LDK
築年月
:2025年4月
\二重断熱×24時間熱交換換気扇搭載の平屋住宅/ ■北海道仕様の高気密高断熱 ■駐車4台可能 ■前面に消雪パイプ有 ■エアコン2台付き ■商業施設や小・中学校が徒歩圏内
長岡市下々条町 新築平屋住宅
新潟県長岡市下々条町2899-1付近
新潟土地建物販売センター 株式会社
価格
:
25,800,000
円
土地面積
:186.9㎡ /56.53坪
建物面積
:62.72㎡ /18.97坪
間取り
:3LDK
築年月
:2025年5月
【当日見学OK】■駐車3台可能■小学校・スーパー・コンビニ・薬局まで徒歩圏内■LDK&全室南向きで陽当たり良好■全居室6帖以上+収納完備■各階洗面台&トイレ完備
(新築住宅)見附市本町2号棟 全4棟
新潟県見附市本町1丁目6-18付近
新潟土地建物販売センター 株式会社
価格
:
25,900,000
円
土地面積
:177.61㎡ /53.72坪
建物面積
:103.09㎡ /31.18坪
間取り
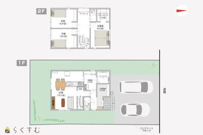
:4LDK
築年月
:2026年4月
【当日見学OK】■駐車3台可能■小学校・スーパー・コンビニ・薬局まで徒歩圏内■LDK&全室南向きで陽当たり良好■全居室6帖以上+収納完備■各階洗面台&トイレ完備
(新築住宅)見附市本町3・4号棟 全4棟
新潟県見附市本町1丁目6-18付近
新潟土地建物販売センター 株式会社
価格
:
25,900,000
円
土地面積
:177.21㎡ /53.6坪
建物面積
:101.43㎡ /30.68坪
間取り
:4LDK
築年月
:2026年4月
表示切替:
一覧表示
/
地図表示
並び替え:
指定なし
新着順
価格が安い順
価格が高い順
価格は物件の代金総額を表示しており、消費税が課税される場合は税込み価格です。
建築条件付き土地価格には、建物価格は含まれません。
物件情報の詳細については取り扱い店までお問い合わせください。
完成予想図はいずれも外構・植栽・外観等実際のものと異なることが多少あります。
CG合成の画像の場合実際と異なることが多少あります。
完成後1年以上経過したものが未入居として記載される場合があります。ご了承ください。
販売予定物件は販売開始するまで契約または予約の申し込みはできません。
ご購入の場合物件詳細や契約内容についてご自身で十分ご確認いただきますようよろしく御願いします。
建築条件付きとは…その土地に建築する建物の建築請負契約が、一定期間内に成立することを条件として売買される土地のことをいいます。請負契約成立に向けて設計プランを協議するため、土地購入者が希望する建物にするために一定の期間(概ね3ヶ月)交渉期間としその期間内に希望するプランが実現できたかどうかによって土地の購入の判断をします。納得のいくプランができず請負契約が未成立になった場合、土地契約にかかった代金(手付金など)は、すべて返却されます。
169件
該当しました。
<前のページ
1
2
3
4
5
6
7
8
次のページ>
0件
がマッチ
基本条件
物件種別
新築一戸建て
価格
下限なし
100万円
250万円
500万円
1000万円
1500万円
2000万円
2500万円
3000万円
3500万円
4000万円
4500万円
5000万円
5500万円
6000万円
6500万円
7000万円
7500万円
8000万円
8500万円
9000万円
9500万円
1億円
~
上限なし
100万円
250万円
500万円
1000万円
1500万円
2000万円
2500万円
3000万円
3500万円
4000万円
4500万円
5000万円
5500万円
6000万円
6500万円
7000万円
7500万円
8000万円
8500万円
9000万円
9500万円
1億円
間取り
ワンルーム
1K
1DK
1LDK
2K
2DK
2LDK
3K
3DK
3LDK
4K
4DK
4LDK以上
専有面積
下限なし
20㎡
30㎡
40㎡
50㎡
60㎡
70㎡
80㎡
90㎡
100㎡
~
上限なし
20㎡
30㎡
40㎡
50㎡
60㎡
70㎡
80㎡
90㎡
100㎡
土地面積
下限なし
60㎡ (約18坪)
70㎡ (約21坪)
80㎡ (約24坪)
90㎡ (約27坪)
100㎡ (約30坪)
110㎡ (約33坪)
120㎡ (約36坪)
130㎡ (約39坪)
140㎡ (約42坪)
150㎡ (約45坪)
160㎡ (約48坪)
170㎡ (約51坪)
180㎡ (約54坪)
190㎡ (約57坪)
200㎡ (約60坪)
250㎡ (約75坪)
300㎡ (約90坪)
~
上限なし
60㎡ (約18坪)
70㎡ (約21坪)
80㎡ (約24坪)
90㎡ (約27坪)
100㎡ (約30坪)
110㎡ (約33坪)
120㎡ (約36坪)
130㎡ (約39坪)
140㎡ (約42坪)
150㎡ (約45坪)
160㎡ (約48坪)
170㎡ (約51坪)
180㎡ (約54坪)
190㎡ (約57坪)
200㎡ (約60坪)
250㎡ (約75坪)
300㎡ (約90坪)
建物面積
下限なし
60㎡ (約18坪)
70㎡ (約21坪)
80㎡ (約24坪)
90㎡ (約27坪)
100㎡ (約30坪)
110㎡ (約33坪)
120㎡ (約36坪)
130㎡ (約39坪)
140㎡ (約42坪)
150㎡ (約45坪)
160㎡ (約48坪)
170㎡ (約51坪)
180㎡ (約54坪)
190㎡ (約57坪)
200㎡ (約60坪)
250㎡ (約75坪)
300㎡ (約90坪)
~
上限なし
60㎡ (約18坪)
70㎡ (約21坪)
80㎡ (約24坪)
90㎡ (約27坪)
100㎡ (約30坪)
110㎡ (約33坪)
120㎡ (約36坪)
130㎡ (約39坪)
140㎡ (約42坪)
150㎡ (約45坪)
160㎡ (約48坪)
170㎡ (約51坪)
180㎡ (約54坪)
190㎡ (約57坪)
200㎡ (約60坪)
250㎡ (約75坪)
300㎡ (約90坪)
坪単価
下限なし
5万円
10万円
15万円
20万円
25万円
30万円
35万円
40万円
45万円
50万円
~
上限なし
5万円
10万円
15万円
20万円
25万円
30万円
35万円
40万円
45万円
50万円
築年数
指定なし
新築
3年以内
5年以内
10年以内
15年以内
20年以内
方位
北
北東
東
南東
南
南西
西
北西
おすすめ条件
ペット可・相談
楽器可・相談
情報公開日
指定なし
本日
3日以内
1週間以内
1ヶ月以内
0件
がマッチ
人気のあるこだわり条件
角地(28)
高台に立地(10)
整形地(127)
前面道路6m以上(122)
日当り良好(127)
閑静な住宅街(121)
スーパー近く(96)
長期優良住宅(22)
設計住宅性能評価付き(29)
耐震構造(38)
BELS/省エネ基準適合認定建物(56)
瑕疵担保保険付き(36)
建物確認・完了検査済証あり(40)
フラット35S適合(36)
LDK15畳以上(134)
全室フローリング(129)
天井高2.5m以上(23)
駐車場2台以上(122)
駐車場3台以上(80)
南向き(65)
庭あり(68)
TVインターホン(150)
複層ガラス(144)
ディンプルキー(63)
システムキッチン(161)
カウンターキッチン(93)
IHクッキングヒーター(139)
浄水器(41)
食器洗浄乾燥機(82)
3口コンロ(96)
ガスコンロ設置済み(12)
追いだき機能付き(144)
浴室暖房乾燥機(44)
バス1坪以上(144)
浴室TV(4)
温水洗浄便座(155)
シャワー付き洗面台(149)
エアコン(120)
床暖房(10)
24時間換気システム(120)
全室エアコン(7)
オール電化(102)
太陽光発電システム(8)
省エネ給湯(132)
高気密高断熱住宅(112)
ウッドデッキ・テラス(25)
ルーフバルコニー(4)
都市ガス(71)
LPG(1)
上水道(164)
下水道(158)
浄化槽(8)
電気(149)
その他水道(1)
ウォークインクローゼット(127)
全居室収納あり(138)
床下収納(43)
シューズインクローゼット(64)
シューズBOX(91)
BS端子(17)
CS(2)
CATV(1)
LAN端子(18)
照明器具付き(116)
即引き渡し可能(58)
バリアフリー(52)
条件に合った物件数は、
0 件
です。
立地・環境
角地(28)
高台に立地(10)
整形地(127)
前面道路6m以上(122)
日当り良好(127)
閑静な住宅街(121)
スーパー近く(96)
構造・工法・仕様
長期優良住宅(22)
設計住宅性能評価付き(29)
耐震構造(38)
BELS/省エネ基準適合認定建物(56)
瑕疵担保保険付き(36)
建物確認・完了検査済証あり(40)
フラット35S適合(36)
面積・間取り
LDK15畳以上(134)
全室フローリング(129)
天井高2.5m以上(23)
駐車・駐輪
駐車場2台以上(122)
駐車場3台以上(80)
採光・向き
南向き(65)
ガーデン
庭あり(68)
管理・防犯
TVインターホン(150)
複層ガラス(144)
ディンプルキー(63)
キッチン
システムキッチン(161)
カウンターキッチン(93)
IHクッキングヒーター(139)
浄水器(41)
食器洗浄乾燥機(82)
3口コンロ(96)
ガスコンロ設置済み(12)
浴室
追いだき機能付き(144)
浴室暖房乾燥機(44)
バス1坪以上(144)
浴室TV(4)
トイレ
温水洗浄便座(155)
洗面所
シャワー付き洗面台(149)
冷暖房・空調
エアコン(120)
床暖房(10)
24時間換気システム(120)
全室エアコン(7)
光熱設備
オール電化(102)
太陽光発電システム(8)
省エネ給湯(132)
高気密高断熱住宅(112)
バルコニー・テラス
ウッドデッキ・テラス(25)
ルーフバルコニー(4)
室内仕様・設備
都市ガス(71)
LPG(1)
上水道(164)
下水道(158)
浄化槽(8)
電気(149)
その他水道(1)
収納
ウォークインクローゼット(127)
全居室収納あり(138)
床下収納(43)
シューズインクローゼット(64)
シューズBOX(91)
電気設備
BS端子(17)
CS(2)
CATV(1)
LAN端子(18)
照明器具付き(116)
費用・入居・引渡・条件
即引き渡し可能(58)
その他
バリアフリー(52)
条件に合った物件数は、
0 件
です。
アパート・マンション・一戸建て
/
駐車場
/
貸土地
/
店舗
/
事務所
/
倉庫・工場
新築分譲マンション
/
中古マンション
/
新築一戸建て
/
中古一戸建て
/
売土地
/
投資物件・その他
マンション
/
一戸建て
/
土地
建てる・リフォーム
物件掲載企業一覧
掲載希望の企業様へ
新潟の不動産情報サイト
サービス利用規約
運営会社
サイトマップ
プライバシーポリシー
お問い合わせ
リンク
Copyright (C)
株式会社 コモンライフ・コーポレーション
. All Rights Reserved.
新潟・長岡・柏崎の賃貸・マンション・アパート・住宅の不動産物件情報サイト
不動産検索サイト「らくすむ」及び関連サイトに記載の不動産情報は、会員規約に則り、情報提供会社様の責任のもとに発信されております。
不動産の賃借、購入に関しては賃借者、購入者ご自身が情報を確認され、会社企業様から説明を受けられたうえで判断をお願いいたします。
不動産検索サイト「らくすむ」及び関連サイトに記載の不動産情報、写真、デザイン、コンテンツなどの
無断転載・転用・複製
など禁止します。