1
物件掲載企業数:
300
社
|賃貸物件:
3,191
件|売買物件:
3,232
件|今週の登録物件:
379
件
閲覧中のブラウザ(インターネットエクスプローラー)は非推奨ブラウザです。
物件が正しく表示されなかったり、正しく検索されない場合があります。最新のブラウザ(Google Chrome・Edgeなど)にてご利用お願いいたします。
Google Chrome
Microsoft Edge
アパート・マンション・一戸建て
駐車場
貸土地
店舗
事務所
倉庫・工場
新築分譲マンション
中古マンション
新築一戸建て
中古一戸建て
売土地・分譲地
その他(投資物件など)
マンション
一戸建て
土地
ホーム
>
検索方法選択
>
ランドマーク指定
> 物件一覧
全エリア
の
中古一戸建て
一覧
688件
該当しました。
<前のページ
24
25
26
27
28
29
30
31
32
33
34
次のページ>
表示切替:
一覧表示
/
地図表示
並び替え:
指定なし
新着順
価格が安い順
価格が高い順
画像
物件名/所在地/取扱店
詳細
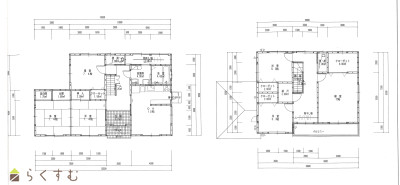
■インナーガレージ2台分、計4台駐車可能。 ■収納充実の4LDK
長岡市宮内2丁目
長岡市宮内2丁目4番1号
ハーバーエステート株式会社
価格
:
21,980,000
円
土地面積
:105.09㎡ /31.78坪
建物面積
:127.54㎡ /38.58坪
間取り
:4LDK
築年月
:2015年7月
■1階で完結できる家事楽動線が魅力のリノベーション住宅。駐車6台以上。 ■セキスイハイム施工の軽量鉄骨 ■敷地内融雪井戸あり ■洗う→サンルームで干す→ファミリークロークでしまえる家事時短動線。
長岡市豊詰町
新潟県長岡市豊詰町360番地2
ハーバーエステート株式会社
価格
:
21,980,000
円
土地面積
:315.4㎡ /95.4坪
建物面積
:106.22㎡ /32.13坪
間取り
:3DK
築年月
:1995年10月
《リノビレッジ》【4/11(土)~12(日)オープンハウス開催】4SLDK+駐車3台可!耐震改修、断熱改修済みフルリノーベション物件!LDKは広々22.3帖!ランドリースペース付きで雨の日のお洗濯も安心!各教育施設、スーパー、コンビニが至近!【5年保証(かし保険適合予定)】【住宅ローン控除対象】【安心R住宅】
《リノビレッジ》見附市今町5丁目 リノベーション住宅
新潟県見附市今町5丁目39-52
長岡不動産販売株式会社
価格
:
21,980,000
円
土地面積
:205.59㎡ /62.19坪
建物面積
:135.79㎡ /41.07坪
間取り
:4LDK
築年月
:1980年3月
見附市今町5丁目でリノベ住宅が出ました♬今町小・中学校・スーパー・コンビニ徒歩圏内で利便性良好♬車3台駐車可能(*‘∀‘)北東角地、前面道路も融雪完備になっております。耐震補強済、住宅ローン控除対象です。
見附市今町5丁目【リノベ住宅】
新潟県見附市今町5丁目39-52
合同会社 さくら中央不動産
価格
:
21,980,000
円
土地面積
:205.59㎡ /62.19坪
建物面積
:135.79㎡ /41.07坪
間取り
:4LDK
築年月
:1980年3月
《リノビレッジ》【4/11(土)~12(日)オープンハウス開催】1階にはファミリークローク、2階にはWICがあり収納力◎全居室南西向きで日当たり良好!【5年保証(かし保険適合予定)】【住宅ローン控除対象】【安心R住宅】【にいがた安心こむすび住宅】
《リノビレッジ》長岡市摂田屋5丁目 リノベーション住宅
新潟県長岡市摂田屋5丁目2-13
長岡不動産販売株式会社
価格
:
21,980,000
円
土地面積
:133.95㎡ /40.51坪
建物面積
:135.17㎡ /40.88坪
間取り
:4LDK
築年月
:1992年11月
リフォーム中/年内入居可/新耐震適合/駐車2台可/前面道路幅員8.1m/庭スペースあり/市立 黒条小学校徒歩7分/カーポート付き/
長岡市天神町
新潟県長岡市天神町172-21
株式会社 カチタス長岡店
価格
:
21,990,000
円
土地面積
:200.29㎡ /60.58坪
建物面積
:137㎡ /41.44坪
間取り
:4LDK
築年月
:2003年3月
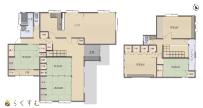
2017年築、敷地80坪の5LDK中古住宅。子供たちが遊んだり、家庭菜園ができるゆったりとした庭があります。
上方
新潟県柏崎市大字上方342番、348番2、他
八幡開発株式会社
価格
:
22,000,000
円
土地面積
:265.5㎡ /80.31坪
建物面積
:134.56㎡ /40.7坪
間取り
:6LDK
築年月
:2017年3月
駅近だけど田舎暮らし物件です!平成25年大幅リフォーム済み!リビングに薪ストーブあり!スローライフにピッタリの物件です♪
滝谷町 中古住宅(平成25年リフォーム済み)
新潟県長岡市滝谷町244
有限会社 遠藤機販
価格
:
22,000,000
円
土地面積
:1,395.83㎡ /422.23坪
建物面積
:170.91㎡ /51.7坪
間取り
:4LDK
築年月
:不詳
【大島小・中学校近く&生活便利な立地にリフォーム済み物件】 ■前面道路に消雪パイプ完備 ■駐車3台可能、1台分のカーポート付き ■スーパー・コンビニ・薬局が徒歩圏内
長岡市大島新町 売家
新潟県長岡市大島新町5丁目1-19
新潟土地建物販売センター 株式会社
価格
:
22,000,000
円
土地面積
:191㎡ /57.77坪
建物面積
:114.98㎡ /34.78坪
間取り
:3LDK
築年月
:1979年12月
//間取りも多く広々とした一戸建て// ■スーパーチャレンジャー様まで徒歩1分で買物も便利 ■北長岡駅まで徒歩5分圏内 ■車庫付き宅内消雪設備完備
【中古住宅】長岡市城岡1丁目 中古住宅
新潟県長岡市城岡1丁目448番7
有限会社 ABCホーム
価格
:
22,000,000
円
土地面積
:200.46㎡ /60.63坪
建物面積
:141.07㎡ /42.67坪
間取り
:5DK
築年月
:2008年7月
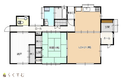
平成25年フルリフォーム物件☆使用感の少ない住宅です☆ リフォーム部分にはカナダ産ヒバを使用 約21帖の広いリビングには北欧製薪ストーブを設置♪2F寝室から東山の眺望を楽しむことができる設計となっております。内覧は随時募集中です☆
滝谷町4LDK中古住宅【平成25年リフォーム済み物件】
新潟県長岡市滝谷町244 他5筆
有限会社 地建事務所
価格
:
22,000,000
円
土地面積
:1,395.83㎡ /422.23坪
建物面積
:170.91㎡ /51.7坪
間取り
:4LDK
築年月
:2013年5月
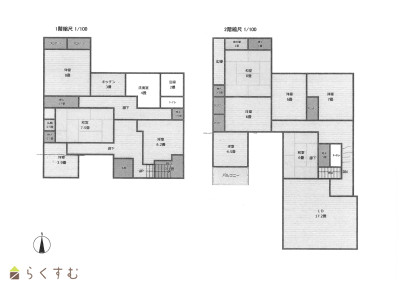
■インナーガレージ2台+カーポート2台、計8台以上駐車可能。収納充実の高床住宅。 ■JR東川口駅まで徒歩約4分(280m) ■セブンイレブンまで徒歩約5分(400m) ■東川口保育園まで徒歩約2分(140m)
長岡市東川口
新潟県長岡市東川口1979番地96
ハーバーエステート株式会社
価格
:
22,000,000
円
土地面積
:254.63㎡ /77.02坪
建物面積
:161.46㎡ /48.84坪
間取り
:3LDK
築年月
:2016年12月
【見学会開催】 リフォーム中/年内入居可/新耐震適合/駐車3台可/庭スペースあり/市立 比角小学校徒歩17分/原信柏崎東店まで徒歩12分(約900m)周辺交通量少なめ/隣家との距離があり/対面キッチン/クリーニング済/
柏崎市北斗町
新潟県柏崎市北斗町3-1-1
株式会社 カチタス長岡店
価格
:
22,490,000
円
土地面積
:249.14㎡ /75.36坪
建物面積
:119.09㎡ /36.02坪
間取り
:4LDK
築年月
:2009年11月
糸魚川小学校エリア内築14年の比較的年数の浅い物件出ました。
【糸魚川市寺島1丁目中古住宅】
新潟県糸魚川市寺島1丁目8-27
株式会社 糸魚川不動産
価格
:
22,800,000
円
土地面積
:224.87㎡ /68.02坪
建物面積
:135.58㎡ /41.01坪
間取り
:4LDK
築年月
:2011年3月
【2/16価格改定】2380万円⇒2280万円■<築浅未入居住宅>スーパー、コンビニ、ドラッグストア、バス停も徒歩圏内で生活に便利な立地です。 前面道路消雪パイプ完備で冬も安心! 駐車スペース3台以上利用できます♪
長岡市北山1丁目 建売住宅(未入居住宅)
新潟県長岡市北山1丁目92番8、92番7
有限会社 一代工務店
価格
:
22,800,000
円
土地面積
:142㎡ /42.95坪
建物面積
:89.23㎡ /26.99坪
間取り
:3LDK
築年月
:2025年1月
■平成19年築■3LDK+フリースペース■地盤改良済み■長岡インター車5分
長岡市喜多町 中古物件
新潟県長岡市喜多町1605番地2
株式会社 ナンバ管理
価格
:
22,980,000
円
土地面積
:217.45㎡ /65.77坪
建物面積
:134㎡ /40.53坪
間取り
:3LDK
築年月
:2007年6月
敷地は広めな74.7坪! 駐車スペース4台(3台分のカーポート設置済み)
宝5丁目中古住宅「商談中」
長岡市宝5丁目5番地9
株式会社 島岡不動産企画
価格
:
23,000,000
円
土地面積
:246.96㎡ /74.7坪
建物面積
:133.12㎡ /40.26坪
間取り
:3LDK
築年月
:2009年9月
ミサワホームのインナーガレージ付コンパクト住宅 築5年オーシャンビューの定住・別荘・民泊向け 新築時から別荘利用なので、すぐにそのままお住まいいただけます
【ミサワホームのスムストック:築5年】長岡市寺泊大和田
新潟県長岡市寺泊大和田1277-15
ミサワホーム北越 株式会社
価格
:
23,000,000
円
土地面積
:255.6㎡ /77.31坪
建物面積
:96.07㎡ /29.06坪
間取り
:3LDK
築年月
:2020年5月
中古住宅
上越市下門前
株式会社ミナト
価格
:
23,000,000
円
土地面積
:201.26㎡ /60.88坪
建物面積
:121.72㎡ /36.82坪
間取り
:4LDK
築年月
:2012年12月
高床式3階建、県道沿いの広々駐車スペース、1階はテナント利用も可能な戸建です
三和区日和町中古物件
新潟県上越市三和区番町1740番
有限会社 管財
価格
:
23,000,000
円
土地面積
:710㎡ /214.77坪
建物面積
:498.71㎡ /150.85坪
間取り
:7LDK
築年月
:1997年9月
表示切替:
一覧表示
/
地図表示
並び替え:
指定なし
新着順
価格が安い順
価格が高い順
価格は物件の代金総額を表示しており、消費税が課税される場合は税込み価格です。
建築条件付き土地価格には、建物価格は含まれません。
物件情報の詳細については取り扱い店までお問い合わせください。
完成予想図はいずれも外構・植栽・外観等実際のものと異なることが多少あります。
CG合成の画像の場合実際と異なることが多少あります。
完成後1年以上経過したものが未入居として記載される場合があります。ご了承ください。
販売予定物件は販売開始するまで契約または予約の申し込みはできません。
ご購入の場合物件詳細や契約内容についてご自身で十分ご確認いただきますようよろしく御願いします。
建築条件付きとは…その土地に建築する建物の建築請負契約が、一定期間内に成立することを条件として売買される土地のことをいいます。請負契約成立に向けて設計プランを協議するため、土地購入者が希望する建物にするために一定の期間(概ね3ヶ月)交渉期間としその期間内に希望するプランが実現できたかどうかによって土地の購入の判断をします。納得のいくプランができず請負契約が未成立になった場合、土地契約にかかった代金(手付金など)は、すべて返却されます。
688件
該当しました。
<前のページ
24
25
26
27
28
29
30
31
32
33
34
次のページ>
0件
がマッチ
基本条件
物件種別
中古一戸建て
価格
下限なし
100万円
250万円
500万円
1000万円
1500万円
2000万円
2500万円
3000万円
3500万円
4000万円
4500万円
5000万円
5500万円
6000万円
6500万円
7000万円
7500万円
8000万円
8500万円
9000万円
9500万円
1億円
~
上限なし
100万円
250万円
500万円
1000万円
1500万円
2000万円
2500万円
3000万円
3500万円
4000万円
4500万円
5000万円
5500万円
6000万円
6500万円
7000万円
7500万円
8000万円
8500万円
9000万円
9500万円
1億円
間取り
ワンルーム
1K
1DK
1LDK
2K
2DK
2LDK
3K
3DK
3LDK
4K
4DK
4LDK以上
専有面積
下限なし
20㎡
30㎡
40㎡
50㎡
60㎡
70㎡
80㎡
90㎡
100㎡
~
上限なし
20㎡
30㎡
40㎡
50㎡
60㎡
70㎡
80㎡
90㎡
100㎡
土地面積
下限なし
60㎡ (約18坪)
70㎡ (約21坪)
80㎡ (約24坪)
90㎡ (約27坪)
100㎡ (約30坪)
110㎡ (約33坪)
120㎡ (約36坪)
130㎡ (約39坪)
140㎡ (約42坪)
150㎡ (約45坪)
160㎡ (約48坪)
170㎡ (約51坪)
180㎡ (約54坪)
190㎡ (約57坪)
200㎡ (約60坪)
250㎡ (約75坪)
300㎡ (約90坪)
~
上限なし
60㎡ (約18坪)
70㎡ (約21坪)
80㎡ (約24坪)
90㎡ (約27坪)
100㎡ (約30坪)
110㎡ (約33坪)
120㎡ (約36坪)
130㎡ (約39坪)
140㎡ (約42坪)
150㎡ (約45坪)
160㎡ (約48坪)
170㎡ (約51坪)
180㎡ (約54坪)
190㎡ (約57坪)
200㎡ (約60坪)
250㎡ (約75坪)
300㎡ (約90坪)
建物面積
下限なし
60㎡ (約18坪)
70㎡ (約21坪)
80㎡ (約24坪)
90㎡ (約27坪)
100㎡ (約30坪)
110㎡ (約33坪)
120㎡ (約36坪)
130㎡ (約39坪)
140㎡ (約42坪)
150㎡ (約45坪)
160㎡ (約48坪)
170㎡ (約51坪)
180㎡ (約54坪)
190㎡ (約57坪)
200㎡ (約60坪)
250㎡ (約75坪)
300㎡ (約90坪)
~
上限なし
60㎡ (約18坪)
70㎡ (約21坪)
80㎡ (約24坪)
90㎡ (約27坪)
100㎡ (約30坪)
110㎡ (約33坪)
120㎡ (約36坪)
130㎡ (約39坪)
140㎡ (約42坪)
150㎡ (約45坪)
160㎡ (約48坪)
170㎡ (約51坪)
180㎡ (約54坪)
190㎡ (約57坪)
200㎡ (約60坪)
250㎡ (約75坪)
300㎡ (約90坪)
坪単価
下限なし
5万円
10万円
15万円
20万円
25万円
30万円
35万円
40万円
45万円
50万円
~
上限なし
5万円
10万円
15万円
20万円
25万円
30万円
35万円
40万円
45万円
50万円
築年数
指定なし
新築
3年以内
5年以内
10年以内
15年以内
20年以内
方位
北
北東
東
南東
南
南西
西
北西
おすすめ条件
ペット可・相談
楽器可・相談
情報公開日
指定なし
本日
3日以内
1週間以内
1ヶ月以内
0件
がマッチ
人気のあるこだわり条件
角地(126)
高台に立地(35)
日当り良好(338)
閑静な住宅街(359)
スーパー近く(139)
長期優良住宅(3)
設計住宅性能評価付(2)
耐震構造(9)
フラット35S適合(1)
瑕疵担保保険対象(8)
耐震基準適合証明書あり(3)
新築時図面あり(52)
修繕記録あり(8)
BELS/省エネ基準適合認定建物(2)
インスペクション報告書あり(6)
建物確認・完了検査済証あり(25)
適合状況調査報告書あり(1)
瑕疵担保保険付き(14)
LDK15帖以上(143)
全室フローリング(59)
築10年以内(40)
築15年以内(27)
駐車2台可能(230)
駐車3台以上可能(264)
駐車場融雪設備あり(31)
南向き(148)
TVインターホン(130)
複層ガラス(79)
デインプルキー(31)
システムキッチン(233)
カウンターキッチン(73)
IHクッキングヒーター(108)
浄水器(32)
食器洗浄乾燥機(53)
3口コンロ(151)
2口コンロ(24)
ガスコンロ設置可能(36)
ガスコンロ設置済み(41)
追いだき機能付き(282)
浴室乾燥機(54)
バス1坪以上(250)
温水洗浄便座(314)
トイレ2か所以上(234)
シャワー付き洗面台(191)
エアコンあり(239)
床暖房(15)
24時間換気システム(39)
堀ごたつ(4)
全室エアコン(9)
オール電化(51)
太陽光発電システム(5)
省エネ給湯機(48)
ウッドデッキ・テラス(18)
ルーフバルコニー(15)
都市ガス(435)
LPG(93)
上水道(574)
下水道(493)
浄化槽(67)
バリアフリー(20)
その他水道(3)
ウォークインクローゼット(84)
全居室収納あり(124)
床下収納(43)
シューズBOX(150)
シューズインクローゼット(18)
BS端子(17)
CS(5)
CATV(6)
LAN端子(3)
内装リフォーム済み(82)
外装リフォーム済み(59)
リノベーション物件(33)
2世帯向き(35)
即引き渡し可能(141)
別荘(74)
田舎暮らし(167)
事業向け(53)
条件に合った物件数は、
0 件
です。
立地・環境
角地(126)
高台に立地(35)
日当り良好(338)
閑静な住宅街(359)
スーパー近く(139)
構造・工法・仕様
長期優良住宅(3)
設計住宅性能評価付(2)
耐震構造(9)
フラット35S適合(1)
瑕疵担保保険対象(8)
耐震基準適合証明書あり(3)
新築時図面あり(52)
修繕記録あり(8)
BELS/省エネ基準適合認定建物(2)
インスペクション報告書あり(6)
建物確認・完了検査済証あり(25)
適合状況調査報告書あり(1)
瑕疵担保保険付き(14)
面積・間取り
LDK15帖以上(143)
全室フローリング(59)
築年
築10年以内(40)
築15年以内(27)
駐車・駐輪
駐車2台可能(230)
駐車3台以上可能(264)
駐車場融雪設備あり(31)
採光・向き
南向き(148)
管理・防犯
TVインターホン(130)
複層ガラス(79)
デインプルキー(31)
キッチン
システムキッチン(233)
カウンターキッチン(73)
IHクッキングヒーター(108)
浄水器(32)
食器洗浄乾燥機(53)
3口コンロ(151)
2口コンロ(24)
ガスコンロ設置可能(36)
ガスコンロ設置済み(41)
浴室
追いだき機能付き(282)
浴室乾燥機(54)
バス1坪以上(250)
トイレ
温水洗浄便座(314)
トイレ2か所以上(234)
洗面所
シャワー付き洗面台(191)
冷暖房・空調
エアコンあり(239)
床暖房(15)
24時間換気システム(39)
堀ごたつ(4)
全室エアコン(9)
光熱設備
オール電化(51)
太陽光発電システム(5)
省エネ給湯機(48)
バルコニー・テラス
ウッドデッキ・テラス(18)
ルーフバルコニー(15)
室内仕様・設備
都市ガス(435)
LPG(93)
上水道(574)
下水道(493)
浄化槽(67)
バリアフリー(20)
その他水道(3)
収納
ウォークインクローゼット(84)
全居室収納あり(124)
床下収納(43)
シューズBOX(150)
シューズインクローゼット(18)
電気設備
BS端子(17)
CS(5)
CATV(6)
LAN端子(3)
リフォーム
内装リフォーム済み(82)
外装リフォーム済み(59)
リノベーション物件(33)
費用・入居・引渡・条件
2世帯向き(35)
即引き渡し可能(141)
その他
別荘(74)
田舎暮らし(167)
事業向け(53)
条件に合った物件数は、
0 件
です。
アパート・マンション・一戸建て
/
駐車場
/
貸土地
/
店舗
/
事務所
/
倉庫・工場
新築分譲マンション
/
中古マンション
/
新築一戸建て
/
中古一戸建て
/
売土地
/
投資物件・その他
マンション
/
一戸建て
/
土地
建てる・リフォーム
物件掲載企業一覧
掲載希望の企業様へ
新潟の不動産情報サイト
サービス利用規約
運営会社
サイトマップ
プライバシーポリシー
お問い合わせ
リンク
Copyright (C)
株式会社 コモンライフ・コーポレーション
. All Rights Reserved.
新潟・長岡・柏崎の賃貸・マンション・アパート・住宅の不動産物件情報サイト
不動産検索サイト「らくすむ」及び関連サイトに記載の不動産情報は、会員規約に則り、情報提供会社様の責任のもとに発信されております。
不動産の賃借、購入に関しては賃借者、購入者ご自身が情報を確認され、会社企業様から説明を受けられたうえで判断をお願いいたします。
不動産検索サイト「らくすむ」及び関連サイトに記載の不動産情報、写真、デザイン、コンテンツなどの
無断転載・転用・複製
など禁止します。