物件掲載企業数:301|賃貸物件:3,261件|売買物件:3,251件|今週の登録物件:296
閲覧中のブラウザ(インターネットエクスプローラー)は非推奨ブラウザです。
物件が正しく表示されなかったり、正しく検索されない場合があります。最新のブラウザ(Google Chrome・Edgeなど)にてご利用お願いいたします。
  

新潟県長岡市宮内1丁目10-25 中古一戸建て 3LDK 17,500,000円の物件情報

宮内1丁目のリノベーション物件です♪近隣駐車場も紹介可能です♪価格改定しました。

物件名/所在地 詳細 価格
宮内1丁目リノベーション物件♪近隣駐車場も紹介可能♪価
新潟県長岡市宮内1丁目10-25
  • 土地面積
    :113.96㎡ /34.47坪
  • 建物面積
    :106.27㎡ /32.14坪
  • 間取り
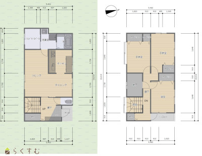
    :3LDK
  • 築年月
    :1986年7月
17,500,000
  • 宮内1丁目リノベーション物件♪近隣駐車場も紹介可能♪価
    有限会社 ABCホーム
  • この物件を問い合わせる/無料
  • TEL: 0258-35-6682

物件画像

外観 間取り
物件画像
※画像クリックで拡大表示
外観
物件画像
※画像クリックで拡大表示
間取り
詳細画像


物件概要

宮内1丁目のリノベーション物件です♪近隣駐車場も紹介可能です♪価格改定しました。
物件コード 00017-200304
物件名 宮内1丁目リノベーション物件♪近隣駐車場も紹介可能♪価
交通 駅:信越線 宮内駅から徒歩6分
物件所在地 新潟県長岡市宮内1丁目10-25
物件種別 中古一戸建て
構造 木造 階建 地上2階建
建ぺい率/容積率 60%/200%
建物面積 1階 54.1㎡/ 2階 52.17㎡/ 計 106.27㎡ /32.14坪
土地面積 113.96㎡ /34.47坪
築年月 1986年7月(築39年)
入居(引き渡し)時期 随時入居(引き渡し)可
用途地域 第1種住居地域 地目 宅地  (現状:宅地)
都市計画 市街化区域 学校区 上組小学校(1,102m)・宮内中学校(488m)
形状 間口 7m × 奥行 16.6m 道路 建築基準法第43条第2項2号(但し書き道路)
私道 建築基準法第43条第2項2号(但し書き道路) その他の制限 第3種高度地区、建築基準法第22条地域
  • 宮内1丁目リノベーション物件♪近隣駐車場も紹介可能♪価
    有限会社 ABCホーム
  • この物件を問い合わせる/無料
  • TEL: 0258-35-6682

物件詳細情報

所在階/階数 - 号室 -
販売価格 17,500,000円 方位 指定なし
間取り 3LDK (洋室:6、6、6)
LDK18
専有面積 - バルコニー面積 -
その他面積 - 駐車場 -
管理費 - 修繕積立金 -
現況 空家
仲介手数料 643,500円
利用制限 -
設備 角地、閑静な住宅街、LDK15帖以上、全室フローリング、駐車2台可能、複層ガラス、デインプルキー、システムキッチン、カウンターキッチン、追いだき機能付き、バス1坪以上、温水洗浄便座、都市ガス、上水道、下水道、内装リフォーム済み、外装リフォーム済み、リノベーション物件、即引き渡し可能
取引態様 一般
備考 私道公衆用道路部分14㎡は無償でお引渡し致します。
取り扱い会社

有限会社 ABCホーム

新潟県長岡市曙1-1-7

情報登録日 2025/09/29 次回更新予定日 2026/06/05
取引条件有効期限 2024/08/31
  • 宮内1丁目リノベーション物件♪近隣駐車場も紹介可能♪価
    有限会社 ABCホーム
  • この物件を問い合わせる/無料
  • TEL: 0258-35-6682

この物件の地図・周辺情報・行政情報

この物件の周辺情報・行政情報を詳しく見る
【周辺情報】
物件の近くにあるコンビニや銀行・学校など、アイコン付のマップで詳しく表示できます!
【行政情報】
水道料や下水道料・ガス料金など、暮らしに関係のある情報を表示しています。

担当取扱い店舗情報

取扱い店舗画像
有限会社 ABCホーム
TEL: 0258-35-6682
所在地: 新潟県長岡市曙1-1-7
交通:
営業時間: 9:00~18:00/定休日:
免許番号: 新潟県知事(4)4781号 この会社の情報を詳しく見る
所属団体名: 新潟県宅地建物取引業協会 長岡支部
取引態様: 一般
ホームページ: http://abc-home.d.dooo.jp/