新潟県長岡市表町2丁目3番地11アパガーデンコート長岡表町 中古マンション 2LDK 32,800,000円の物件情報

【長岡で唯一。“日常を変える一室”。】 雪の朝も、ストレスなく出発できるガレージ。 一日の終わりは、身体を癒す温泉へ。 扉を開ければ、そこはホテルのような空間。 光に包まれたリビング。整えられたキッチン。そして、圧倒的な収納。 1部屋をまるごと大型クローゼットへ変更。 季節ごとに分けられるシューズ収納。 収納で悩まない暮らしを実現しています。 ガレージ × 温泉 × フルリノベーション。 約1560万円をかけて仕上げた、完成された空間。 【リノベーション内容】2021年9月改装費(詳細):概ね1560万円 ・室内全体をタワマン風で豪華仕様に改装・天井を間接照明へ・リビングをタイル風に張替え・照明もシャンデリアで豪華!夜の暮らしをドラマチックに!・トイレの洋風に交換・キッチンもタワマン仕様に交換(IH未使用)・食卓、ソファ、センターテーブル付・玄関は臭いを抑えるためにエコカラット張り・マンションで困る収納スペースを解決。

物件名/所在地 詳細 価格
アパガーデンコート長岡表町
506号室
新潟県長岡市表町2丁目3番地11アパガーデンコート長岡表町
  • 専有面積
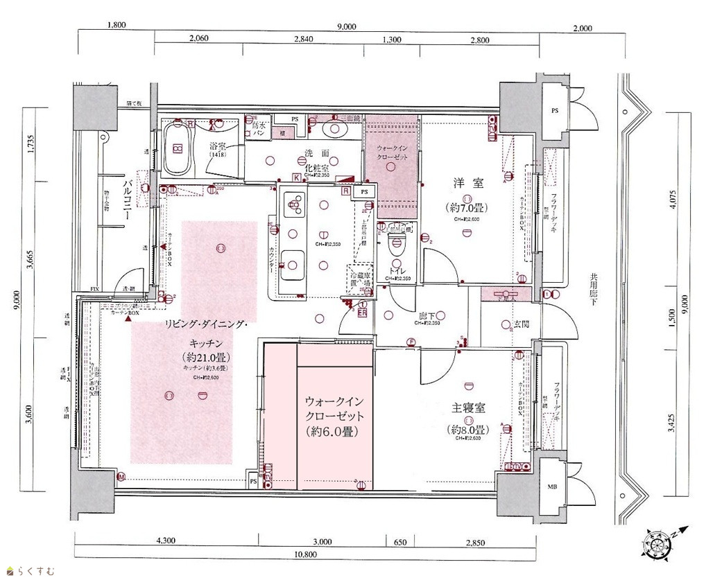
    :89.59㎡ /27.1坪
  • 間取り
    :2LDK
  • 築年月
    :2008年6月
32,800,000
  • アパガーデンコート長岡表町
    SUMORE NAGAOKA KONOMA Real Estate co.,ltd.
  • この物件を問い合わせる/無料
  • TEL: 0258-89-7833 0258-89-7833

物件画像

外観
間取り
物件画像
※画像クリックで拡大表示
外観
物件画像
※画像クリックで拡大表示
間取図面
詳細画像
物件画像
周辺
物件画像
ホテルのような空間 
物件画像
~光に包まれたリビング。~
物件画像
本物のイタリアタイルで包んだグレージュトーンの照明付キッチン
物件画像
圧倒的な収納
物件画像
雪の朝も、ストレスなく出発できるガレージ。
物件画像
一日の終わりは、身体を癒す温泉へ。
物件画像
飾り棚、リビングテレビスペース
物件画像
間接照明、ダイニング
物件画像
帰りたくなる家
物件画像
日常を変える。
物件画像
洗面所
物件画像
タカラの個別オーダーのバス
物件画像
バスルーム
物件画像
トイレ
物件画像
”日常を変える一室”
物件画像
地図画像


物件概要

ここは、ただのマンションではありません。 「ここ、ホテルより帰りたくなると思いません?」 “生活”ではなく、 「時間の質」が変わる部屋です。
物件コード 00344-200019
物件名 アパガーデンコート長岡表町
交通 駅:上越新幹線 長岡駅から徒歩7分、バス:大手通2丁目から徒歩4分
物件所在地 新潟県長岡市表町2丁目3番地11アパガーデンコート長岡表町
物件種別 中古マンション
構造 鉄筋コン 階建 地上14階地下1階建
建ぺい率/容積率 -/600%
建物面積 -
土地面積 2,001.19㎡ /605.35坪
築年月 2008年6月(築17年)
入居(引き渡し)時期 随時入居(引き渡し)可
用途地域 商業地域 地目 宅地  (現状:宅地)
都市計画 市街化区域 学校区 表町小学校(495m)・東中学校(1,157m)
形状 - 道路 北西 公道、北東 公道
私道 - その他の制限 -
  • アパガーデンコート長岡表町
    SUMORE NAGAOKA KONOMA Real Estate co.,ltd.
  • この物件を問い合わせる/無料
  • TEL: 0258-89-7833 0258-89-7833

物件詳細情報

所在階/階数 5階/14階 号室 506号室
販売価格 32,800,000円 方位 南東
間取り 2LDK (洋室:7、6、6)
21
間取:2LDK+S+W ガレージ規格(シャッター幅 ⅿ、幅 ⅿ、奥行 ⅿ高さ ⅿ)
専有面積 89.59㎡ /27.1坪 バルコニー面積 7.92㎡ /2.39坪
その他面積 17.66㎡ /5.34坪  シャッター付ガレージ  駐車場 ガレージ付
管理費 22,000円 修繕積立金 14,100円
現況 空家
仲介手数料 1,263,240円
町内会費 1,000円
ガレージ電気代 500円
住宅活動協力金 1,000円
温泉使用料 4,000円
利用制限 ペット:可、楽器:可
設備 10階建て以上、2階以上、日当り良好、最寄駅近く、外観タイル張り、洗濯機置き場、エレベーター、宅配BOX、タイヤ置き場あり、LDK15帖以上、全室フローリング、天井高2.5m以上、自走式駐車場、南向き、管理人常駐(日中)、セキュリティー良し、TV付きインターホン、エントランスオートロック、システムキッチン、IHクッキングヒーター、食器洗浄乾燥機、浴室乾燥機、浴室1坪以上、温水洗浄便座、シャワー付き洗面台、エアコン、床暖房、24時間換気システム、都市ガス、公営水道、下水道、ルーフバルコニー、ウォークインクローゼット、全室収納あり、シューズBOX、BS端子、CS端子、CATV、即入居可能、ペット相談、楽器相談
取引態様 専属専任
備考 【長岡で唯一。“日常を変える一室”。】
雪の朝も、ストレスなく出発できるガレージ。
一日の終わりは、身体を癒す温泉へ。
扉を開ければ、そこはホテルのような空間。
光に包まれたリビング。整えられたキッチン。そして、圧倒的な収納。
1部屋をまるごと大型クローゼットへ変更。
季節ごとに分けられるシューズ収納。
収納で悩まない暮らしを実現しています。
ガレージ × 温泉 × フルリノベーション。
約1560万円をかけて仕上げた、完成された空間。
【リノベーション内容】2021年9月 改装費(詳細):概ね1560万円
・室内全体をタワマン風で豪華仕様に改装
  ・天井を間接照明へ
  ・リビングをタイル風に張替え
  ・照明もシャンデリアで豪華!夜の暮らしをドラマチックに!
  ・トイレの洋風に交換
  ・キッチンもタワマン仕様に交換(IH未使用)
  ・食卓、ソファ、センターテーブル付
  ・玄関は臭いを抑えるためにエコカラット張り
  ・マンションで困る収納スペースを解決するために旧3LDKを2LDKに改装して1室を大型クローゼットと
   季節ごとに分けられる靴収納もあり。※もちろん、玄関には従来の大型収納付き
別途月額:ガレージ電気代500円、温泉使用料4,000円、町内費1,000円、住宅活動協力金1,000円。
初回 温泉採取許可申請料35,000円がかかります。
取り扱い会社

SUMORE NAGAOKA KONOMA Real Estate co.,ltd.

新潟県長岡市坂之上町二丁目3番地9sumoreビル

情報登録日 2026/05/21 次回更新予定日 2026/06/13
取引条件有効期限 2026/06/29
  • アパガーデンコート長岡表町
    SUMORE NAGAOKA KONOMA Real Estate co.,ltd.
  • この物件を問い合わせる/無料
  • TEL: 0258-89-7833 0258-89-7833

この物件の地図・周辺情報・行政情報

この物件の周辺情報・行政情報を詳しく見る
【周辺情報】
物件の近くにあるコンビニや銀行・学校など、アイコン付のマップで詳しく表示できます!
【行政情報】
水道料や下水道料・ガス料金など、暮らしに関係のある情報を表示しています。
セブン-イレブン 長岡表町店(コンビニ)まで100m
みつまクリニック(病院)まで250m
第四北越銀行 長岡本店(銀行)まで230m
りそな銀行 長岡支店(銀行)まで260m
ゆうちょ銀行 長岡店(銀行)まで160m

※カメラのアイコンがある場合は、マウスをポイントするとその施設の画像がご覧いただけます。


担当取扱い店舗情報

取扱い店舗画像
SUMORE NAGAOKA KONOMA Real Estate co.,ltd.
TEL: 0258-89-7833
所在地: 新潟県長岡市坂之上町二丁目3番地9sumoreビル
交通: JR長岡駅
営業時間: 9:00~18:00/定休日:日・祝日(事前予約受付しています)
免許番号: 新潟県知事(1)第5700号
所属団体名: 公社新潟県宅地建物取引協会 長岡支部
取引態様: 専属専任
ホームページ: https://sumore.co.jp/