新潟県長岡市栃尾山田62番地 中古一戸建て 10LDK 5,000,000円の物件情報

平屋(高床式)住宅。離れ部屋あり。付属建物車庫(3台分)付き。

物件名/所在地 詳細 価格
平屋(高床式)住宅~静寂に包まれる郊外の邸宅~
新潟県長岡市栃尾山田62番地
  • 土地面積
    :2,755.69㎡ /833.59坪
  • 建物面積
    :386.49㎡ /116.91坪
  • 間取り
    :10LDK
  • 築年月
    :1988年8月
5,000,000
  • 平屋(高床式)住宅~静寂に包まれる郊外の邸宅~
    SUMORE NAGAOKA KONOMA Real Estate co.,ltd.
  • この物件を問い合わせる/無料
  • TEL: 0258-89-7833 0258-89-7833

物件画像

外観
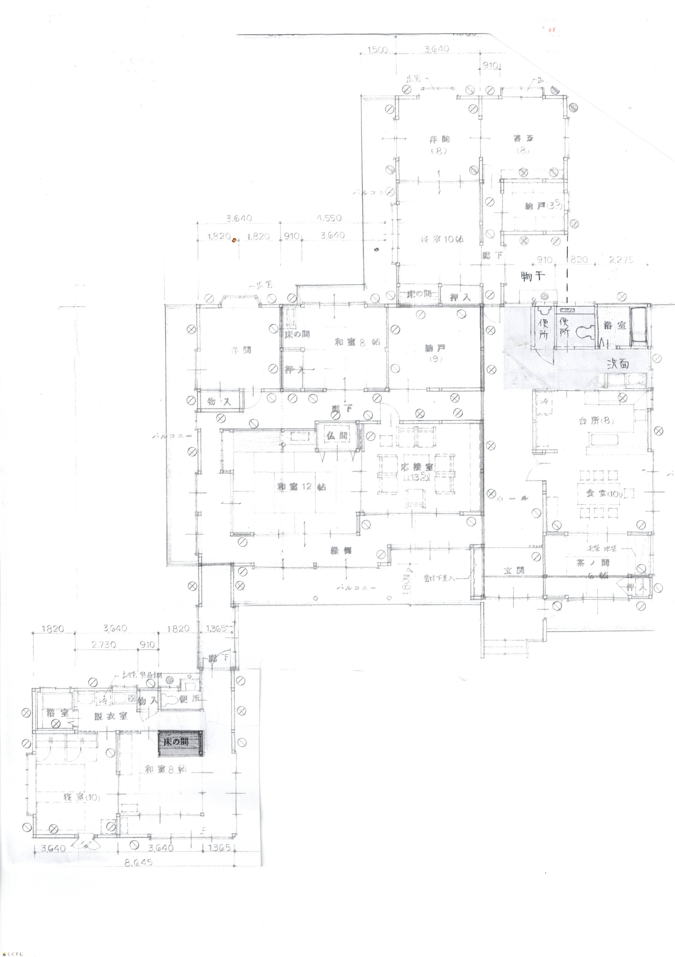
間取り
物件画像
※画像クリックで拡大表示
外観
物件画像
※画像クリックで拡大表示
間取り
詳細画像
物件画像
落雪式屋根
物件画像
高床式
物件画像
床下車庫
物件画像
玄関アプローチ階段
物件画像
道路からアプローチ
物件画像
付属車庫
物件画像
離れ
物件画像
物件画像
内部写真
物件画像
印刷用地図


物件概要

落雪式屋根(離れ部屋は別)のため、雪下ろし必要ありません。
物件コード 00344-200017
物件名 平屋(高床式)住宅~静寂に包まれる郊外の邸宅~
交通 駅:信越線 見附駅から徒歩151分、バス:土ヶ谷入口から徒歩8分
物件所在地 新潟県長岡市栃尾山田62番地
物件種別 中古一戸建て
構造 木造鉄筋コン 階建 地上2階建
建ぺい率/容積率 70%/200%
建物面積 1階 28.87㎡/ 2階 357.62㎡/ 計 386.49㎡ /116.91坪
土地面積 2,755.69㎡ /833.59坪
築年月 1988年8月(築37年)
入居(引き渡し)時期 相談
用途地域 用途の指定のない地域 地目 宅地  (現状:一部 農地)
都市計画 非線引き都市計画区域 学校区 栃尾東小学校(1,838m)・刈谷田中学校(2,752m)
形状 - 道路 市道栃尾山田土ヶ谷本津川線(都市計画道路)
私道 - その他の制限 隣地、土砂災害警戒区域
  • 平屋(高床式)住宅~静寂に包まれる郊外の邸宅~
    SUMORE NAGAOKA KONOMA Real Estate co.,ltd.
  • この物件を問い合わせる/無料
  • TEL: 0258-89-7833 0258-89-7833

物件詳細情報

所在階/階数 - 号室 -
販売価格 5,000,000円 方位
間取り 10LDK (和室:8畳、6畳、6畳、12畳) (洋室:10、13.5、6、8、8、10)
LDK18
その他、納戸2部屋(9、3.5) 増築、屋根裏部屋、物干し バルコニーあり。
専有面積 - バルコニー面積 -
その他面積 - 駐車場 -
管理費 - 修繕積立金 -
現況 居住中
仲介手数料 330,000円
利用制限 -
設備 新築時図面あり、建物確認・完了検査済証あり、LDK15帖以上、駐車3台以上可能、駐車場融雪設備あり、南向き、温水洗浄便座、トイレ2か所以上、エアコンあり、LPG、上水道、浄化槽、2世帯向き、別荘、田舎暮らし、事業向け
取引態様 専任
備考 家族も趣味も、すべてを包み込む12LDKのゆとり,週末は森の音だけ。静寂に包まれる郊外の邸宅,都心の喧騒を離れて、広さと静けさを手に入れる,二世帯も、シェアハウスも。使い方はあなた次第,庭木、池、家庭菜園等、広々敷地。敷地内消雪用の井戸完備。大家族、シェアハウス、二世帯住宅、アトリエなど、用途に合わせてご利用ください。●内部写真はお問い合わせください●
取り扱い会社

SUMORE NAGAOKA KONOMA Real Estate co.,ltd.

新潟県長岡市坂之上町二丁目3番地9sumoreビル

情報登録日 2025/09/25 次回更新予定日 2025/11/18
取引条件有効期限 2025/12/31
  • 平屋(高床式)住宅~静寂に包まれる郊外の邸宅~
    SUMORE NAGAOKA KONOMA Real Estate co.,ltd.
  • この物件を問い合わせる/無料
  • TEL: 0258-89-7833 0258-89-7833

この物件の地図・周辺情報・行政情報

この物件の周辺情報・行政情報を詳しく見る
【周辺情報】
物件の近くにあるコンビニや銀行・学校など、アイコン付のマップで詳しく表示できます!
【行政情報】
水道料や下水道料・ガス料金など、暮らしに関係のある情報を表示しています。

担当取扱い店舗情報

取扱い店舗画像
SUMORE NAGAOKA KONOMA Real Estate co.,ltd.
TEL: 0258-89-7833
所在地: 新潟県長岡市坂之上町二丁目3番地9sumoreビル
交通: JR長岡駅
営業時間: 9:00~18:00/定休日:日・祝日(事前予約受付しています)
免許番号: 新潟県知事(1)第5700号
所属団体名: 公社新潟県宅地建物取引協会 長岡支部
取引態様: 専任
ホームページ: https://sumore.co.jp/