| 落雪式屋根(離れ部屋は別)のため、雪下ろし必要ありません。 | |||
| 物件コード | 00344-200017 | ||
|---|---|---|---|
| 物件名 | 平屋(高床式)住宅~静寂に包まれる郊外の邸宅~ | ||
| 交通 | 駅:信越線 見附駅から徒歩151分、バス:土ヶ谷入口から徒歩8分 | ||
| 物件所在地 | 新潟県長岡市栃尾山田62番地 | ||
| 物件種別 | 中古一戸建て | ||
| 構造 | 木造鉄筋コン | 階建 | 地上2階建 |
| 建ぺい率/容積率 | 70%/200% | ||
| 建物面積 | 1階 28.87㎡/ 2階 357.62㎡/ 計 386.49㎡ /116.91坪 | ||
| 土地面積 | 2,755.69㎡ /833.59坪 | ||
| 築年月 | 1988年8月(築37年) | ||
| 入居時期 | 相談 | ||
| 用途地域 | 用途の指定のない地域 | 地目 | 宅地 (現状:一部 農地) |
| 都市計画 | 非線引き都市計画区域 | 学校区 | 栃尾東小学校(1,838m)・刈谷田中学校(2,752m) |
| 形状 | - | 道路 | 市道栃尾山田土ヶ谷本津川線(都市計画道路) |
| 私道 | - | ||
| 所在階/階数 | - | 号室 | - |
|---|---|---|---|
| 販売価格 | 5,000,000円 | 方位 | 南 |
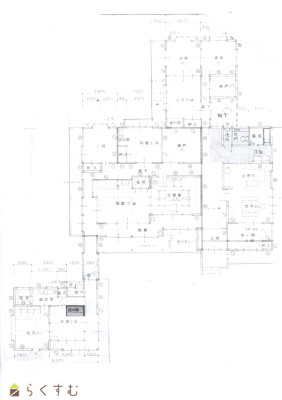
| 間取り |
10LDK (和室:8畳、6畳、6畳、12畳) (洋室:10、13.5、6、8、8、10) LDK18 その他、納戸2部屋(9、3.5) 増築、屋根裏部屋、物干し バルコニーあり。 |
||
| 専有面積 | - | バルコニー面積 | - |
| その他面積 | - | 駐車場 | - |
| 管理費 | - | 修繕積立金 | - |
| 現況 | 居住中 | ||
| 仲介手数料 | 330,000円 | ||
| 利用制限 | - | ||
| 設備 | 新築時図面あり、建物確認・完了検査済証あり、LDK15帖以上、駐車3台以上可能、駐車場融雪設備あり、南向き、温水洗浄便座、トイレ2か所以上、エアコンあり、LPG、上水道、浄化槽、2世帯向き、別荘、田舎暮らし、事業向け | ||
| 取引態様 | 専任 | ||
| 備考 | 家族も趣味も、すべてを包み込む12LDKのゆとり,週末は森の音だけ。静寂に包まれる郊外の邸宅,都心の喧騒を離れて、広さと静けさを手に入れる,二世帯も、シェアハウスも。使い方はあなた次第,庭木、池、家庭菜園等、広々敷地。敷地内消雪用の井戸完備。大家族、シェアハウス、二世帯住宅、アトリエなど、用途に合わせてご利用ください。●内部写真はお問い合わせください● | ||
| 情報登録日 | 2025/09/25 | 次回更新予定日 | 2025/11/16 |
| 取引条件有効期限 | 2025/12/31 | ||
|
|
|
|
| TEL: | 0258-89-7833 |
|---|---|
| 所在地: | 新潟県長岡市坂之上町二丁目3番地9sumoreビル |
| 交通: | JR長岡駅 |
| 営業時間: | 9:00~18:00/定休日:日・祝日(事前予約受付しています) |
| 免許番号: | 新潟県知事(1)第5700号 |
| 所属団体名: | 公社新潟県宅地建物取引協会 長岡支部 |
| 取引態様: | 専任 |