新潟県新潟市中央区万代1丁目1-4 中古マンション 3LDK 9,990,000円の物件情報

令和8年3月新規リフォーム。新潟駅徒歩7分、通勤・通学やお出かけにも便利な万代エリア。万代シティをはじめ商業施設・飲食店・金融機関・医療機関が徒歩10分圏内に揃う利便性の高い立地。5階部分の角部屋につき、通風・採光に優れた開放感のある住戸

物件名/所在地 詳細 価格
万代ファーストハイツ Brightマンション
※号室
新潟県新潟市中央区万代1丁目1-4
  • 専有面積
    :78.34㎡ /23.69坪
  • 間取り
    :3LDK
  • 築年月
    :1979年5月
9,990,000
  • 万代ファーストハイツ Brightマンション
    有限会社 ブライトサクセス
  • この物件を問い合わせる/無料
  • TEL: 0258-35-2220 0258-35-2220

物件画像

外観
間取り
物件画像
※画像クリックで拡大表示
外観
物件画像
※画像クリックで拡大表示
間取り
詳細画像
物件画像
リビングダイニング
物件画像
リビング
物件画像
リビング
物件画像
リビング
物件画像
キッチン
物件画像
バスルーム
物件画像
洗面所
物件画像
トイレ
物件画像
和室
物件画像
和室
物件画像
和室
物件画像
収納
物件画像
共用部
物件画像
共用部
物件画像
共用部
物件画像
共用部
物件画像
駐車場
物件画像
エントランス
物件画像
眺望
物件画像
印刷用地図
動画


物件概要

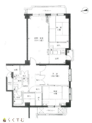
和室2部屋を備えた3LDKで落ち着きのある住空間です。LD11.5帖とキッチンを分けた間取りで空間を使い分けしやすい設計です。LD続きの和室があり空間に広がりを持たせています。来客時やくつろぎの場としても活用しやすい和室です。全居室収納付きで住まい全体をすっきり整えやすくなっています。廊下には押し入れを備え、季節物や日用品の収納にも便利です。バルコニーが2か所あり用途に合わせて使い分けできます。
物件コード 00320-200229
物件名 万代ファーストハイツ Brightマンション
交通 駅:上越新幹線 新潟駅から徒歩10分、バス:万代シティバスセンターから徒歩2分
物件所在地 新潟県新潟市中央区万代1丁目1-4
物件種別 中古マンション
構造 鉄骨鉄筋コン 階建 地上11階建
建ぺい率/容積率 80%/570%
建物面積 計 78.34㎡ /23.69坪
土地面積 -
築年月 1979年5月(築47年)
入居(引き渡し)時期 相談
用途地域 商業地域 地目 宅地
都市計画 市街化区域 学校区 南万代小学校(783m)・宮浦中学校(427m)
形状 - 道路 東側公道幅員9.3m
私道 - その他の制限 準防火地域、道路斜線制限、隣地斜線制限
  • 万代ファーストハイツ Brightマンション
    有限会社 ブライトサクセス
  • この物件を問い合わせる/無料
  • TEL: 0258-35-2220 0258-35-2220

物件詳細情報

所在階/階数 5階/11階 号室 ※号室
販売価格 9,990,000円 方位
間取り 3LDK (和室:6畳、6畳) (洋室:6.3)
LD11.5
専有面積 78.34㎡ /23.69坪 バルコニー面積 10.3㎡ /3.11坪
その他面積 - 駐車場 月額17000円〜
管理費 月額12100円 修繕積立金 月額16500円
現況 空家
仲介手数料 なし
自転車置き場 300円
月額
利用制限 ペット:不可、楽器:相談
設備 10階建て以上、角部屋、2階以上、日当り良好、スーパー近く、最寄駅近く、洗濯機置き場、エレベーター、和室あり、駐輪場、管理人常駐(日中)、ガスコンロ設置済み、都市ガス、公営水道、下水道、全室収納あり、シューズBOX、楽器相談、事務所可
取引態様 売主
備考 令和8年3月スイッチ・コンセント交換
駐車場は月額17000円(屋根無し)20000円(屋根あり)※空き状況要確認
管理会社:ハウズイング株式会社
取り扱い会社

有限会社 ブライトサクセス

新潟県長岡市新町1-1-2

情報登録日 2026/05/07 次回更新予定日 2026/05/22
取引条件有効期限 2027/01/09
  • 万代ファーストハイツ Brightマンション
    有限会社 ブライトサクセス
  • この物件を問い合わせる/無料
  • TEL: 0258-35-2220 0258-35-2220

この物件の地図・周辺情報・行政情報

この物件の周辺情報・行政情報を詳しく見る
【周辺情報】
物件の近くにあるコンビニや銀行・学校など、アイコン付のマップで詳しく表示できます!
【行政情報】
水道料や下水道料・ガス料金など、暮らしに関係のある情報を表示しています。
ローソン アパリゾート新潟駅前大通店(コンビニ)まで80m
ファミリーマート 新潟万代四丁目店(コンビニ)まで150m
ココカラファイン 新潟駅前店(ドラッグストア)までm
新潟伊勢丹(デパート)までm
第四北越銀行 新潟駅前支店(銀行)までm
ゆうちょ銀行 新潟店(銀行)までm
郵便ポスト ラブラ万代北側(郵便局)までm

※カメラのアイコンがある場合は、マウスをポイントするとその施設の画像がご覧いただけます。


担当取扱い店舗情報

取扱い店舗画像
有限会社 ブライトサクセス
TEL: 0258-35-2220
所在地: 新潟県長岡市新町1-1-2
交通: 長岡駅
営業時間: 午前10時00分~午後7時 /定休日:オンラインサービス:午前9時30分~午後9時
免許番号: 新潟県知事(1)第5629号
所属団体名: 公社 新潟県宅地建物取引協会 新潟支部
取引態様: 売主
ホームページ: https://bright-success.net/