| 和室2部屋を備えた3LDKで落ち着きのある住空間です。LD11.5帖とキッチンを分けた間取りで空間を使い分けしやすい設計です。LD続きの和室があり空間に広がりを持たせています。来客時やくつろぎの場としても活用しやすい和室です。全居室収納付きで住まい全体をすっきり整えやすくなっています。廊下には押し入れを備え、季節物や日用品の収納にも便利です。バルコニーが2か所あり用途に合わせて使い分けできます。 | |||
| 物件コード | 00320-200229 | ||
|---|---|---|---|
| 物件名 | 万代ファーストハイツ Brightマンション | ||
| 交通 | 駅:上越新幹線 新潟駅から徒歩10分、バス:万代シティバスセンターから徒歩2分 | ||
| 物件所在地 | 新潟県新潟市中央区万代1丁目1-4 | ||
| 物件種別 | 中古マンション | ||
| 構造 | 鉄骨鉄筋コン | 階建 | 地上11階建 |
| 建ぺい率/容積率 | 80%/570% | ||
| 建物面積 | 計 78.34㎡ /23.69坪 | ||
| 土地面積 | - | ||
| 築年月 | 1979年5月(築47年) | ||
| 入居時期 | 相談 | ||
| 用途地域 | 商業地域 | 地目 | 宅地 |
| 都市計画 | 市街化区域 | 学校区 | 南万代小学校(783m)・宮浦中学校(427m) |
| 形状 | - | 道路 | 東側公道幅員9.3m |
| 私道 | - | ||
| 所在階/階数 | 5階/11階 | 号室 | ※号室 |
|---|---|---|---|
| 販売価格 | 9,990,000円 | 方位 | 東 |
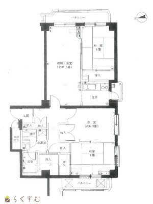
| 間取り |
3LDK (和室:6畳、6畳) (洋室:6.3) LD11.5 |
||
| 専有面積 | 78.34㎡ /23.69坪 | バルコニー面積 | 10.3㎡ /3.11坪 |
| その他面積 | - | 駐車場 | 月額17000円〜 |
| 管理費 | 月額12100円 | 修繕積立金 | 月額16500円 |
| 現況 | 空家 | ||
| 仲介手数料 | なし | ||
| 利用制限 | ペット:不可、楽器:相談 | ||
| 設備 | 10階建て以上、角部屋、2階以上、日当り良好、スーパー近く、最寄駅近く、洗濯機置き場、エレベーター、和室あり、駐輪場、管理人常駐(日中)、ガスコンロ設置済み、都市ガス、公営水道、下水道、全室収納あり、シューズBOX、楽器相談、事務所可 | ||
| 取引態様 | 売主 | ||
| 備考 | 令和8年3月スイッチ・コンセント交換 駐車場は月額17000円(屋根無し)20000円(屋根あり)※空き状況要確認 管理会社:ハウズイング株式会社 |
||
| 情報登録日 | 2026/05/07 | 次回更新予定日 | 2026/05/22 |
| 取引条件有効期限 | 2027/01/09 | ||
|
|
|
|
| TEL: | 0258-35-2220 |
|---|---|
| 所在地: | 新潟県長岡市新町1-1-2 |
| 交通: | 長岡駅 |
| 営業時間: | 午前10時00分~午後7時 /定休日:オンラインサービス:午前9時30分~午後9時 |
| 免許番号: | 新潟県知事(1)第5629号 |
| 所属団体名: | 公社 新潟県宅地建物取引協会 新潟支部 |
| 取引態様: | 売主 |