新潟県長岡市城岡3丁目11-31付近 新築一戸建て 3LDK 23,800,000円の物件情報

【高性能×高気密×高断熱の北海道仕様住宅】 ■前面道路消雪パイプあり ■二重断熱×トリプルサッシで家中快適 ■エアコン2台付き ■スーパー・コンビニ・薬局まで徒歩6分

物件名/所在地 詳細 価格
長岡市城岡1号棟 新築住宅
新潟県長岡市城岡3丁目11-31付近
  • 土地面積
    :132.83㎡ /40.18坪
  • 建物面積
    :93.57㎡ /28.3坪
  • 間取り
    :3LDK
  • 築年月
    :2025年7月
23,800,000
  • 長岡市城岡1号棟 新築住宅
    新潟土地建物販売センター 株式会社
  • この物件を問い合わせる/無料
  • TEL: 0258-89-8245 0258-89-8245

物件画像

外観
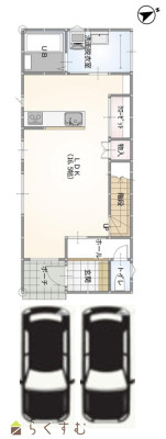
間取り
物件画像
※画像クリックで拡大表示
完成いたしました♪内覧予約はお気軽にお問い合わせください♪
物件画像
※画像クリックで拡大表示
コンパクトながらも収納が豊富に取り入れられた間取りです♪
詳細画像
物件画像
吹抜けのある16.5帖LDK♪採光が差し込み明るく開放的空間
物件画像
タッチレス水栓やIHコンロを搭載の便利なシステムキッチン。
物件画像
収納スペースも豊富で、調理器具や食器もすっきり整理できます。
物件画像
対面キッチンは家族や友達とお食事や会話が自然と広がりそうです
物件画像
ストック品などの収納に便利なパントリーを完備。
物件画像
広々とした洗面脱衣室は物干し金具設置済。
物件画像
足を伸ばせる一坪風呂になります。
物件画像
温水洗浄機能付きのシンプルなトイレ。
物件画像
洋室A7帖 ゆったりした広さのあるお部屋です♪
物件画像
洋室B5.3帖 大容量のウォークインクローゼット完備。
物件画像
洋室C5.3帖 2面採光につき明るさと風通しを兼ね備えた空間
物件画像
2階の共用部にも収納を備え、すっきりとした空間を実現。
物件画像
(参考写真) 2階ホールにはエアコン付き
物件画像
(参考写真) 大容量の下駄箱収納
物件画像
高性能グラスウォール×発泡スチロールの「二重断熱」を採用
物件画像
床下断熱を徹底的に!床暖房が無くても年中暖かく快適♪
物件画像
高性能な天井断熱材で魔法瓶のようにポカポカに
物件画像
サッシには内樹脂製の複層ガラスを採用し、省エネ効果を向上
物件画像
パナソニック製の24時間熱交換換気扇を標準装備


物件概要

二重断熱と熱交換換気扇により、エアコン1台で家中どこでも快適にお過ごしいただけます!ぜひ一度ご体感ください♪詳細やご見学についてはいつでもお気軽にお問い合わせください♪
物件コード 00239-200513
物件名 長岡市城岡1号棟 新築住宅
交通 駅:信越線 北長岡駅から徒歩17分、バス:OM製作所前から徒歩7分
物件所在地 新潟県長岡市城岡3丁目11-31付近
物件種別 新築一戸建て
構造 木造 階建 地上2階建
建ぺい率/容積率 60%/200%
建物面積 計 93.57㎡ /28.3坪
土地面積 132.83㎡ /40.18坪
築年月 2025年7月(築10ヶ月)
入居(引き渡し)時期 随時入居(引き渡し)可
用途地域 準工業地域 地目 宅地
都市計画 市街化区域 学校区 新町小学校(2,100m)・北中学校(1,300m)
形状 - 道路 南東側6.0m公道
私道 - その他の制限 法22条
  • 長岡市城岡1号棟 新築住宅
    新潟土地建物販売センター 株式会社
  • この物件を問い合わせる/無料
  • TEL: 0258-89-8245 0258-89-8245

物件詳細情報

所在階/階数 - 号室 -
販売価格 23,800,000円 方位 南西
間取り 3LDK (洋室:7.0、5.3、5.3)
LDK16.5
リビング収納・2階ホール収納・2箇所ウォークインクローゼットあり
専有面積 - バルコニー面積 -
その他面積 - 駐車場 -
管理費 - 修繕積立金 -
現況 空家
仲介手数料 851,400円
利用制限 -
設備 整形地、前面道路6m以上、日当り良好、閑静な住宅街、スーパー近く、LDK15畳以上、全室フローリング、天井高2.5m以上、駐車場2台以上、TVインターホン、複層ガラス、システムキッチン、カウンターキッチン、IHクッキングヒーター、3口コンロ、追いだき機能付き、浴室暖房乾燥機、バス1坪以上、温水洗浄便座、シャワー付き洗面台、エアコン、24時間換気システム、オール電化、省エネ給湯、高気密高断熱住宅、上水道、下水道、電気、ウォークインクローゼット、全居室収納あり、床下収納、シューズBOX、照明器具付き、即引き渡し可能、バリアフリー
取引態様 一般
備考 【教育】
新町小学校 約2100m 徒歩約27分
北中学校 約1300m 徒歩約17分

【交通】
JR信越本線 北長岡駅 徒歩約17分
越後交通バス OM製作所 徒歩約7分

-物件情報-
■空気環境を整える24時間熱交換換気扇搭載
■各室収納・LDK収納などの多彩な収納あり
■開放的で明るい吹き抜けのあるLDK
■2箇所にホスクリーン付き!天候に左右されずお洗濯可能
取り扱い会社

新潟土地建物販売センター 株式会社

新潟県長岡市台町1-7-331階

情報登録日 2026/04/28 次回更新予定日 2026/05/22
取引条件有効期限 2026/12/31
  • 長岡市城岡1号棟 新築住宅
    新潟土地建物販売センター 株式会社
  • この物件を問い合わせる/無料
  • TEL: 0258-89-8245 0258-89-8245

この物件の地図・周辺情報・行政情報

この物件の周辺情報・行政情報を詳しく見る
【周辺情報】
物件の近くにあるコンビニや銀行・学校など、アイコン付のマップで詳しく表示できます!
【行政情報】
水道料や下水道料・ガス料金など、暮らしに関係のある情報を表示しています。

担当取扱い店舗情報

取扱い店舗画像
新潟土地建物販売センター 株式会社
TEL: 0258-89-8245
所在地: 新潟県長岡市台町1-7-331階
交通: 長岡駅
営業時間: 9:00~18:00/定休日:なし
免許番号: 新潟県知事(3)第5151号
所属団体名: 公社 新潟県宅地建物取引協会 新潟支部
取引態様: 一般
ホームページ: https://niigata-tochitate.jp/