| 二重断熱と熱交換換気扇により、エアコン1台で家中どこでも快適にお過ごしいただけます!ぜひ一度ご体感ください♪詳細やご見学についてはいつでもお気軽にお問い合わせください♪ | |||
| 物件コード | 00239-200513 | ||
|---|---|---|---|
| 物件名 | 長岡市城岡1号棟 新築住宅 | ||
| 交通 | 駅:信越線 北長岡駅から徒歩17分、バス:OM製作所前から徒歩7分 | ||
| 物件所在地 | 新潟県長岡市城岡3丁目11-31付近 | ||
| 物件種別 | 新築一戸建て | ||
| 構造 | 木造 | 階建 | 地上2階建 |
| 建ぺい率/容積率 | 60%/200% | ||
| 建物面積 | 計 93.57㎡ /28.3坪 | ||
| 土地面積 | 132.83㎡ /40.18坪 | ||
| 築年月 | 2025年7月(築9ヶ月) | ||
| 入居時期 | 随時入居(引き渡し)可 | ||
| 用途地域 | 準工業地域 | 地目 | 宅地 |
| 都市計画 | 市街化区域 | 学校区 | 新町小学校(2,100m)・北中学校(1,300m) |
| 形状 | - | 道路 | 南東側6.0m公道 |
| 私道 | - | ||
| 所在階/階数 | - | 号室 | - |
|---|---|---|---|
| 販売価格 | 23,800,000円 | 方位 | 南西 |
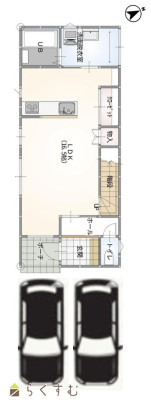
| 間取り |
3LDK (洋室:7.0、5.3、5.3) LDK16.5 リビング収納・2階ホール収納・2箇所ウォークインクローゼットあり |
||
| 専有面積 | - | バルコニー面積 | - |
| その他面積 | - | 駐車場 | - |
| 管理費 | - | 修繕積立金 | - |
| 現況 | 空家 | ||
| 仲介手数料 | 851,400円 | ||
| 利用制限 | - | ||
| 設備 | 整形地、前面道路6m以上、日当り良好、閑静な住宅街、スーパー近く、LDK15畳以上、全室フローリング、天井高2.5m以上、駐車場2台以上、TVインターホン、複層ガラス、システムキッチン、カウンターキッチン、IHクッキングヒーター、3口コンロ、追いだき機能付き、浴室暖房乾燥機、バス1坪以上、温水洗浄便座、シャワー付き洗面台、エアコン、24時間換気システム、オール電化、省エネ給湯、高気密高断熱住宅、上水道、下水道、電気、ウォークインクローゼット、全居室収納あり、床下収納、シューズBOX、照明器具付き、即引き渡し可能、バリアフリー | ||
| 取引態様 | 一般 | ||
| 備考 | 【教育】 新町小学校 約2100m 徒歩約27分 北中学校 約1300m 徒歩約17分 【交通】 JR信越本線 北長岡駅 徒歩約17分 越後交通バス OM製作所 徒歩約7分 -物件情報- ■空気環境を整える24時間熱交換換気扇搭載 ■各室収納・LDK収納などの多彩な収納あり ■開放的で明るい吹き抜けのあるLDK ■2箇所にホスクリーン付き!天候に左右されずお洗濯可能 |
||
| 情報登録日 | 2026/04/28 | 次回更新予定日 | 2026/05/13 |
| 取引条件有効期限 | 2026/12/31 | ||
|
|
|
|
| TEL: | 0258-89-8245 |
|---|---|
| 所在地: | 新潟県長岡市台町1-7-331階 |
| 交通: | 長岡駅 |
| 営業時間: | 9:00~18:00/定休日:なし |
| 免許番号: | 新潟県知事(3)第5151号 |
| 所属団体名: | 公社 新潟県宅地建物取引協会 新潟支部 |
| 取引態様: | 一般 |