新潟県柏崎市中田1952-16 中古一戸建て 4DK 4,300,000円の物件情報

4DK *メーターモジュール *軽量鉄骨造 *メーカー施工

物件名/所在地 詳細 価格
柏崎市中田売住宅
新潟県柏崎市中田1952-16
  • 土地面積
    :270.27㎡ /81.75坪
  • 建物面積
    :93.74㎡ /28.35坪
  • 間取り
    :4DK
  • 築年月
    :1980年3月
4,300,000
  • 柏崎市中田売住宅
    株式会社 ホーメックス
  • この物件を問い合わせる/無料
  • TEL: 0257-24-0034 0257-24-0034

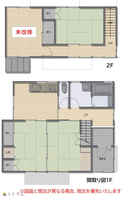
物件画像

外観
間取り
物件画像
※画像クリックで拡大表示
外観
物件画像
※画像クリックで拡大表示
間取り図
詳細画像
物件画像
外観
物件画像
キッチン
物件画像
和室
物件画像
和室
物件画像
風呂
物件画像
洗面
物件画像
トイレ
物件画像
地図画像


物件概要

物件コード 00088-200786
物件名 柏崎市中田売住宅
交通 駅:信越線 茨目駅から徒歩41分、バス:かしわ荘入口から徒歩3分
物件所在地 新潟県柏崎市中田1952-16
物件種別 中古一戸建て
構造 軽量鉄骨 階建 地上2階建
建ぺい率/容積率 70%/200%
建物面積 1階 61.02㎡/ 2階 32.72㎡/ 計 93.74㎡ /28.35坪
土地面積 270.27㎡ /81.75坪
築年月 1980年3月(築45年)
入居(引き渡し)時期 相談
用途地域 用途の指定のない地域 地目 宅地
都市計画 - 学校区 北鯖石小学校(486m)・東中学校(1,226m)
形状 - 道路 公道
私道 - その他の制限 -
  • 柏崎市中田売住宅
    株式会社 ホーメックス
  • この物件を問い合わせる/無料
  • TEL: 0257-24-0034 0257-24-0034

物件詳細情報

所在階/階数 - 号室 -
販売価格 4,300,000円 方位
間取り 4DK (和室:6畳、6畳、6畳) (洋室:7.2)
DK7.2
専有面積 - バルコニー面積 -
その他面積 - 駐車場 -
管理費 - 修繕積立金 -
現況 空家
仲介手数料 330,000円
利用制限 -
設備 閑静な住宅街、駐車2台可能、システムキッチン、追いだき機能付き、バス1坪以上、温水洗浄便座、都市ガス、上水道、下水道、内装リフォーム済み、外装リフォーム済み、リノベーション物件
取引態様 一般
備考 ■平成23年大規模改修工事済み
■車庫付き(未登記)
■スチール物置有
□現況有姿での売買となります。
□仲介手数料別途(330,000円)
取り扱い会社

株式会社 ホーメックス

新潟県柏崎市土合628-1

情報登録日 2025/09/29 次回更新予定日 2025/11/23
取引条件有効期限 2025/08/02
  • 柏崎市中田売住宅
    株式会社 ホーメックス
  • この物件を問い合わせる/無料
  • TEL: 0257-24-0034 0257-24-0034

この物件の地図・周辺情報・行政情報

この物件の周辺情報・行政情報を詳しく見る
【周辺情報】
物件の近くにあるコンビニや銀行・学校など、アイコン付のマップで詳しく表示できます!
【行政情報】
水道料や下水道料・ガス料金など、暮らしに関係のある情報を表示しています。
ローソン 柏崎中田店(コンビニ)まで510m
中田郵便局(郵便局)まで510m

※カメラのアイコンがある場合は、マウスをポイントするとその施設の画像がご覧いただけます。


担当取扱い店舗情報

取扱い店舗画像
株式会社 ホーメックス
TEL: 0257-24-0034
所在地: 新潟県柏崎市土合628-1
交通:
営業時間: 8:30~17:30/定休日:土・日・祝(対応可能です) 年末年始・お盆・GW
免許番号: 新潟県知事(9)第3199号
所属団体名: 新潟県宅地建物取引業協会 柏崎支部
取引態様: 一般
ホームページ: http://homex.co.jp/