| 物件コード | 00088-200786 | ||
|---|---|---|---|
| 物件名 | 柏崎市中田売住宅 | ||
| 交通 | 駅:信越線 茨目駅から徒歩41分、バス:かしわ荘入口から徒歩3分 | ||
| 物件所在地 | 新潟県柏崎市中田1952-16 | ||
| 物件種別 | 中古一戸建て | ||
| 構造 | 軽量鉄骨 | 階建 | 地上2階建 |
| 建ぺい率/容積率 | 70%/200% | ||
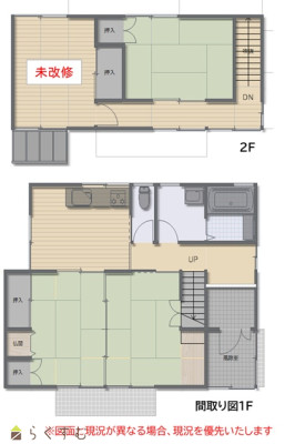
| 建物面積 | 1階 61.02㎡/ 2階 32.72㎡/ 計 93.74㎡ /28.35坪 | ||
| 土地面積 | 270.27㎡ /81.75坪 | ||
| 築年月 | 1980年3月(築45年) | ||
| 入居時期 | 相談 | ||
| 用途地域 | 用途の指定のない地域 | 地目 | 宅地 |
| 都市計画 | - | 学校区 | 北鯖石小学校(486m)・東中学校(1,226m) |
| 形状 | - | 道路 | 公道 |
| 私道 | - | ||
| 所在階/階数 | - | 号室 | - |
|---|---|---|---|
| 販売価格 | 4,300,000円 | 方位 | 東 |
| 間取り |
4DK (和室:6畳、6畳、6畳) (洋室:7.2) DK7.2 |
||
| 専有面積 | - | バルコニー面積 | - |
| その他面積 | - | 駐車場 | - |
| 管理費 | - | 修繕積立金 | - |
| 現況 | 空家 | ||
| 仲介手数料 | 330,000円 | ||
| 利用制限 | - | ||
| 設備 | 閑静な住宅街、駐車2台可能、システムキッチン、追いだき機能付き、バス1坪以上、温水洗浄便座、都市ガス、上水道、下水道、内装リフォーム済み、外装リフォーム済み、リノベーション物件 | ||
| 取引態様 | 一般 | ||
| 備考 | ■平成23年大規模改修工事済み ■車庫付き(未登記) ■スチール物置有 □現況有姿での売買となります。 □仲介手数料別途(330,000円) |
||
| 情報登録日 | 2025/09/29 | 次回更新予定日 | 2025/11/17 |
| 取引条件有効期限 | 2025/08/02 | ||
|
|
|
|
| TEL: | 0257-24-0034 |
|---|---|
| 所在地: | 新潟県柏崎市土合628-1 |
| 交通: | |
| 営業時間: | 8:30~17:30/定休日:土・日・祝(対応可能です) 年末年始・お盆・GW |
| 免許番号: | 新潟県知事(9)第3199号 |
| 所属団体名: | 新潟県宅地建物取引業協会 柏崎支部 |
| 取引態様: | 一般 |