新潟県長岡市本町2-2-16 投資物件・その他 2,300,000円の物件情報

【オーナーチェンジ】現在賃貸中(賃料月額28,000円、表面利回り14.6%)

物件名/所在地 詳細 価格
表面利回り
レクセル長岡
202号室
新潟県長岡市本町2-2-16
  • 土地面積
    :-
  • 建ぺい率
    :-
  • 容積率
    :-
2,300,000
14.6%
(満室想定時)
  • レクセル長岡
    有限会社 グリーン土地
  • この物件を問い合わせる/無料
  • TEL: 0258-32-1222 0258-32-1222

物件画像

外観
間取り
物件画像
※画像クリックで拡大表示
外観
物件画像
※画像クリックで拡大表示
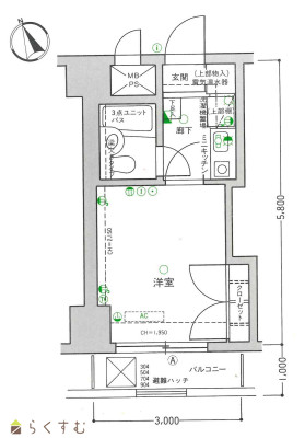
間取図(現況優先)
詳細画像


物件概要

物件コード 00071-200138
物件名 レクセル長岡
交通 駅:上越新幹線 長岡駅から徒歩10分
物件所在地 新潟県長岡市本町2-2-16
物件種別 投資物件・その他
物件区分 マンション(区分所有)
構造 鉄骨鉄筋コン 階建 地上12階建
建ぺい率/容積率 -
建物面積 -
土地面積 -
築年月 1993年4月(築32年)
入居(引き渡し)時期 相談
用途地域 商業地域 地目 -
都市計画 市街化区域 学校区 表町小学校(470m)・東中学校(1,097m)
形状 - 道路 -
私道 - その他の制限 -
  • レクセル長岡
    有限会社 グリーン土地
  • この物件を問い合わせる/無料
  • TEL: 0258-32-1222 0258-32-1222

物件詳細情報

所在階/階数 2階/12階 号室 202号室
販売価格 2,300,000円 方位 -
表面利回り(満室想定時) 14.6% 満室想定年収 336,000円 (想定月収: 28,000円 )
現行利回り - 現行年間年収 336,000円
住戸数 -
間取り 1K
専有面積 17.42㎡ /5.26坪 ~ 17.42㎡ /5.26坪 バルコニー面積 -
その他面積 - 駐車場 -
管理費 月額5,400円 修繕積立金 月額2,090円
現況 賃貸中
仲介手数料 123,200円
利用制限 ペット:不可、楽器:不可
設備 エレベーター、駐車場(近隣含む)
取引態様 仲介
備考 -
取り扱い会社

有限会社 グリーン土地

新潟県長岡市本町3-1-9 アーバンヒルズ長岡1F

情報登録日 2025/03/11 次回更新予定日 2025/12/03
取引条件有効期限 2025/04/30
  • レクセル長岡
    有限会社 グリーン土地
  • この物件を問い合わせる/無料
  • TEL: 0258-32-1222 0258-32-1222

この物件の地図・周辺情報・行政情報

この物件の周辺情報・行政情報を詳しく見る
【周辺情報】
物件の近くにあるコンビニや銀行・学校など、アイコン付のマップで詳しく表示できます!
【行政情報】
水道料や下水道料・ガス料金など、暮らしに関係のある情報を表示しています。
セブン-イレブン 長岡表町店(コンビニ)まで90m
ウオロク 長岡店(スーパー)まで780m
長岡郵便局(郵便局)までm

※カメラのアイコンがある場合は、マウスをポイントするとその施設の画像がご覧いただけます。


担当取扱い店舗情報

取扱い店舗画像
有限会社 グリーン土地
TEL: 0258-32-1222
所在地: 新潟県長岡市本町3-1-9 アーバンヒルズ長岡1F
交通: 長岡駅
営業時間: 9:00~17:00/定休日:日・祝・祭日
免許番号: 新潟県知事(10)3038号
所属団体名: 新潟県宅地建物取引協会 長岡支部
取引態様: 仲介
ホームページ: https://www.greentoti.com