| 物件コード | 00071-200138 | ||
|---|---|---|---|
| 物件名 | レクセル長岡 | ||
| 交通 | 駅:上越新幹線 長岡駅から徒歩10分 | ||
| 物件所在地 | 新潟県長岡市本町2-2-16 | ||
| 物件種別 | 投資物件・その他 | ||
| 物件区分 | マンション(区分所有) | ||
| 構造 | 鉄骨鉄筋コン | 階建 | 地上12階建 |
| 建ぺい率/容積率 | - | ||
| 建物面積 | - | ||
| 土地面積 | - | ||
| 築年月 | 1993年4月(築32年) | ||
| 入居時期 | 相談 | ||
| 用途地域 | 商業地域 | 地目 | - |
| 都市計画 | 市街化区域 | 学校区 | 表町小学校(470m)・東中学校(1,097m) |
| 形状 | - | 道路 | - |
| 私道 | - | ||
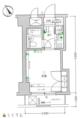
| 所在階/階数 | 2階/12階 | 号室 | 202号室 |
|---|---|---|---|
| 販売価格 | 2,300,000円 | 方位 | - |
| 表面利回り (満室想定時) |
14.6% | 満室想定年収 | 336,000円 (想定月収: 28,000円 ) |
| 現行利回り | - | 現行年間年収 | 336,000円 |
| 住戸数 | - | ||
| 間取り | 1K | ||
| 専有面積 | 17.42㎡ /5.26坪 ~ 17.42㎡ /5.26坪 | バルコニー面積 | - |
| その他面積 | - | 駐車場 | - |
| 管理費 | 月額5,400円 | 修繕積立金 | 月額2,090円 |
| 現況 | 賃貸中 | ||
| 仲介手数料 | 123,200円 | ||
| 利用制限 | ペット:不可、楽器:不可 | ||
| 設備 | エレベーター、駐車場(近隣含む) | ||
| 取引態様 | 仲介 | ||
| 備考 | - | ||
| 情報登録日 | 2025/03/11 | 次回更新予定日 | 2025/11/23 |
| 取引条件有効期限 | 2025/04/30 | ||
|
|
|
|
|
| TEL: | 0258-32-1222 |
|---|---|
| 所在地: | 新潟県長岡市本町3-1-9 アーバンヒルズ長岡1F |
| 交通: | 長岡駅 |
| 営業時間: | 9:00~17:00/定休日:日・祝・祭日 |
| 免許番号: | 新潟県知事(10)3038号 |
| 所属団体名: | 新潟県宅地建物取引協会 長岡支部 |
| 取引態様: | 仲介 |