新潟県長岡市千歳3丁目 中古一戸建て 5LDK 38,000,000円の物件情報

職人の技が各所に生かされ頑丈な造になっています。是非ご内覧ください。5LDK、小屋裏収納、長岡駅まで徒歩16分、スーパーまで徒歩約7分、各種コンビニ、医院も徒歩圏内にあり、生活に便利な環境が整っております。

物件名/所在地 詳細 価格
千歳3丁目売住宅
新潟県長岡市千歳3丁目
  • 土地面積
    :163.32㎡ /49.4坪
  • 建物面積
    :115.92㎡ /35.06坪
  • 間取り
    :5LDK
  • 築年月
    :2024年6月
38,000,000
  • 千歳3丁目売住宅
    有限会社 しのだ不動産
  • この物件を問い合わせる/無料
  • TEL: 0258-33-6656 0258-33-6656

物件画像

外観
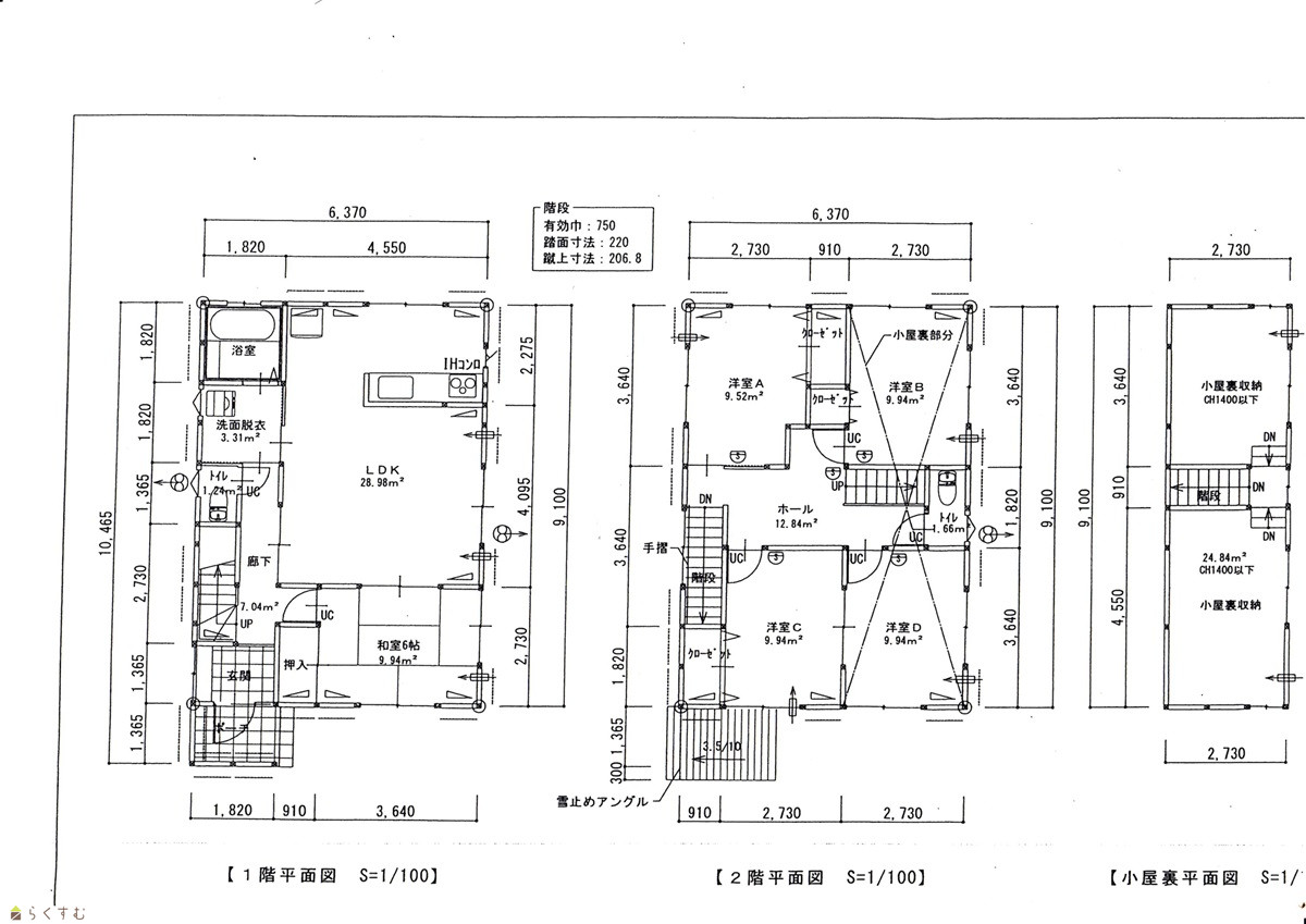
間取り
物件画像
※画像クリックで拡大表示
外観
物件画像
※画像クリックで拡大表示
間取り
詳細画像
物件画像
付近見取図


物件概要

職人の技が各所に生かされ頑丈な造になっています。是非ご内覧ください。5LDK、小屋裏収納、長岡駅まで徒歩16分、スーパーまで徒歩約7分、各種コンビニ、医院も徒歩圏内にあり、生活に便利な環境が整っております。
物件コード 00068-200103
物件名 千歳3丁目売住宅
交通 駅:上越新幹線 長岡駅から徒歩16分、バス:千手1丁目から徒歩4分
物件所在地 新潟県長岡市千歳3丁目
物件種別 中古一戸建て
構造 木造 階建 地上2階建
建ぺい率/容積率 60%/200%
建物面積 1階 57.96㎡/ 2階 57.96㎡/ 計 115.92㎡ /35.06坪
土地面積 163.32㎡ /49.4坪
築年月 2024年6月(築1年)
入居(引き渡し)時期 随時入居(引き渡し)可
用途地域 第1種住居地域 地目 宅地
都市計画 市街化区域 学校区 千手小学校(442m)・南中学校(122m)
形状 - 道路 長岡市道
私道 - その他の制限 -
  • 千歳3丁目売住宅
    有限会社 しのだ不動産
  • この物件を問い合わせる/無料
  • TEL: 0258-33-6656 0258-33-6656

物件詳細情報

所在階/階数 - 号室 -
販売価格 38,000,000円 方位 西
間取り 5LDK (和室:6畳) (洋室:6、6、6、6)
LDK17
小屋裏収納2
専有面積 - バルコニー面積 -
その他面積 - 駐車場 -
管理費 - 修繕積立金 -
現況 -
仲介手数料 1,320,000円
利用制限 -
設備 -
取引態様 一般
備考 -
取り扱い会社

有限会社 しのだ不動産

新潟県長岡市新町3丁目3番19号

情報登録日 2025/09/01 次回更新予定日 2025/11/18
取引条件有効期限 2025/11/30
  • 千歳3丁目売住宅
    有限会社 しのだ不動産
  • この物件を問い合わせる/無料
  • TEL: 0258-33-6656 0258-33-6656

この物件の地図・周辺情報・行政情報

この物件の周辺情報・行政情報を詳しく見る
【周辺情報】
物件の近くにあるコンビニや銀行・学校など、アイコン付のマップで詳しく表示できます!
【行政情報】
水道料や下水道料・ガス料金など、暮らしに関係のある情報を表示しています。

担当取扱い店舗情報

取扱い店舗画像
有限会社 しのだ不動産
TEL: 0258-33-6656
所在地: 新潟県長岡市新町3丁目3番19号
交通: 北長岡駅
営業時間: 8:30~18:00/定休日:日曜日、祝祭日
免許番号: 新潟県知事(5)第4667号
所属団体名: 新潟県宅地建物取引業協会 長岡支部
取引態様: 一般