| 職人の技が各所に生かされ頑丈な造になっています。是非ご内覧ください。5LDK、小屋裏収納、長岡駅まで徒歩16分、スーパーまで徒歩約7分、各種コンビニ、医院も徒歩圏内にあり、生活に便利な環境が整っております。 | |||
| 物件コード | 00068-200103 | ||
|---|---|---|---|
| 物件名 | 千歳3丁目売住宅 | ||
| 交通 | 駅:上越新幹線 長岡駅から徒歩16分、バス:千手1丁目から徒歩4分 | ||
| 物件所在地 | 新潟県長岡市千歳3丁目 | ||
| 物件種別 | 中古一戸建て | ||
| 構造 | 木造 | 階建 | 地上2階建 | 
| 建ぺい率/容積率 | 60%/200% | ||
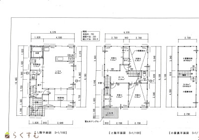
| 建物面積 | 1階 57.96㎡/ 2階 57.96㎡/ 計 115.92㎡ /35.06坪 | ||
| 土地面積 | 163.32㎡ /49.4坪 | ||
| 築年月 | 2024年6月(築1年) | ||
| 入居時期 | 随時入居(引き渡し)可 | ||
| 用途地域 | 第1種住居地域 | 地目 | 宅地 | 
| 都市計画 | 市街化区域 | 学校区 | 千手小学校(442m)・南中学校(122m) | 
| 形状 | - | 道路 | 長岡市道 | 
| 私道 | - | ||
| 所在階/階数 | - | 号室 | - | 
|---|---|---|---|
| 販売価格 | 38,000,000円 | 方位 | 西 | 
| 間取り | 
													5LDK (和室:6畳) (洋室:6、6、6、6) LDK17 小屋裏収納2  | 
					||
| 専有面積 | - | バルコニー面積 | - | 
| その他面積 | - | 駐車場 | - | 
| 管理費 | - | 修繕積立金 | - | 
| 現況 | - | ||
| 仲介手数料 | 1,320,000円 | ||
| 利用制限 | - | ||
| 設備 | - | ||
| 取引態様 | 一般 | ||
| 備考 | - | ||
| 情報登録日 | 2025/09/01 | 次回更新予定日 | 2025/11/18 | 
| 取引条件有効期限 | 2025/11/30 | ||
							 
						 | 
						
							 
						 | 
					
							 
						 | 
						
							 
						 | 
					
| TEL: | 0258-33-6656 | 
|---|---|
| 所在地: | 新潟県長岡市新町3丁目3番19号 | 
| 交通: | 北長岡駅 | 
| 営業時間: | 8:30~18:00/定休日:日曜日、祝祭日 | 
| 免許番号: | 新潟県知事(5)第4667号 | 
| 所属団体名: | 新潟県宅地建物取引業協会 長岡支部 | 
| 取引態様: | 一般 |