新潟県三条市東本成寺17番地10号 中古一戸建て 6LDK 24,800,000円の物件情報

東本成寺の閑静な住宅街の角地♪建物状態良好です

物件名/所在地 詳細 価格
◆中古戸建◆三条市東本成寺
新潟県三条市東本成寺17番地10号
  • 土地面積
    :396.95㎡ /120.07坪
  • 建物面積
    :204.2㎡ /61.77坪
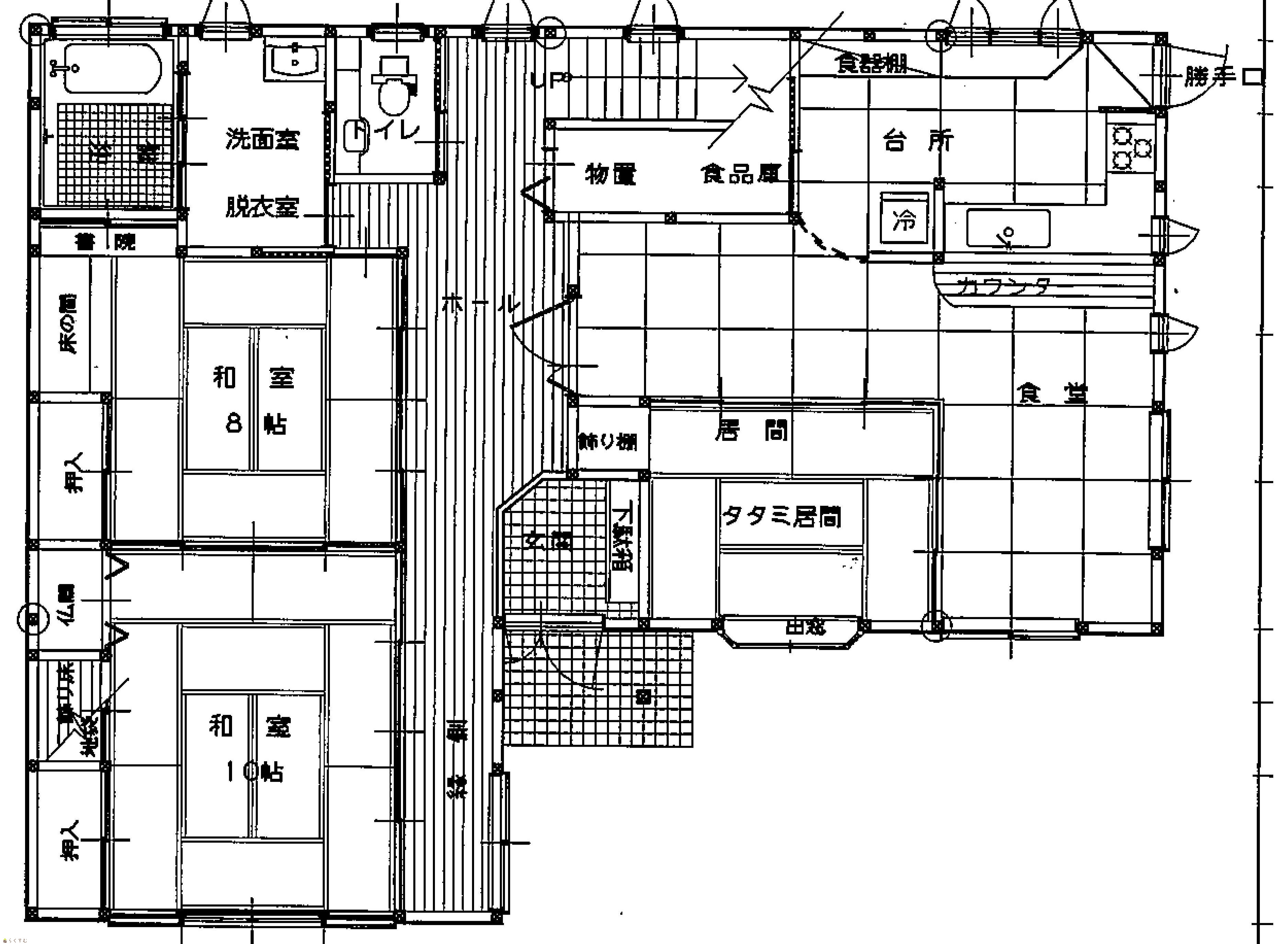
  • 間取り
    :6LDK
  • 築年月
    :2000年10月
24,800,000
  • ◆中古戸建◆三条市東本成寺
    株式会社 ユタカ不動産
  • この物件を問い合わせる/無料
  • TEL: 0256-35-5825 0256-35-5825

物件画像

外観
間取り
物件画像
※画像クリックで拡大表示
外観
物件画像
※画像クリックで拡大表示
間取り
詳細画像
物件画像
リビング
物件画像
洋室
物件画像
和室
物件画像
キッチン
物件画像
寝室
物件画像
玄関
物件画像
トイレ
物件画像
バスルーム
物件画像
収納
物件画像
洗面所
物件画像
外観
物件画像
駐車場
物件画像
サンルーム
物件画像
シャワールーム
物件画像
和室
物件画像
間取り


物件概要

前面道路融雪有! 駐車場計4台分有!
物件コード 00052-200284
物件名 ◆中古戸建◆三条市東本成寺
交通 駅:信越線 三条駅から徒歩19分、バス:川瀬神経内科クリニックから徒歩3分
物件所在地 新潟県三条市東本成寺17番地10号
物件種別 中古一戸建て
構造 木造 階建 地上2階建
建ぺい率/容積率 60%/200%
建物面積 1階 122.52㎡/ 2階 81.68㎡/ 計 204.2㎡ /61.77坪
土地面積 396.95㎡ /120.07坪
築年月 2000年10月(築25年)
入居(引き渡し)時期 相談
用途地域 第2種中高層住居専用地域 地目 宅地  (現状:宅地)
都市計画 非線引き都市計画区域 学校区 嵐南小学校(1,042m)・第一中学校(952m)
形状 - 道路 南側:幅員7.3m 東側:幅員5.1m
私道 - その他の制限 -
  • ◆中古戸建◆三条市東本成寺
    株式会社 ユタカ不動産
  • この物件を問い合わせる/無料
  • TEL: 0256-35-5825 0256-35-5825

物件詳細情報

所在階/階数 - 号室 -
販売価格 24,800,000円 方位 -
間取り 6LDK
専有面積 - バルコニー面積 -
その他面積 - 駐車場 -
管理費 - 修繕積立金 -
現況 空家
仲介手数料 884,400円
利用制限 -
設備 角地、閑静な住宅街、スーパー近く、新築時図面あり、修繕記録あり、駐車3台以上可能、南向き、システムキッチン、カウンターキッチン、IHクッキングヒーター、食器洗浄乾燥機、2口コンロ、追いだき機能付き、バス1坪以上、温水洗浄便座、トイレ2か所以上、シャワー付き洗面台、都市ガス、上水道、浄化槽、ウォークインクローゼット、全居室収納あり、シューズBOX
取引態様 専任
備考 ・現況渡し(家財は売主で撤去します)
・水道管は連合管です。
・居住誘導区域、都市機能誘導区域
・車庫3台分内、左側のシャッターのみ自動です。他屋外駐車場1台分有。
(シャッター間口3.6m、2.7m、3.6mの並びです)
・引渡時期は要相談ください。
取り扱い会社

株式会社 ユタカ不動産

新潟県三条市旭町1丁目1-19-3ユタカビル

情報登録日 2025/10/18 次回更新予定日 2025/11/18
取引条件有効期限 2026/11/01
  • ◆中古戸建◆三条市東本成寺
    株式会社 ユタカ不動産
  • この物件を問い合わせる/無料
  • TEL: 0256-35-5825 0256-35-5825

この物件の地図・周辺情報・行政情報

この物件の周辺情報・行政情報を詳しく見る
【周辺情報】
物件の近くにあるコンビニや銀行・学校など、アイコン付のマップで詳しく表示できます!
【行政情報】
水道料や下水道料・ガス料金など、暮らしに関係のある情報を表示しています。

担当取扱い店舗情報

取扱い店舗画像
株式会社 ユタカ不動産
TEL: 0256-35-5825
所在地: 新潟県三条市旭町1丁目1-19-3ユタカビル
交通: 東三条駅
営業時間: 9:00~18:00/定休日:火曜・祭日
免許番号: 新潟見知事(9)第3203号
所属団体名: 新潟県宅地建物取引協会 三条支部
取引態様: 専任
ホームページ: http://www.yutakafudousan.com