| 前面道路融雪有! 駐車場計4台分有! | |||
| 物件コード | 00052-200284 | ||
|---|---|---|---|
| 物件名 | ◆中古戸建◆三条市東本成寺 | ||
| 交通 | 駅:信越線 三条駅から徒歩19分、バス:川瀬神経内科クリニックから徒歩3分 | ||
| 物件所在地 | 新潟県三条市東本成寺17番地10号 | ||
| 物件種別 | 中古一戸建て | ||
| 構造 | 木造 | 階建 | 地上2階建 |
| 建ぺい率/容積率 | 60%/200% | ||
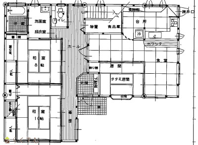
| 建物面積 | 1階 122.52㎡/ 2階 81.68㎡/ 計 204.2㎡ /61.77坪 | ||
| 土地面積 | 396.95㎡ /120.07坪 | ||
| 築年月 | 2000年10月(築25年) | ||
| 入居時期 | 相談 | ||
| 用途地域 | 第2種中高層住居専用地域 | 地目 | 宅地 (現状:宅地) |
| 都市計画 | 非線引き都市計画区域 | 学校区 | 嵐南小学校(1,042m)・第一中学校(952m) |
| 形状 | - | 道路 | 南側:幅員7.3m 東側:幅員5.1m |
| 私道 | - | ||
| 所在階/階数 | - | 号室 | - |
|---|---|---|---|
| 販売価格 | 24,800,000円 | 方位 | - |
| 間取り | 6LDK | ||
| 専有面積 | - | バルコニー面積 | - |
| その他面積 | - | 駐車場 | - |
| 管理費 | - | 修繕積立金 | - |
| 現況 | 空家 | ||
| 仲介手数料 | 884,400円 | ||
| 利用制限 | - | ||
| 設備 | 角地、閑静な住宅街、スーパー近く、新築時図面あり、修繕記録あり、駐車3台以上可能、南向き、システムキッチン、カウンターキッチン、IHクッキングヒーター、食器洗浄乾燥機、2口コンロ、追いだき機能付き、バス1坪以上、温水洗浄便座、トイレ2か所以上、シャワー付き洗面台、都市ガス、上水道、浄化槽、ウォークインクローゼット、全居室収納あり、シューズBOX | ||
| 取引態様 | 専任 | ||
| 備考 | ・現況渡し(家財は売主で撤去します) ・水道管は連合管です。 ・居住誘導区域、都市機能誘導区域 ・車庫3台分内、左側のシャッターのみ自動です。他屋外駐車場1台分有。 (シャッター間口3.6m、2.7m、3.6mの並びです) ・引渡時期は要相談ください。 |
||
| 情報登録日 | 2025/10/18 | 次回更新予定日 | 2025/11/17 |
| 取引条件有効期限 | 2026/11/01 | ||
|
|
|
|
| TEL: | 0256-35-5825 |
|---|---|
| 所在地: | 新潟県三条市旭町1丁目1-19-3ユタカビル |
| 交通: | 東三条駅 |
| 営業時間: | 9:00~18:00/定休日:火曜・祭日 |
| 免許番号: | 新潟見知事(9)第3203号 |
| 所属団体名: | 新潟県宅地建物取引協会 三条支部 |
| 取引態様: | 専任 |