新潟県長岡市十日町1228番4 中古一戸建て 4LDK 23,000,000円の物件情報

築浅中古住宅♪小学校隣で通学も楽々♪敷地も広々、カーポート2台付

物件名/所在地 詳細 価格
【中古住宅】長岡市十日町 中古住宅
新潟県長岡市十日町1228番4
  • 土地面積
    :251.84㎡ /76.18坪
  • 建物面積
    :115.66㎡ /34.98坪
  • 間取り
    :4LDK
  • 築年月
    :2018年1月
23,000,000
  • 【中古住宅】長岡市十日町 中古住宅
    有限会社 ABCホーム
  • この物件を問い合わせる/無料
  • TEL: 0258-35-6682 0258-35-6682

物件画像

外観
間取り
物件画像
※画像クリックで拡大表示
外観
物件画像
※画像クリックで拡大表示
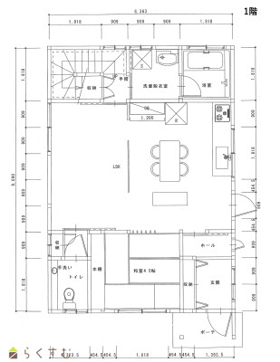
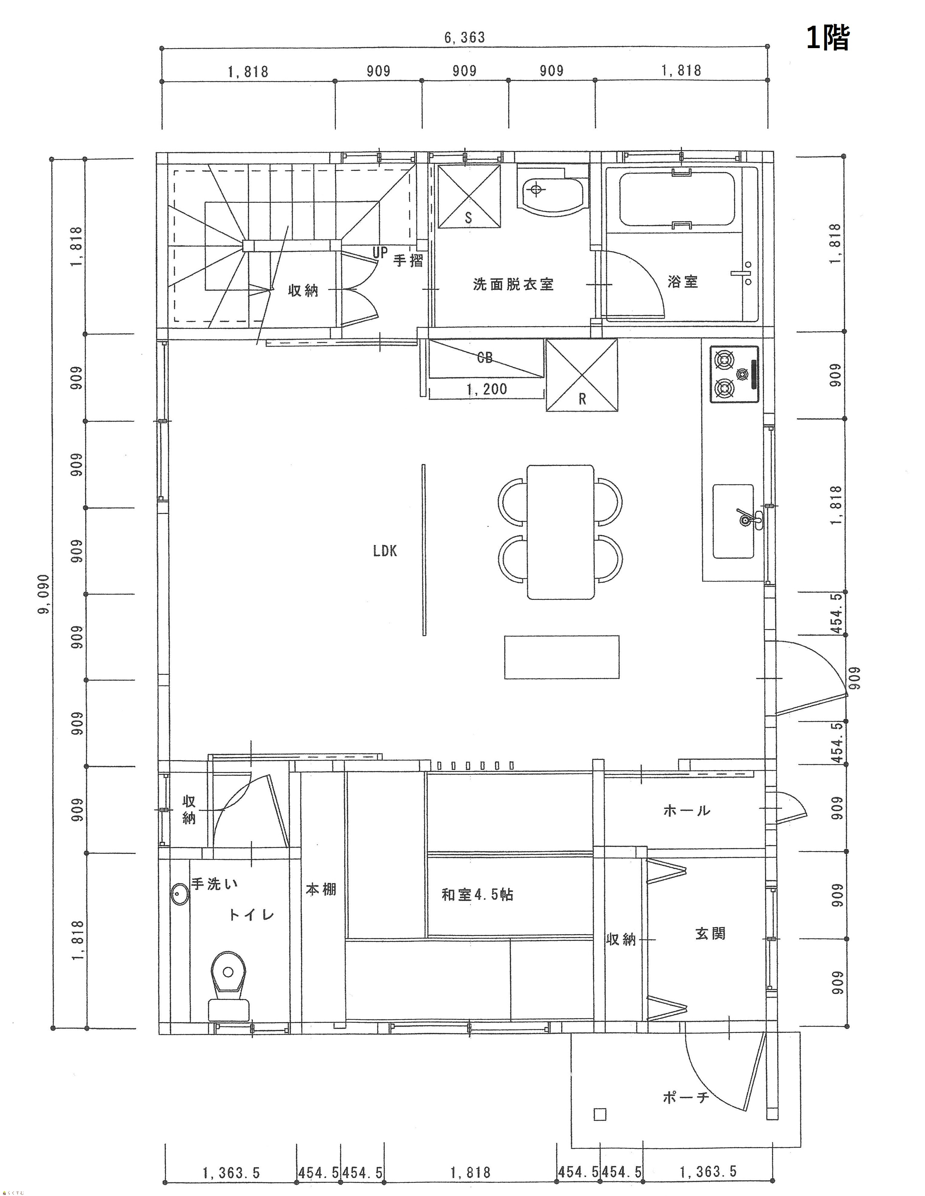
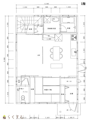
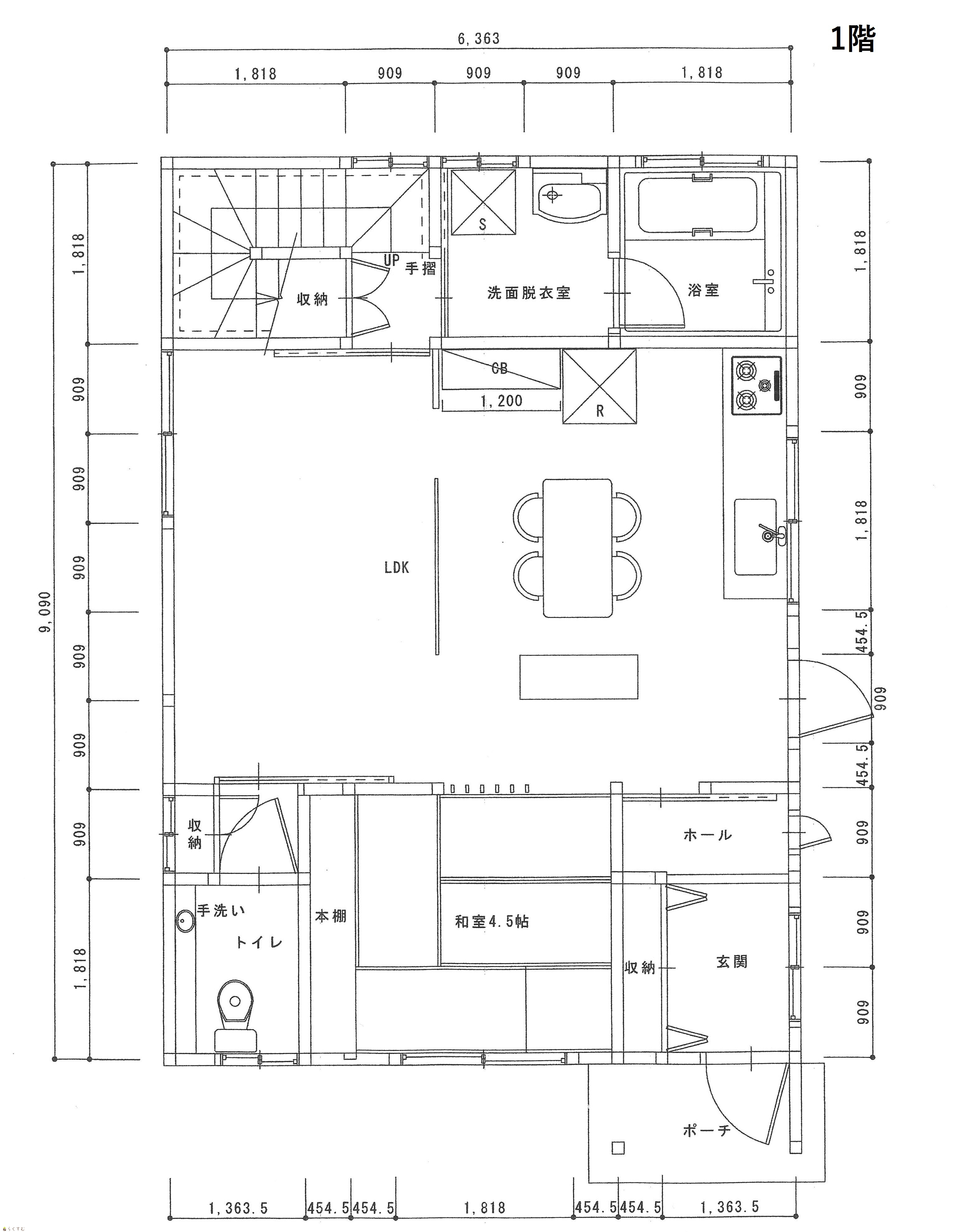
1階 平面図
詳細画像
物件画像
外観
物件画像
リビング
物件画像
トイレ2階
物件画像
トイレ1階
物件画像
風呂
物件画像
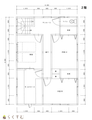
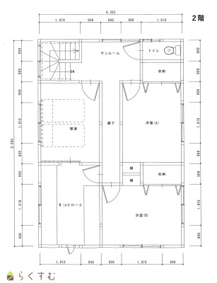
2階平面図
物件画像
敷地配置図
物件画像
印刷用地図


物件概要

敷地の一部はアンテナ基地局として借地しております。※賃料については調査中
物件コード 00017-200357
物件名 【中古住宅】長岡市十日町 中古住宅
交通 駅:上越線 越後滝谷駅から徒歩29分、バス:十日町局前から徒歩3分
物件所在地 新潟県長岡市十日町1228番4
物件種別 中古一戸建て
構造 木造 階建 地上2階建
建ぺい率/容積率 70%/200%
建物面積 1階 57.83㎡/ 2階 57.83㎡/ 計 115.66㎡ /34.98坪
土地面積 251.84㎡ /76.18坪
築年月 2018年1月(築8年)
入居(引き渡し)時期 相談
用途地域 用途の指定のない地域 地目 宅地  (現状:宅地)
都市計画 市街化調整区域 学校区 十日町小学校(54m)・岡南中学校(1,250m)
形状 間口 11.9m × 奥行 22.9m 道路 北側:長岡市道幅員約6m/南側:長岡市道幅員約5.1m
私道 - その他の制限 -
  • 【中古住宅】長岡市十日町 中古住宅
    有限会社 ABCホーム
  • この物件を問い合わせる/無料
  • TEL: 0258-35-6682 0258-35-6682

物件詳細情報

所在階/階数 - 号室 -
販売価格 23,000,000円 方位
間取り 4LDK (和室:4.5畳) (洋室:6、6、6)
LDK17.5
3帖:サンルーム
専有面積 - バルコニー面積 -
その他面積 9.91㎡ /2.99坪  ウォークインクローゼット 駐車場 -
管理費 - 修繕積立金 -
現況 空家
仲介手数料 825,000円
利用制限 -
設備 日当り良好、閑静な住宅街、新築時図面あり、建物確認・完了検査済証あり、LDK15帖以上、築10年以内、駐車3台以上可能、南向き、TVインターホン、複層ガラス、システムキッチン、IHクッキングヒーター、食器洗浄乾燥機、3口コンロ、追いだき機能付き、バス1坪以上、温水洗浄便座、トイレ2か所以上、シャワー付き洗面台、エアコンあり、24時間換気システム、オール電化、上水道、下水道、ウォークインクローゼット、全居室収納あり、シューズBOX
取引態様 一般
備考 ●内覧希望の方は家財搬出後となりますので要相談●水道管は隣地の水道管を共用しているため、お住まいになる前に水道管引込付替え工事が必要となります●現況渡し●契約不適合責任免責
取り扱い会社

有限会社 ABCホーム

新潟県長岡市曙1-1-7

情報登録日 2026/02/12 次回更新予定日 2026/05/22
取引条件有効期限 2026/03/31
  • 【中古住宅】長岡市十日町 中古住宅
    有限会社 ABCホーム
  • この物件を問い合わせる/無料
  • TEL: 0258-35-6682 0258-35-6682

この物件の地図・周辺情報・行政情報

この物件の周辺情報・行政情報を詳しく見る
【周辺情報】
物件の近くにあるコンビニや銀行・学校など、アイコン付のマップで詳しく表示できます!
【行政情報】
水道料や下水道料・ガス料金など、暮らしに関係のある情報を表示しています。

担当取扱い店舗情報

取扱い店舗画像
有限会社 ABCホーム
TEL: 0258-35-6682
所在地: 新潟県長岡市曙1-1-7
交通:
営業時間: 9:00~18:00/定休日:
免許番号: 新潟県知事(4)4781号
所属団体名: 新潟県宅地建物取引業協会 長岡支部
取引態様: 一般
ホームページ: http://abc-home.d.dooo.jp/