| 敷地の一部はアンテナ基地局として借地しております。※賃料については調査中 | |||
| 物件コード | 00017-200357 | ||
|---|---|---|---|
| 物件名 | 【中古住宅】長岡市十日町 中古住宅 | ||
| 交通 | 駅:上越線 越後滝谷駅から徒歩29分、バス:十日町局前から徒歩3分 | ||
| 物件所在地 | 新潟県長岡市十日町1228番4 | ||
| 物件種別 | 中古一戸建て | ||
| 構造 | 木造 | 階建 | 地上2階建 |
| 建ぺい率/容積率 | 70%/200% | ||
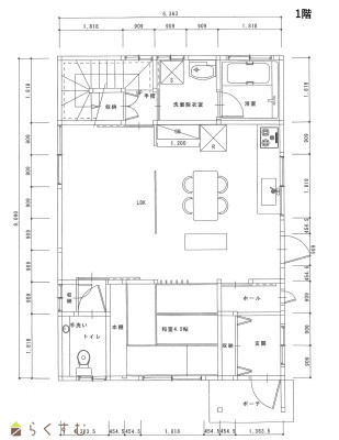
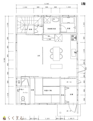
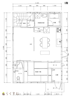
| 建物面積 | 1階 57.83㎡/ 2階 57.83㎡/ 計 115.66㎡ /34.98坪 | ||
| 土地面積 | 251.84㎡ /76.18坪 | ||
| 築年月 | 2018年1月(築8年) | ||
| 入居時期 | 相談 | ||
| 用途地域 | 用途の指定のない地域 | 地目 | 宅地 (現状:宅地) |
| 都市計画 | 市街化調整区域 | 学校区 | 十日町小学校(54m)・岡南中学校(1,250m) |
| 形状 | 間口 11.9m × 奥行 22.9m | 道路 | 北側:長岡市道幅員約6m/南側:長岡市道幅員約5.1m |
| 私道 | - | ||
| 所在階/階数 | - | 号室 | - |
|---|---|---|---|
| 販売価格 | 23,000,000円 | 方位 | 北 |
| 間取り |
4LDK (和室:4.5畳) (洋室:6、6、6) LDK17.5 3帖:サンルーム |
||
| 専有面積 | - | バルコニー面積 | - |
| その他面積 | 9.91㎡ /2.99坪 ウォークインクローゼット | 駐車場 | - |
| 管理費 | - | 修繕積立金 | - |
| 現況 | 空家 | ||
| 仲介手数料 | 825,000円 | ||
| 利用制限 | - | ||
| 設備 | 日当り良好、閑静な住宅街、新築時図面あり、建物確認・完了検査済証あり、LDK15帖以上、築10年以内、駐車3台以上可能、南向き、TVインターホン、複層ガラス、システムキッチン、IHクッキングヒーター、食器洗浄乾燥機、3口コンロ、追いだき機能付き、バス1坪以上、温水洗浄便座、トイレ2か所以上、シャワー付き洗面台、エアコンあり、24時間換気システム、オール電化、上水道、下水道、ウォークインクローゼット、全居室収納あり、シューズBOX | ||
| 取引態様 | 一般 | ||
| 備考 | ●内覧希望の方は家財搬出後となりますので要相談●水道管は隣地の水道管を共用しているため、お住まいになる前に水道管引込付替え工事が必要となります●現況渡し●契約不適合責任免責 | ||
| 情報登録日 | 2026/02/12 | 次回更新予定日 | 2026/05/22 |
| 取引条件有効期限 | 2026/03/31 | ||
|
|
|
|
|
|
| TEL: | 0258-35-6682 |
|---|---|
| 所在地: | 新潟県長岡市曙1-1-7 |
| 交通: | |
| 営業時間: | 9:00~18:00/定休日: |
| 免許番号: | 新潟県知事(4)4781号 |
| 所属団体名: | 新潟県宅地建物取引業協会 長岡支部 |
| 取引態様: | 一般 |