新潟県燕市大曲字居付2628番1 新築一戸建て 3LDK 23,900,000円の物件情報

スーパー・コンビニなど商業施設至近◆保育園・小中学校も徒歩圏内◆WIC付♪

物件名/所在地 詳細 価格
燕市大曲 建売住宅 1号棟
新潟県燕市大曲字居付2628番1
  • 土地面積
    :190.51㎡ /57.62坪
  • 建物面積
    :86.75㎡ /26.24坪
  • 間取り
    :3LDK
  • 築年月
    :2026年4月
23,900,000
  • 燕市大曲 建売住宅 1号棟
    有限会社 一代工務店
  • この物件を問い合わせる/無料
  • TEL: 0258-34-2221 0258-34-2221

物件画像

外観
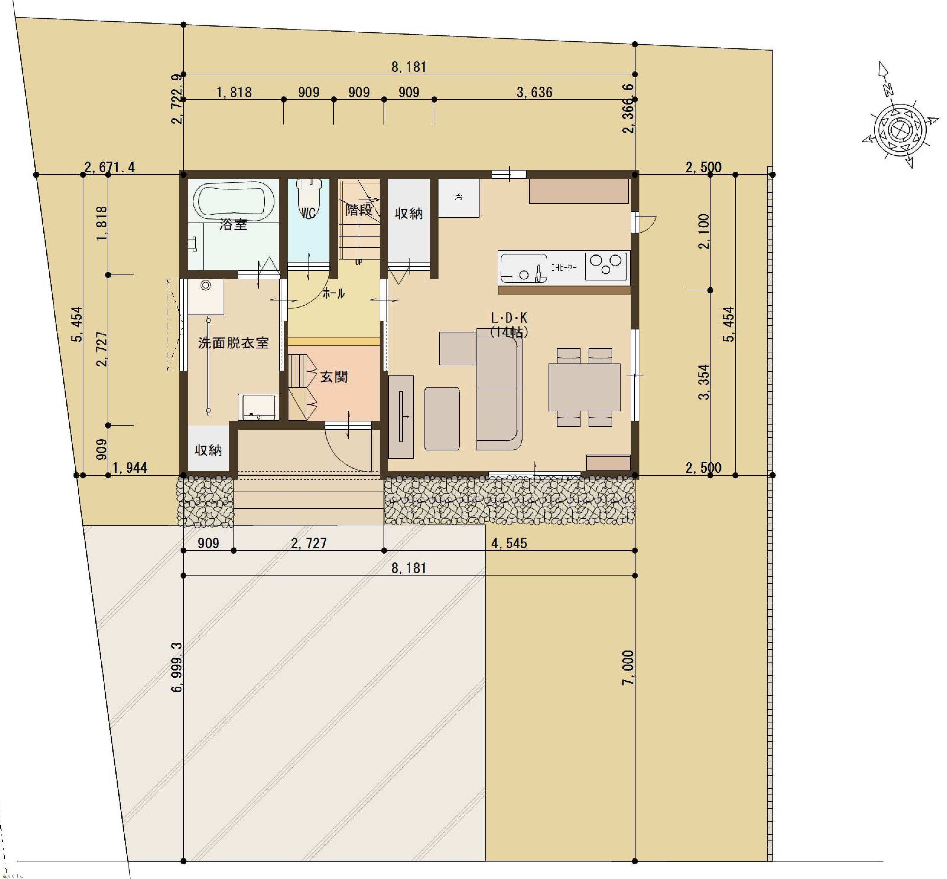
間取り
物件画像
※画像クリックで拡大表示
※画像はイメージとなり実物と異なる場合があります。
物件画像
※画像クリックで拡大表示
地型付間取り図
詳細画像
物件画像
1階
物件画像
2階
物件画像
現在建築中です。
物件画像
前面道路は消雪パイプがありますので、冬も安心です。
物件画像
印刷用地図


物件概要

◆スーパー・コンビニなど商業施設が近くて、お買物に便利です。 ◆保育園・小中学校も徒歩圏内でお子様の通学も安心、子育て世代にも優しい立地環境! ◆前面道路は消雪パイプがありますので、冬も安心です。 ◆2階8帖の洋室にはウォークインクローゼット付きです。 ◆1階2階にトイレ完備♪全室2面採光。LDKは3面採光です♪
物件コード 00007-200758
物件名 燕市大曲 建売住宅 1号棟
交通 駅:弥彦線 燕駅から徒歩32分、バス:大曲から徒歩2分
物件所在地 新潟県燕市大曲字居付2628番1
物件種別 新築一戸建て
構造 木造 階建 地上2階建
建ぺい率/容積率 80%/200%
建物面積 計 86.75㎡ /26.24坪
土地面積 190.51㎡ /57.62坪
築年月 2026年4月完成予定
入居(引き渡し)時期 相談
用途地域 無指定 地目 宅地
都市計画 非線引き都市計画区域 学校区 大関小学校(535m)・小池中学校(828m)
形状 - 道路 南側:市道 6.8m~7.2m、西側:市道 4.4m
私道 - その他の制限 -
  • 燕市大曲 建売住宅 1号棟
    有限会社 一代工務店
  • この物件を問い合わせる/無料
  • TEL: 0258-34-2221 0258-34-2221

物件詳細情報

所在階/階数 - 号室 -
販売価格 23,900,000円 方位
間取り 3LDK (洋室:8、6、6)
LDK14
建築確認番号:NK第25長00287号
専有面積 - バルコニー面積 -
その他面積 - 駐車場 -
管理費 - 修繕積立金 -
現況 指定なし
仲介手数料 なし
利用制限 -
設備 角地、日当り良好、スーパー近く、BELS/省エネ基準適合認定建物、全室フローリング、駐車場2台以上、南向き、TVインターホン、複層ガラス、ディンプルキー、システムキッチン、IHクッキングヒーター、3口コンロ、追いだき機能付き、バス1坪以上、温水洗浄便座、シャワー付き洗面台、エアコン、24時間換気システム、省エネ給湯、高気密高断熱住宅、都市ガス、上水道、下水道、電気、全居室収納あり、床下収納、シューズBOX、照明器具付き
取引態様 売主
備考 ※物件掲載内容と現況に相違がある場合は現況を優先と致します。
詳細はお気軽にお問い合わせください。
担当:須加
携帯:090-2644-9734
取り扱い会社

有限会社 一代工務店

新潟県長岡市信濃2-5-36

情報登録日 2025/12/02 次回更新予定日 2025/12/31
取引条件有効期限 2026/02/01
  • 燕市大曲 建売住宅 1号棟
    有限会社 一代工務店
  • この物件を問い合わせる/無料
  • TEL: 0258-34-2221 0258-34-2221

この物件の地図・周辺情報・行政情報

この物件の周辺情報・行政情報を詳しく見る
【周辺情報】
物件の近くにあるコンビニや銀行・学校など、アイコン付のマップで詳しく表示できます!
【行政情報】
水道料や下水道料・ガス料金など、暮らしに関係のある情報を表示しています。

担当取扱い店舗情報

取扱い店舗画像
有限会社 一代工務店
TEL: 0258-34-2221
所在地: 新潟県長岡市信濃2-5-36
交通: 長岡駅
営業時間: 9:00~18:00/定休日:
免許番号: 新潟県知事(12)2196号
所属団体名: 新潟県宅地建物取引業協会 長岡支部
取引態様: 売主
ホームページ: http://www.ichidai-k.co.jp/