| ◆スーパー・コンビニなど商業施設が近くて、お買物に便利です。 ◆保育園・小中学校も徒歩圏内でお子様の通学も安心、子育て世代にも優しい立地環境! ◆前面道路は消雪パイプがありますので、冬も安心です。 ◆2階8帖の洋室にはウォークインクローゼット付きです。 ◆1階2階にトイレ完備♪全室2面採光。LDKは3面採光です♪ | |||
| 物件コード | 00007-200758 | ||
|---|---|---|---|
| 物件名 | 燕市大曲 建売住宅 1号棟 | ||
| 交通 | 駅:弥彦線 燕駅から徒歩32分、バス:大曲から徒歩2分 | ||
| 物件所在地 | 新潟県燕市大曲字居付2628番1 | ||
| 物件種別 | 新築一戸建て | ||
| 構造 | 木造 | 階建 | 地上2階建 |
| 建ぺい率/容積率 | 80%/200% | ||
| 建物面積 | 計 86.75㎡ /26.24坪 | ||
| 土地面積 | 190.51㎡ /57.62坪 | ||
| 築年月 | 2026年4月完成予定 | ||
| 入居時期 | 相談 | ||
| 用途地域 | 無指定 | 地目 | 宅地 |
| 都市計画 | 非線引き都市計画区域 | 学校区 | 大関小学校(535m)・小池中学校(828m) |
| 形状 | - | 道路 | 南側:市道 6.8m~7.2m、西側:市道 4.4m |
| 私道 | - | ||
| 所在階/階数 | - | 号室 | - |
|---|---|---|---|
| 販売価格 | 23,900,000円 | 方位 | 南 |
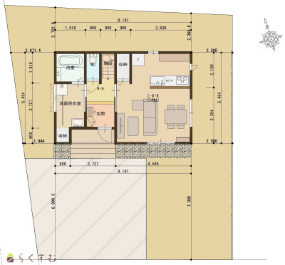
| 間取り |
3LDK (洋室:8、6、6) LDK14 建築確認番号:NK第25長00287号 |
||
| 専有面積 | - | バルコニー面積 | - |
| その他面積 | - | 駐車場 | - |
| 管理費 | - | 修繕積立金 | - |
| 現況 | 指定なし | ||
| 仲介手数料 | なし | ||
| 利用制限 | - | ||
| 設備 | 角地、日当り良好、スーパー近く、BELS/省エネ基準適合認定建物、全室フローリング、駐車場2台以上、南向き、TVインターホン、複層ガラス、ディンプルキー、システムキッチン、IHクッキングヒーター、3口コンロ、追いだき機能付き、バス1坪以上、温水洗浄便座、シャワー付き洗面台、エアコン、24時間換気システム、省エネ給湯、高気密高断熱住宅、都市ガス、上水道、下水道、電気、全居室収納あり、床下収納、シューズBOX、照明器具付き | ||
| 取引態様 | 売主 | ||
| 備考 | ※物件掲載内容と現況に相違がある場合は現況を優先と致します。 詳細はお気軽にお問い合わせください。 担当:須加 携帯:090-2644-9734 |
||
| 情報登録日 | 2025/12/02 | 次回更新予定日 | 2025/12/31 |
| 取引条件有効期限 | 2026/02/01 | ||
|
|
|
|
|
| TEL: | 0258-34-2221 |
|---|---|
| 所在地: | 新潟県長岡市信濃2-5-36 |
| 交通: | 長岡駅 |
| 営業時間: | 9:00~18:00/定休日: |
| 免許番号: | 新潟県知事(12)2196号 |
| 所属団体名: | 新潟県宅地建物取引業協会 長岡支部 |
| 取引態様: | 売主 |