物件掲載企業数:297|賃貸物件:3,611件|売買物件:3,294件|今週の登録物件:270
閲覧中のブラウザ(インターネットエクスプローラー)は非推奨ブラウザです。
物件が正しく表示されなかったり、正しく検索されない場合があります。最新のブラウザ(Google Chrome・Edgeなど)にてご利用お願いいたします。
  

新潟県妙高市桶海1017-2 中古マンション 1LDK 8,520,000円の物件情報

11階のお部屋です!アパホテル&リゾート上越妙高の大浴殿が利用できます。

物件名/所在地 詳細 価格
妙高パインバレーロジュマン
  号室
新潟県妙高市桶海1017-2
  • 専有面積
    :43.9㎡ /13.27坪
  • 間取り
    :1LDK
  • 築年月
    :1991年6月
8,520,000
  • 妙高パインバレーロジュマン
    楽栄不動産株式会社
  • この物件を問い合わせる/無料
  • TEL: 0255-72-0003

物件画像

外観 間取り
物件画像
※画像クリックで拡大表示
外観
物件画像
※画像クリックで拡大表示
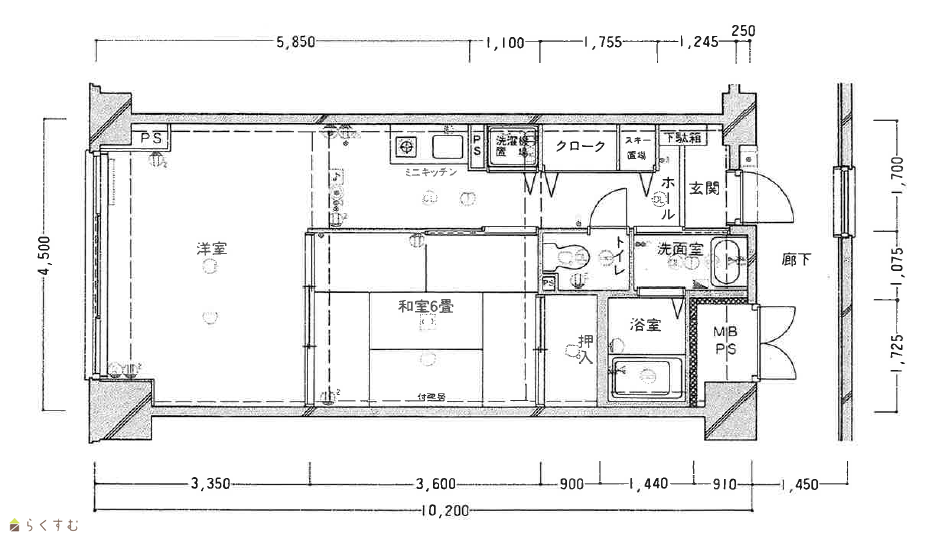
間取り
詳細画像


物件概要

会社の保養所にも最適です。
物件コード 00265-200183
物件名 妙高パインバレーロジュマン
交通 駅:妙高はねうまライン 関山駅から徒歩77分、バス:坂口新田から徒歩74分
物件所在地 新潟県妙高市桶海1017-2
物件種別 中古マンション
構造 鉄骨鉄筋コン 階建 地上14階地下1階建
建ぺい率/容積率 70%/200%
建物面積 計 10,306.56㎡ /3,117.73坪
土地面積 1,000.37㎡ /302.61坪
築年月 1991年6月(築34年)
入居(引き渡し)時期 相談
用途地域 無指定 地目 宅地
都市計画 非線引き都市計画区域 学校区 妙高小学校(4,615m)・妙高中学校(4,238m)
形状 - 道路 妙高市道
私道 - その他の制限 -
  • 妙高パインバレーロジュマン
    楽栄不動産株式会社
  • この物件を問い合わせる/無料
  • TEL: 0255-72-0003

物件詳細情報

所在階/階数 11階/14階 号室   号室
販売価格 8,520,000円 方位 -
間取り 1LDK (和室:6.0畳)
LDK16.8
専有面積 43.9㎡ /13.27坪 バルコニー面積 -
その他面積 - 駐車場 -
管理費 - 修繕積立金 -
現況 居住中
仲介手数料 347,160円
組合費他 2,311円
冷暖房基本料他 6,424円
利用制限 ペット:不可、楽器:不可
設備 10階建て以上、2階以上、洗濯機置き場、エレベーター、和室あり、管理人常駐(日中)、IHクッキングヒーター、温水洗浄便座、エアコン、公営水道、下水道、別荘
取引態様 一般
備考 フローリングとトイレはリフォーム済みです!シーズン使いに最適な1LDKのマンションです。部屋の窓からは妙高山を眺めることが出来、周辺には赤倉スキー場や苗名滝、上越海水浴場や長野の善光寺へも車で1時間で行くことができます。アパホテルでは、焚火や花火イベントも開催しています。夜は星空を眺め、時期や天候によっては、ホタルも見れるようです。
取り扱い会社

楽栄不動産株式会社

新潟県妙高市雪森645-1

情報登録日 2025/11/28 次回更新予定日 2025/12/22
取引条件有効期限 2025/12/31
  • 妙高パインバレーロジュマン
    楽栄不動産株式会社
  • この物件を問い合わせる/無料
  • TEL: 0255-72-0003

この物件の地図・周辺情報・行政情報

この物件の周辺情報・行政情報を詳しく見る
【周辺情報】
物件の近くにあるコンビニや銀行・学校など、アイコン付のマップで詳しく表示できます!
【行政情報】
水道料や下水道料・ガス料金など、暮らしに関係のある情報を表示しています。

担当取扱い店舗情報

取扱い店舗画像
楽栄不動産株式会社
TEL: 0255-72-0003
所在地: 新潟県妙高市雪森645-1
交通: 妙高はねうまライン北井駅
営業時間: 8時~17時/定休日:土・日・祝日、その他夏季・年末年始
免許番号: 新潟県知事(12)第2463号 この会社の情報を詳しく見る
所属団体名: 公社 新潟県宅地建物取引協会 上越支部
取引態様: 一般
ホームページ: https://rakuei.info/