| 会社の保養所にも最適です。 | |||
| 物件コード | 00265-200183 | ||
|---|---|---|---|
| 物件名 | 妙高パインバレーロジュマン | ||
| 交通 | 駅:妙高はねうまライン 関山駅から徒歩77分、バス:坂口新田から徒歩74分 | ||
| 物件所在地 | 新潟県妙高市桶海1017-2 | ||
| 物件種別 | 中古マンション | ||
| 構造 | 鉄骨鉄筋コン | 階建 | 地上14階地下1階建 |
| 建ぺい率/容積率 | 70%/200% | ||
| 建物面積 | 計 10,306.56㎡ /3,117.73坪 | ||
| 土地面積 | 1,000.37㎡ /302.61坪 | ||
| 築年月 | 1991年6月(築34年) | ||
| 入居時期 | 相談 | ||
| 用途地域 | 無指定 | 地目 | 宅地 |
| 都市計画 | 非線引き都市計画区域 | 学校区 | 妙高小学校(4,615m)・妙高中学校(4,238m) |
| 形状 | - | 道路 | 妙高市道 |
| 私道 | - | ||
| 所在階/階数 | 11階/14階 | 号室 | 号室 |
|---|---|---|---|
| 販売価格 | 8,520,000円 | 方位 | - |
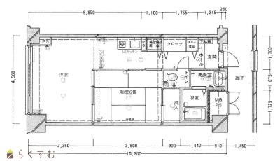
| 間取り |
1LDK (和室:6.0畳) LDK16.8 |
||
| 専有面積 | 43.9㎡ /13.27坪 | バルコニー面積 | - |
| その他面積 | - | 駐車場 | - |
| 管理費 | - | 修繕積立金 | - |
| 現況 | 居住中 | ||
| 仲介手数料 | 347,160円 | ||
| 利用制限 | ペット:不可、楽器:不可 | ||
| 設備 | 10階建て以上、2階以上、洗濯機置き場、エレベーター、和室あり、管理人常駐(日中)、IHクッキングヒーター、温水洗浄便座、エアコン、公営水道、下水道、別荘 | ||
| 取引態様 | 一般 | ||
| 備考 | フローリングとトイレはリフォーム済みです!シーズン使いに最適な1LDKのマンションです。部屋の窓からは妙高山を眺めることが出来、周辺には赤倉スキー場や苗名滝、上越海水浴場や長野の善光寺へも車で1時間で行くことができます。アパホテルでは、焚火や花火イベントも開催しています。夜は星空を眺め、時期や天候によっては、ホタルも見れるようです。 | ||
| 情報登録日 | 2025/11/28 | 次回更新予定日 | 2025/12/23 |
| 取引条件有効期限 | 2025/12/31 | ||
|
|
|
|
|
| TEL: | 0255-72-0003 |
|---|---|
| 所在地: | 新潟県妙高市雪森645-1 |
| 交通: | 妙高はねうまライン北井駅 |
| 営業時間: | 8時~17時/定休日:土・日・祝日、その他夏季・年末年始 |
| 免許番号: | 新潟県知事(12)第2463号 |
| 所属団体名: | 公社 新潟県宅地建物取引協会 上越支部 |
| 取引態様: | 一般 |