物件掲載企業数:301|賃貸物件:3,182件|売買物件:3,223件|今週の登録物件:112
閲覧中のブラウザ(インターネットエクスプローラー)は非推奨ブラウザです。
物件が正しく表示されなかったり、正しく検索されない場合があります。最新のブラウザ(Google Chrome・Edgeなど)にてご利用お願いいたします。
  

新潟県上越市三和区神明町1182-26 中古一戸建て 6LDK 15,000,000円の物件情報

周囲は閑静な住宅街◎のんびりと暮らせる住環境

物件名/所在地 詳細 価格
のどかな住宅街にある三和区神明町の家
新潟県上越市三和区神明町1182-26
  • 土地面積
    :380.69㎡ /115.15坪
  • 建物面積
    :189.24㎡ /57.24坪
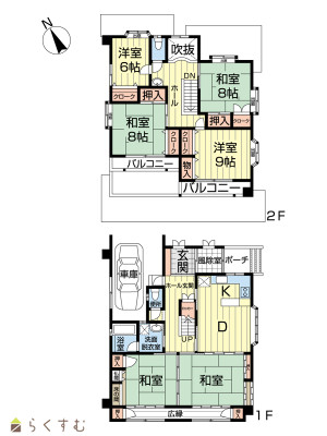
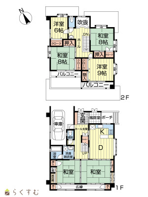
  • 間取り
    :6LDK
  • 築年月
    :1994年3月
15,000,000
  • のどかな住宅街にある三和区神明町の家
    ピタットハウス上越店 日建不動産
  • この物件を問い合わせる/無料
  • TEL: 025-544-6015

物件画像

外観 間取り
物件画像
※画像クリックで拡大表示
外観
物件画像
※画像クリックで拡大表示
間取り
詳細画像


物件概要

400m圏内にコンビニ、ホームセンターがあり便利な立地
物件コード 00263-200142
物件名 のどかな住宅街にある三和区神明町の家
交通 駅:妙高はねうまライン 高田駅から徒歩99分
物件所在地 新潟県上越市三和区神明町1182-26
物件種別 中古一戸建て
構造 木造 階建 地上2階建
建ぺい率/容積率 70%/200%
建物面積 1階 112.56㎡/ 2階 76.68㎡/ 計 189.24㎡ /57.24坪
土地面積 380.69㎡ /115.15坪
築年月 1994年3月(築32年)
入居(引き渡し)時期 相談
用途地域 用途の指定のない地域 地目 宅地
都市計画 都市計画区域外 学校区 三和小学校(1,508m)・三和中学校(3,469m)
形状 - 道路 北東:公道 7m
私道 - その他の制限 -
  • のどかな住宅街にある三和区神明町の家
    ピタットハウス上越店 日建不動産
  • この物件を問い合わせる/無料
  • TEL: 025-544-6015

物件詳細情報

所在階/階数 - 号室 -
販売価格 15,000,000円 方位
間取り 6LDK
専有面積 - バルコニー面積 -
その他面積 - 駐車場 -
管理費 - 修繕積立金 -
現況 空家
仲介手数料 561,000円
利用制限 -
設備 日当り良好、閑静な住宅街、駐車2台可能、システムキッチン、3口コンロ、ガスコンロ設置済み、追いだき機能付き、浴室乾燥機、バス1坪以上、温水洗浄便座、トイレ2か所以上、シャワー付き洗面台、エアコンあり、都市ガス、上水道、下水道、シューズBOX、田舎暮らし
取引態様 専属専任
備考 -
取り扱い会社

ピタットハウス上越店 日建不動産

新潟県上越市春日新田1-20-8

情報登録日 2025/11/10 次回更新予定日 2026/05/22
取引条件有効期限 2025/12/02
  • のどかな住宅街にある三和区神明町の家
    ピタットハウス上越店 日建不動産
  • この物件を問い合わせる/無料
  • TEL: 025-544-6015

この物件の地図・周辺情報・行政情報

この物件の周辺情報・行政情報を詳しく見る
【周辺情報】
物件の近くにあるコンビニや銀行・学校など、アイコン付のマップで詳しく表示できます!
【行政情報】
水道料や下水道料・ガス料金など、暮らしに関係のある情報を表示しています。

担当取扱い店舗情報

取扱い店舗画像
ピタットハウス上越店 日建不動産
TEL: 025-544-6015
所在地: 新潟県上越市春日新田1-20-8
交通:
営業時間: 9:00~18:00/定休日:水・日・祝
免許番号: 新潟県知事(10)第3031号 この会社の情報を詳しく見る
所属団体名: 公社 新潟県宅地建物取引協会 上越支部
取引態様: 専属専任
ホームページ: https://www.pitat-j.com/