| 400m圏内にコンビニ、ホームセンターがあり便利な立地 | |||
| 物件コード | 00263-200142 | ||
|---|---|---|---|
| 物件名 | のどかな住宅街にある三和区神明町の家 | ||
| 交通 | 駅:妙高はねうまライン 高田駅から徒歩99分 | ||
| 物件所在地 | 新潟県上越市三和区神明町1182-26 | ||
| 物件種別 | 中古一戸建て | ||
| 構造 | 木造 | 階建 | 地上2階建 |
| 建ぺい率/容積率 | 70%/200% | ||
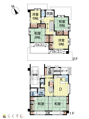
| 建物面積 | 1階 112.56㎡/ 2階 76.68㎡/ 計 189.24㎡ /57.24坪 | ||
| 土地面積 | 380.69㎡ /115.15坪 | ||
| 築年月 | 1994年3月(築32年) | ||
| 入居時期 | 相談 | ||
| 用途地域 | 用途の指定のない地域 | 地目 | 宅地 |
| 都市計画 | 都市計画区域外 | 学校区 | 三和小学校(1,508m)・三和中学校(3,469m) |
| 形状 | - | 道路 | 北東:公道 7m |
| 私道 | - | ||
| 所在階/階数 | - | 号室 | - |
|---|---|---|---|
| 販売価格 | 15,000,000円 | 方位 | 北 |
| 間取り | 6LDK | ||
| 専有面積 | - | バルコニー面積 | - |
| その他面積 | - | 駐車場 | - |
| 管理費 | - | 修繕積立金 | - |
| 現況 | 空家 | ||
| 仲介手数料 | 561,000円 | ||
| 利用制限 | - | ||
| 設備 | 日当り良好、閑静な住宅街、駐車2台可能、システムキッチン、3口コンロ、ガスコンロ設置済み、追いだき機能付き、浴室乾燥機、バス1坪以上、温水洗浄便座、トイレ2か所以上、シャワー付き洗面台、エアコンあり、都市ガス、上水道、下水道、シューズBOX、田舎暮らし | ||
| 取引態様 | 専属専任 | ||
| 備考 | - | ||
| 情報登録日 | 2025/11/10 | 次回更新予定日 | 2026/05/22 |
| 取引条件有効期限 | 2025/12/02 | ||
|
|
|
|
|
|
| TEL: | 025-544-6015 |
|---|---|
| 所在地: | 新潟県上越市春日新田1-20-8 |
| 交通: | |
| 営業時間: | 9:00~18:00/定休日:水・日・祝 |
| 免許番号: | 新潟県知事(10)第3031号 |
| 所属団体名: | 公社 新潟県宅地建物取引協会 上越支部 |
| 取引態様: | 専属専任 |