物件掲載企業数:295|賃貸物件:3,618件|売買物件:3,318件|今週の登録物件:234
閲覧中のブラウザ(インターネットエクスプローラー)は非推奨ブラウザです。
物件が正しく表示されなかったり、正しく検索されない場合があります。最新のブラウザ(Google Chrome・Edgeなど)にてご利用お願いいたします。
  

新潟県長岡市三和1丁目7ー23付近 新築一戸建て 4LDK 34,800,000円の物件情報

【補助金40万円対象】 ■前面6m公道 ■複合商業施設まで車約4分 ■駐車並列3台可 ■全居室収納有、ゆとりある室内空間

物件名/所在地 詳細 価格
(新築住宅)長岡市三和町 第1 1号棟
新潟県長岡市三和1丁目7ー23付近
  • 土地面積
    :295.39㎡ /89.35坪
  • 建物面積
    :108.54㎡ /32.83坪
  • 間取り
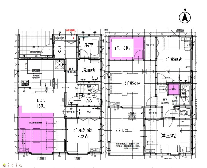
    :4LDK
  • 築年月
    :2026年1月
34,800,000
  • (新築住宅)長岡市三和町 第1 1号棟
    新潟土地建物販売センター 株式会社
  • この物件を問い合わせる/無料
  • TEL: 0258-89-8245

物件画像

外観 間取り
物件画像
※画像クリックで拡大表示
(完成予想図)同施工会社様の類似物件へご案内します
物件画像
※画像クリックで拡大表示
全居室収納付♪住み心地のいい大きさ。お問い合わせ下さい♪
詳細画像


物件概要

◆子育てエコホーム支援事業対象◆対象要件や予算に限りございますので詳細はお問い合わせください◆当日ご内覧大歓迎!豊富な知識と経験を基に丁寧にアドバイスします!
物件コード 00239-200608
物件名 (新築住宅)長岡市三和町 第1 1号棟
交通 駅:信越線 宮内駅から徒歩22分、バス:三和町から徒歩4分
物件所在地 新潟県長岡市三和1丁目7ー23付近
物件種別 新築一戸建て
構造 木造 階建 地上2階建
建ぺい率/容積率 60%/200%
建物面積 1階 51.84㎡/ 2階 56.7㎡/ 計 108.54㎡ /32.83坪
土地面積 295.39㎡ /89.35坪
築年月 2026年1月完成予定
入居(引き渡し)時期 相談
用途地域 第2種中高層住居専用地域 地目 宅地
都市計画 市街化区域 学校区 宮内小学校(1,100m)・宮内中学校(1,600m)
形状 - 道路 北側8.0m公道
私道 - その他の制限 建築基準法22条指定区域
  • (新築住宅)長岡市三和町 第1 1号棟
    新潟土地建物販売センター 株式会社
  • この物件を問い合わせる/無料
  • TEL: 0258-89-8245

物件詳細情報

所在階/階数 - 号室 -
販売価格 34,800,000円 方位
間取り 4LDK (和室:4.5畳) (洋室:8.0、6.0、6.0)
LDK16
2階に納戸3帖有
専有面積 - バルコニー面積 -
その他面積 - 駐車場 -
管理費 - 修繕積立金 -
現況 空家
仲介手数料 1,214,400円
利用制限 -
設備 前面道路6m以上、閑静な住宅街、耐震構造、LDK15畳以上、駐車場3台以上、南向き、TVインターホン、複層ガラス、ディンプルキー、システムキッチン、カウンターキッチン、浄水器、3口コンロ、ガスコンロ設置済み、追いだき機能付き、浴室暖房乾燥機、バス1坪以上、温水洗浄便座、シャワー付き洗面台、24時間換気システム、省エネ給湯、高気密高断熱住宅、都市ガス、上水道、下水道、電気、全居室収納あり、床下収納、シューズBOX
取引態様 一般
備考 【教育】
宮内小学校 約1100m 徒歩約14分
宮内中学校 約1600m 徒歩約20分

【交通】
JR信越本線/上越線 宮内駅 徒歩約22分
越後交通 三和町 徒歩約4分

■■売って終わりにしない、充実のアフターサービス体制■■
◎アフターサービスの専門スタッフが、迅速・丁寧にご対応
◎独自のメンテナンス制度で設備の故障や建物の傷を無償修理
◎ご購入後のお困り事も、充実した体制で手厚くサポート

■■選べるプレゼント■■
◎エアコンや照明などの新生活に必要な設備を無料でプレゼント

■■子育てグリーン住宅支援事業対象物件■■
◎対象者には40万円の補助金
取り扱い会社

新潟土地建物販売センター 株式会社

新潟県長岡市台町1-7-331階

情報登録日 2025/11/02 次回更新予定日 2025/11/18
取引条件有効期限 2026/12/31
  • (新築住宅)長岡市三和町 第1 1号棟
    新潟土地建物販売センター 株式会社
  • この物件を問い合わせる/無料
  • TEL: 0258-89-8245

この物件の地図・周辺情報・行政情報

この物件の周辺情報・行政情報を詳しく見る
【周辺情報】
物件の近くにあるコンビニや銀行・学校など、アイコン付のマップで詳しく表示できます!
【行政情報】
水道料や下水道料・ガス料金など、暮らしに関係のある情報を表示しています。
セブン-イレブン 長岡市立劇場前店(コンビニ)まで260m
ローソン 長岡左近店(コンビニ)まで860m
ウオロク 要町店(スーパー)まで850m
クスリのアオキ 千歳店(ドラッグストア)まで860m

※カメラのアイコンがある場合は、マウスをポイントするとその施設の画像がご覧いただけます。


担当取扱い店舗情報

取扱い店舗画像
新潟土地建物販売センター 株式会社
TEL: 0258-89-8245
所在地: 新潟県長岡市台町1-7-331階
交通: 長岡駅
営業時間: 9:00~18:00/定休日:なし
免許番号: 新潟県知事(3)第5151号 この会社の情報を詳しく見る
所属団体名: 公社 新潟県宅地建物取引協会 新潟支部
取引態様: 一般
ホームページ: https://niigata-tochitate.jp/