| ◆子育てエコホーム支援事業対象◆対象要件や予算に限りございますので詳細はお問い合わせください◆当日ご内覧大歓迎!豊富な知識と経験を基に丁寧にアドバイスします! | |||
| 物件コード | 00239-200608 | ||
|---|---|---|---|
| 物件名 | (新築住宅)長岡市三和町 第1 1号棟 | ||
| 交通 | 駅:信越線 宮内駅から徒歩22分、バス:三和町から徒歩4分 | ||
| 物件所在地 | 新潟県長岡市三和1丁目7ー23付近 | ||
| 物件種別 | 新築一戸建て | ||
| 構造 | 木造 | 階建 | 地上2階建 |
| 建ぺい率/容積率 | 60%/200% | ||
| 建物面積 | 1階 51.84㎡/ 2階 56.7㎡/ 計 108.54㎡ /32.83坪 | ||
| 土地面積 | 295.39㎡ /89.35坪 | ||
| 築年月 | 2026年1月完成予定 | ||
| 入居時期 | 相談 | ||
| 用途地域 | 第2種中高層住居専用地域 | 地目 | 宅地 |
| 都市計画 | 市街化区域 | 学校区 | 宮内小学校(1,100m)・宮内中学校(1,600m) |
| 形状 | - | 道路 | 北側8.0m公道 |
| 私道 | - | ||
| 所在階/階数 | - | 号室 | - |
|---|---|---|---|
| 販売価格 | 34,800,000円 | 方位 | 南 |
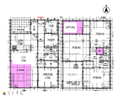
| 間取り |
4LDK (和室:4.5畳) (洋室:8.0、6.0、6.0) LDK16 2階に納戸3帖有 |
||
| 専有面積 | - | バルコニー面積 | - |
| その他面積 | - | 駐車場 | - |
| 管理費 | - | 修繕積立金 | - |
| 現況 | 空家 | ||
| 仲介手数料 | 1,214,400円 | ||
| 利用制限 | - | ||
| 設備 | 前面道路6m以上、閑静な住宅街、耐震構造、LDK15畳以上、駐車場3台以上、南向き、TVインターホン、複層ガラス、ディンプルキー、システムキッチン、カウンターキッチン、浄水器、3口コンロ、ガスコンロ設置済み、追いだき機能付き、浴室暖房乾燥機、バス1坪以上、温水洗浄便座、シャワー付き洗面台、24時間換気システム、省エネ給湯、高気密高断熱住宅、都市ガス、上水道、下水道、電気、全居室収納あり、床下収納、シューズBOX | ||
| 取引態様 | 一般 | ||
| 備考 | 【教育】 宮内小学校 約1100m 徒歩約14分 宮内中学校 約1600m 徒歩約20分 【交通】 JR信越本線/上越線 宮内駅 徒歩約22分 越後交通 三和町 徒歩約4分 ■■売って終わりにしない、充実のアフターサービス体制■■ ◎アフターサービスの専門スタッフが、迅速・丁寧にご対応 ◎独自のメンテナンス制度で設備の故障や建物の傷を無償修理 ◎ご購入後のお困り事も、充実した体制で手厚くサポート ■■選べるプレゼント■■ ◎エアコンや照明などの新生活に必要な設備を無料でプレゼント ■■子育てグリーン住宅支援事業対象物件■■ ◎対象者には40万円の補助金 |
||
| 情報登録日 | 2025/11/02 | 次回更新予定日 | 2025/11/17 |
| 取引条件有効期限 | 2026/12/31 | ||
|
|
|
|
| TEL: | 0258-89-8245 |
|---|---|
| 所在地: | 新潟県長岡市台町1-7-331階 |
| 交通: | 長岡駅 |
| 営業時間: | 9:00~18:00/定休日:なし |
| 免許番号: | 新潟県知事(3)第5151号 |
| 所属団体名: | 公社 新潟県宅地建物取引協会 新潟支部 |
| 取引態様: | 一般 |