物件掲載企業数:301|賃貸物件:3,289件|売買物件:3,251件|今週の登録物件:265
閲覧中のブラウザ(インターネットエクスプローラー)は非推奨ブラウザです。
物件が正しく表示されなかったり、正しく検索されない場合があります。最新のブラウザ(Google Chrome・Edgeなど)にてご利用お願いいたします。
  

新潟県長岡市沖田3丁目41番地 中古一戸建て 5LDK 32,600,000円の物件情報

商業地・バイパス近く!5SLDK収納たっぷり!カーポート+敷地内に2台駐車可能、家庭菜園スペースと花壇あり

物件名/所在地 詳細 価格
沖田3丁目 中古戸建物件
新潟県長岡市沖田3丁目41番地
  • 土地面積
    :378.45㎡ /114.48坪
  • 建物面積
    :171.3㎡ /51.81坪
  • 間取り
    :5LDK
  • 築年月
    :2012年12月
32,600,000
  • 沖田3丁目 中古戸建物件
    株式会社 空間クリエイティブ
  • この物件を問い合わせる/無料
  • TEL: 0258-38-5488

物件画像

外観 間取り
物件画像
※画像クリックで拡大表示
外観
物件画像
※画像クリックで拡大表示
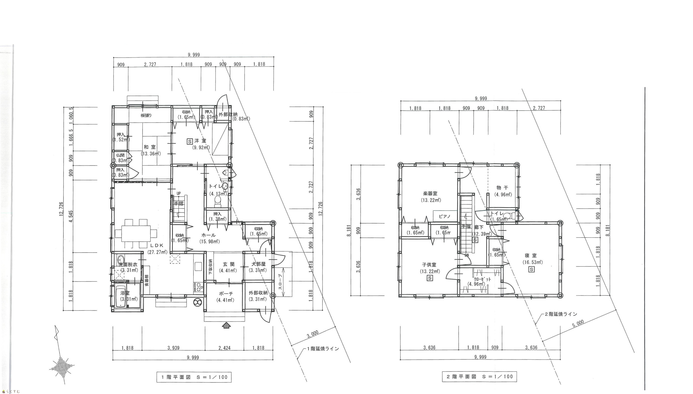
間取り
詳細画像


物件概要

防音室・サンルームあり、玄関脇わんちゃんのお部屋だったところはシューズクロークとしても使用可能
物件コード 00130-200016
物件名 沖田3丁目 中古戸建物件
交通 駅:信越線 長岡駅から徒歩20分、バス:職業安定所から徒歩1分
物件所在地 新潟県長岡市沖田3丁目41番地
物件種別 中古一戸建て
構造 木造 階建 地上2階建
建ぺい率/容積率 60%/200%
建物面積 1階 99.42㎡/ 2階 71.88㎡/ 計 171.3㎡ /51.81坪
土地面積 378.45㎡ /114.48坪
築年月 2012年12月(築13年)
入居(引き渡し)時期 随時入居(引き渡し)可
用途地域 第2種住居地域 地目 宅地  (現状:宅地)
都市計画 市街化区域 学校区 川崎小学校(943m)・東北中学校(1,167m)
形状 間口 19m × 奥行 25m 道路 市道963号線 幅員8m
私道 - その他の制限 長岡駅東地区計画、地区整備計画C地区
  • 沖田3丁目 中古戸建物件
    株式会社 空間クリエイティブ
  • この物件を問い合わせる/無料
  • TEL: 0258-38-5488

物件詳細情報

所在階/階数 - 号室 -
販売価格 32,600,000円 方位
間取り 5LDK (和室:6.0畳) (洋室:9.6、8.5、9.6、12)
LDK18.0
専有面積 - バルコニー面積 -
その他面積 4.96㎡ /1.5坪  クローゼット 駐車場 -
管理費 - 修繕積立金 -
現況 空家
仲介手数料 1,141,800円
利用制限 -
設備 日当り良好、閑静な住宅街、スーパー近く、新築時図面あり、建物確認・完了検査済証あり、LDK15帖以上、築15年以内、駐車2台可能、駐車3台以上可能、南向き、TVインターホン、複層ガラス、システムキッチン、IHクッキングヒーター、浄水器、3口コンロ、バス1坪以上、温水洗浄便座、トイレ2か所以上、シャワー付き洗面台、エアコンあり、床暖房、24時間換気システム、都市ガス、上水道、下水道、バリアフリー、ウォークインクローゼット、全居室収納あり、シューズBOX、シューズインクローゼット、2世帯向き、即引き渡し可能、別荘、田舎暮らし、事業向け
取引態様 専任
備考 ・宅内に消雪あり
・町内費年間6,000円
・ガスストーブあり
取り扱い会社

株式会社 空間クリエイティブ

新潟県長岡市三和1-1-24

情報登録日 2026/04/27 次回更新予定日 2026/06/14
取引条件有効期限 2026/07/10
  • 沖田3丁目 中古戸建物件
    株式会社 空間クリエイティブ
  • この物件を問い合わせる/無料
  • TEL: 0258-38-5488

この物件の地図・周辺情報・行政情報

この物件の周辺情報・行政情報を詳しく見る
【周辺情報】
物件の近くにあるコンビニや銀行・学校など、アイコン付のマップで詳しく表示できます!
【行政情報】
水道料や下水道料・ガス料金など、暮らしに関係のある情報を表示しています。
ファミリーマート 長岡中沢町店(コンビニ)まで90m
原信 美沢店(スーパー)まで410m
業務スーパー 美沢店(スーパー)まで650m
ALPHAS薬局 中沢店(ドラッグストア)まで350m
中沢簡易郵便局(郵便局)まで590m

※カメラのアイコンがある場合は、マウスをポイントするとその施設の画像がご覧いただけます。


担当取扱い店舗情報

取扱い店舗画像
株式会社 空間クリエイティブ
TEL: 0258-38-5488
所在地: 新潟県長岡市三和1-1-24
交通: 長岡駅
営業時間: 9:00~18:00/定休日:土・日・祝
免許番号: 新潟県知事(5)第4601号 この会社の情報を詳しく見る
所属団体名: 全日本不動産協会 新潟県本部
取引態様: 専任
ホームページ: http://ku-creative.com/