| 防音室・サンルームあり、玄関脇わんちゃんのお部屋だったところはシューズクロークとしても使用可能 | |||
| 物件コード | 00130-200016 | ||
|---|---|---|---|
| 物件名 | 沖田3丁目 中古戸建物件 | ||
| 交通 | 駅:信越線 長岡駅から徒歩20分、バス:職業安定所から徒歩1分 | ||
| 物件所在地 | 新潟県長岡市沖田3丁目41番地 | ||
| 物件種別 | 中古一戸建て | ||
| 構造 | 木造 | 階建 | 地上2階建 |
| 建ぺい率/容積率 | 60%/200% | ||
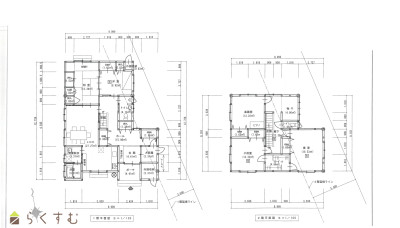
| 建物面積 | 1階 99.42㎡/ 2階 71.88㎡/ 計 171.3㎡ /51.81坪 | ||
| 土地面積 | 378.45㎡ /114.48坪 | ||
| 築年月 | 2012年12月(築13年) | ||
| 入居時期 | 随時入居(引き渡し)可 | ||
| 用途地域 | 第2種住居地域 | 地目 | 宅地 (現状:宅地) |
| 都市計画 | 市街化区域 | 学校区 | 川崎小学校(943m)・東北中学校(1,167m) |
| 形状 | 間口 19m × 奥行 25m | 道路 | 市道963号線 幅員8m |
| 私道 | - | ||
| 所在階/階数 | - | 号室 | - |
|---|---|---|---|
| 販売価格 | 32,600,000円 | 方位 | 南 |
| 間取り |
5LDK (和室:6.0畳) (洋室:9.6、8.5、9.6、12) LDK18.0 |
||
| 専有面積 | - | バルコニー面積 | - |
| その他面積 | 4.96㎡ /1.5坪 クローゼット | 駐車場 | - |
| 管理費 | - | 修繕積立金 | - |
| 現況 | 空家 | ||
| 仲介手数料 | 1,141,800円 | ||
| 利用制限 | - | ||
| 設備 | 日当り良好、閑静な住宅街、スーパー近く、新築時図面あり、建物確認・完了検査済証あり、LDK15帖以上、築15年以内、駐車2台可能、駐車3台以上可能、南向き、TVインターホン、複層ガラス、システムキッチン、IHクッキングヒーター、浄水器、3口コンロ、バス1坪以上、温水洗浄便座、トイレ2か所以上、シャワー付き洗面台、エアコンあり、床暖房、24時間換気システム、都市ガス、上水道、下水道、バリアフリー、ウォークインクローゼット、全居室収納あり、シューズBOX、シューズインクローゼット、2世帯向き、即引き渡し可能、別荘、田舎暮らし、事業向け | ||
| 取引態様 | 専任 | ||
| 備考 | ・宅内に消雪あり ・町内費年間6,000円 ・ガスストーブあり |
||
| 情報登録日 | 2026/04/27 | 次回更新予定日 | 2026/06/14 |
| 取引条件有効期限 | 2026/07/10 | ||
|
|
|
|
| TEL: | 0258-38-5488 |
|---|---|
| 所在地: | 新潟県長岡市三和1-1-24 |
| 交通: | 長岡駅 |
| 営業時間: | 9:00~18:00/定休日:土・日・祝 |
| 免許番号: | 新潟県知事(5)第4601号 |
| 所属団体名: | 全日本不動産協会 新潟県本部 |
| 取引態様: | 専任 |