物件掲載企業数:296|賃貸物件:3,505件|売買物件:3,302件|今週の登録物件:314
閲覧中のブラウザ(インターネットエクスプローラー)は非推奨ブラウザです。
物件が正しく表示されなかったり、正しく検索されない場合があります。最新のブラウザ(Google Chrome・Edgeなど)にてご利用お願いいたします。
  

新潟県三条市条南町2-2 売土地・分譲地 4,591,200円の物件情報

物件名/所在地 詳細 価格
三条市条南町 分譲③
新潟県三条市条南町2-2
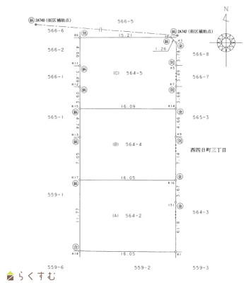
  • 土地面積
    :189.72㎡ /57.39坪
  • 坪単価
    :80,000円/坪
  • 建ぺい率
    :60%
  • 容積率
    :200%
4,591,200
  • 三条市条南町 分譲③
    ハウスドゥ 長岡中央店
  • この物件を問い合わせる/無料
  • TEL: 0258-94-5501

物件画像

外観 間取り
物件画像
※画像クリックで拡大表示
外観
物件画像
※画像クリックで拡大表示
区画図
詳細画像


物件概要

物件コード 00105-200638
物件名 三条市条南町 分譲③
交通 駅:信越線 三条駅から徒歩16分、バス:なでしこ青空保育園から徒歩3分
物件所在地 新潟県三条市条南町2-2
物件種別 売土地・分譲地
物件区分 売土地
構造 - 階建 -
建ぺい率/容積率 60%/200%
建物面積 -
土地面積 189.72㎡ /57.39坪
築年月 -
入居(引き渡し)時期 相談
用途地域 第1種住居地域 地目 宅地
都市計画 非線引き都市計画区域 学校区 嵐南小学校(725m)・第一中学校(484m)
形状 間口 11.86m × 奥行 16.05m 道路 北側 公道 約4m 東側 公道 約4m
私道 - その他の制限 -
  • 三条市条南町 分譲③
    ハウスドゥ 長岡中央店
  • この物件を問い合わせる/無料
  • TEL: 0258-94-5501

物件詳細情報

所在階/階数 - 号室 -
販売価格 4,591,200円 方位 -
間取り -
専有面積 - バルコニー面積 -
その他面積 - 駐車場 -
管理費 - 修繕積立金 -
現況 -
仲介手数料 330,000円
利用制限 -
設備 整形地、更地、所有権、都市ガス(宅地内)、上水道(宅地内)
取引態様 専属専任
備考 前面道路 融雪あり
取り扱い会社

ハウスドゥ 長岡中央店

新潟県長岡市緑町1丁目86番地28

情報登録日 2025/01/06 次回更新予定日 2026/02/17
取引条件有効期限 2023/09/30
  • 三条市条南町 分譲③
    ハウスドゥ 長岡中央店
  • この物件を問い合わせる/無料
  • TEL: 0258-94-5501

この物件の地図・周辺情報・行政情報

この物件の周辺情報・行政情報を詳しく見る
【周辺情報】
物件の近くにあるコンビニや銀行・学校など、アイコン付のマップで詳しく表示できます!
【行政情報】
水道料や下水道料・ガス料金など、暮らしに関係のある情報を表示しています。

担当取扱い店舗情報

取扱い店舗画像
ハウスドゥ 長岡中央店
TEL: 0258-94-5501
所在地: 新潟県長岡市緑町1丁目86番地28
交通:
営業時間: 10:00~18:00/定休日:水曜日
免許番号: 新潟県知事(3)5156号 この会社の情報を詳しく見る
所属団体名: 全日本不動産協会 新潟県本部
取引態様: 専属専任
ホームページ: http://www.housedo.com/tenpo/shop.php?fcshopId=404