| 物件コード | 00105-200638 | ||
|---|---|---|---|
| 物件名 | 三条市条南町 分譲③ | ||
| 交通 | 駅:信越線 三条駅から徒歩16分、バス:なでしこ青空保育園から徒歩3分 | ||
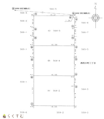
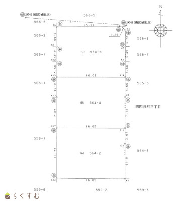
| 物件所在地 | 新潟県三条市条南町2-2 | ||
| 物件種別 | 売土地・分譲地 | ||
| 物件区分 | 売土地 | ||
| 構造 | - | 階建 | - |
| 建ぺい率/容積率 | 60%/200% | ||
| 建物面積 | - | ||
| 土地面積 | 189.72㎡ /57.39坪 | ||
| 築年月 | - | ||
| 入居時期 | 相談 | ||
| 用途地域 | 第1種住居地域 | 地目 | 宅地 |
| 都市計画 | 非線引き都市計画区域 | 学校区 | 嵐南小学校(725m)・第一中学校(484m) |
| 形状 | 間口 11.86m × 奥行 16.05m | 道路 | 北側 公道 約4m 東側 公道 約4m |
| 私道 | - | ||
| 所在階/階数 | - | 号室 | - |
|---|---|---|---|
| 販売価格 | 4,591,200円 | 方位 | - |
| 間取り | - | ||
| 専有面積 | - | バルコニー面積 | - |
| その他面積 | - | 駐車場 | - |
| 管理費 | - | 修繕積立金 | - |
| 現況 | - | ||
| 仲介手数料 | 330,000円 | ||
| 利用制限 | - | ||
| 設備 | 整形地、更地、所有権、都市ガス(宅地内)、上水道(宅地内) | ||
| 取引態様 | 専属専任 | ||
| 備考 | 前面道路 融雪あり | ||
| 情報登録日 | 2025/01/06 | 次回更新予定日 | 2026/02/27 |
| 取引条件有効期限 | 2023/09/30 | ||
|
|
|
|
| TEL: | 0258-94-5501 |
|---|---|
| 所在地: | 新潟県長岡市緑町1丁目86番地28 |
| 交通: | |
| 営業時間: | 10:00~18:00/定休日:水曜日 |
| 免許番号: | 新潟県知事(3)5156号 |
| 所属団体名: | 全日本不動産協会 新潟県本部 |
| 取引態様: | 専属専任 |