物件掲載企業数:300|賃貸物件:2,773件|売買物件:3,235件|今週の登録物件:271
閲覧中のブラウザ(インターネットエクスプローラー)は非推奨ブラウザです。
物件が正しく表示されなかったり、正しく検索されない場合があります。最新のブラウザ(Google Chrome・Edgeなど)にてご利用お願いいたします。
  

新潟県長岡市要町3丁目1-21 投資物件・その他 110,000,000円の物件情報

令和5年築の築浅居抜き物件です♪食品加工工場・販売店舗に最適です。2階は事務所兼休憩所となります。設備も別途お渡し可能ですので詳細はご相談下さい。

物件名/所在地 詳細 価格
表面利回り
要町3丁目売工場・店舗・事務所
新潟県長岡市要町3丁目1-21
  • 土地面積
    :825.37㎡ /249.67坪
  • 建ぺい率
    :60%
  • 容積率
    :200%
110,000,000
-
  • 要町3丁目売工場・店舗・事務所
    有限会社 竹内不動産
  • この物件を問い合わせる/無料
  • TEL: 0258-36-3224

物件画像

外観 間取り
物件画像
※画像クリックで拡大表示
外観
物件画像
※画像クリックで拡大表示
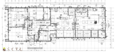
間取り
詳細画像


物件概要

物件コード 00026-200202
物件名 要町3丁目売工場・店舗・事務所
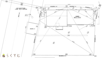
交通 駅:上越新幹線 長岡駅から徒歩29分、バス:三和町から徒歩4分
物件所在地 新潟県長岡市要町3丁目1-21
物件種別 投資物件・その他
物件区分 その他
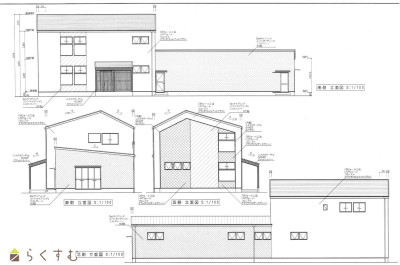
構造 木造 階建 地上2階建
建ぺい率/容積率 60%/200%
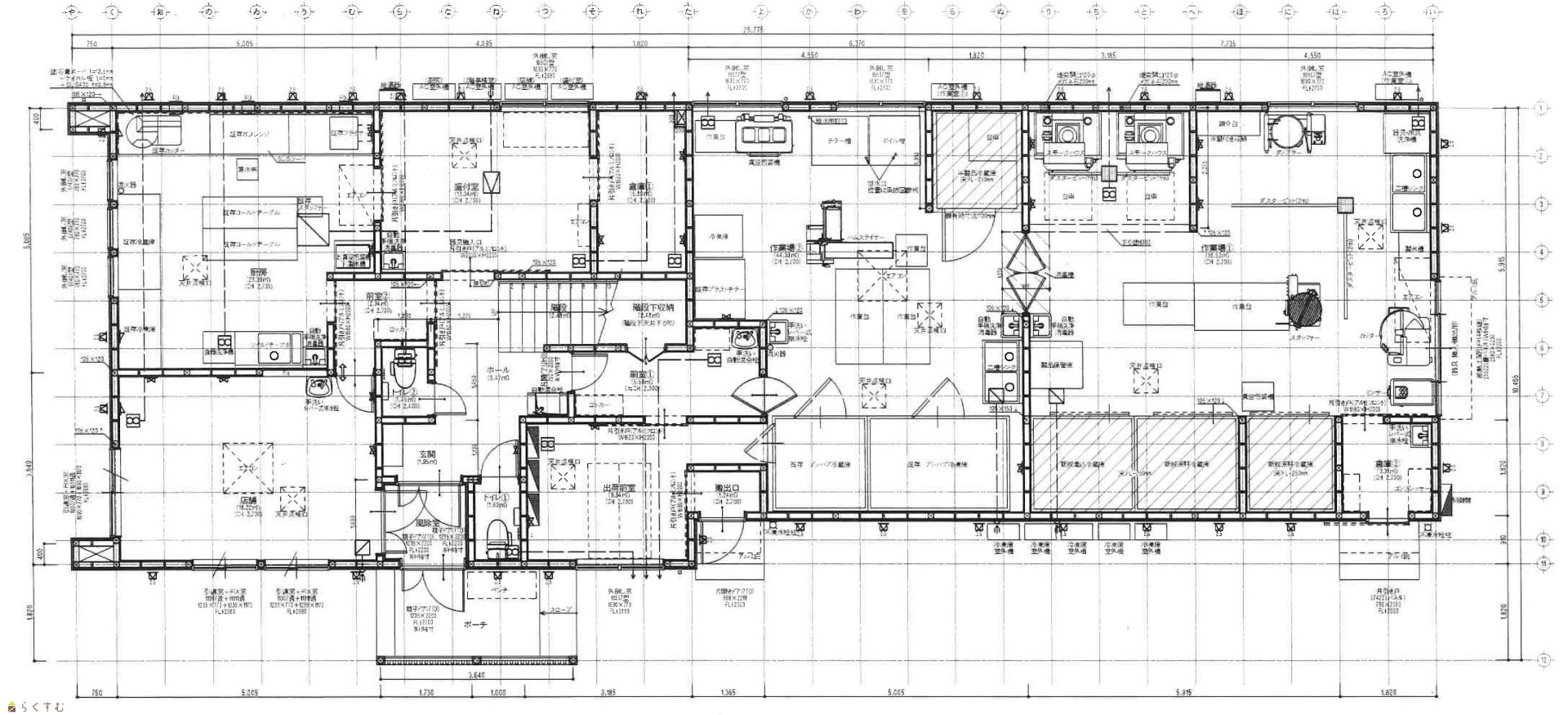
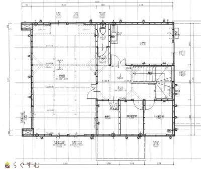
建物面積 1階 203.59㎡/ 2階 94.45㎡/ 計 298.04㎡ /90.15坪
土地面積 825.37㎡ /249.67坪
築年月 2023年3月(築3年)
入居(引き渡し)時期 令和8年10月予定
用途地域 準工業地域 地目 宅地  (現状:建付地)
都市計画 市街化区域 学校区 宮内小学校(633m)・宮内中学校(1,056m)
形状 間口 26.6m × 奥行 33.29m 道路 県道22m(消雪有)
私道 - その他の制限 -
  • 要町3丁目売工場・店舗・事務所
    有限会社 竹内不動産
  • この物件を問い合わせる/無料
  • TEL: 0258-36-3224

物件詳細情報

所在階/階数 - 号室 -
販売価格 110,000,000円 方位 -
表面利回り(満室想定時) - 満室想定年収 - (想定月収: - )
現行利回り - 現行年間年収 -
住戸数 -
間取り -
専有面積 - バルコニー面積 -
その他面積 - 駐車場 付無料(10台程度)
管理費 - 修繕積立金 -
現況 居住中
仲介手数料 3,696,000円
利用制限 -
設備 駐車場(近隣含む)、公営水道、LPG、下水道、事業向け
取引態様 専任
備考 価格内訳:土地3,500万円/建物7,500万円(非課税)/契約不適合免責/図面と現況異なる場合は現況優先/建物内部動産は売主負担で撤去します。残置ご希望の際はご相談下さい。/令和8年固都税年額626,311円
取り扱い会社

有限会社 竹内不動産

新潟県長岡市沢田1-1-8

情報登録日 2026/04/14 次回更新予定日 2026/05/01
取引条件有効期限 2026/08/31
  • 要町3丁目売工場・店舗・事務所
    有限会社 竹内不動産
  • この物件を問い合わせる/無料
  • TEL: 0258-36-3224

この物件の地図・周辺情報・行政情報

この物件の周辺情報・行政情報を詳しく見る
【周辺情報】
物件の近くにあるコンビニや銀行・学校など、アイコン付のマップで詳しく表示できます!
【行政情報】
水道料や下水道料・ガス料金など、暮らしに関係のある情報を表示しています。

担当取扱い店舗情報

取扱い店舗画像
有限会社 竹内不動産
TEL: 0258-36-3224
所在地: 新潟県長岡市沢田1-1-8
交通:
営業時間: 9:00~18:15/定休日:日曜・祭日(土曜は不定休のため事前連絡にて対応可
免許番号: 新潟県知事(12)第2303号 この会社の情報を詳しく見る
所属団体名: 公益社団法人 全国宅地建物取引業保証協会
取引態様: 専任
ホームページ: http://www.takeuchi-f.com/