1
物件掲載企業数:
295
社
|賃貸物件:
3,348
件|売買物件:
3,319
件|今週の登録物件:
330
件
閲覧中のブラウザ(インターネットエクスプローラー)は非推奨ブラウザです。
物件が正しく表示されなかったり、正しく検索されない場合があります。最新のブラウザ(Google Chrome・Edgeなど)にてご利用お願いいたします。
Google Chrome
Microsoft Edge
アパート・マンション・一戸建て
駐車場
貸土地
店舗
事務所
倉庫・工場
新築分譲マンション
中古マンション
新築一戸建て
中古一戸建て
売土地・分譲地
その他(投資物件など)
マンション
一戸建て
土地
ホーム
>
検索方法選択
>
エリア選択
> 物件一覧
全エリア
の
中古一戸建て
一覧
716件
該当しました。
<前のページ
11
12
13
14
15
16
17
18
19
20
21
次のページ>
表示切替:
一覧表示
/
地図表示
並び替え:
指定なし
新着順
価格が安い順
価格が高い順
画像
物件名/所在地/取扱店
詳細
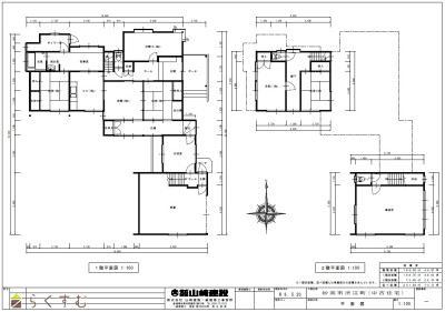
国道に面し、アクセスの良い物件です。
栃尾大野町中古住宅
新潟県長岡市栃尾大野町4丁目4-5
髙頭不動産 株式会社
価格
:
7,000,000
円
土地面積
:501.34㎡ /151.65坪
建物面積
:120.47㎡ /36.44坪
間取り
:7K
築年月
:1979年2月
南東・南西の角地、閑静な住宅街の5DK!スーパー・ドラッグストア近く、生活利便性良好です
長岡市東栄3丁目 中古住宅
新潟県長岡市東栄3丁目11-1
株式会社にいがた不動産
価格
:
7,000,000
円
土地面積
:167.27㎡ /50.59坪
建物面積
:149.49㎡ /45.22坪
間取り
:5DK
築年月
:1964年12月
南側に庭があります。畑やガーデニングはいかがでしょうか。コンパクトな住宅ですが収納はたくさんあります。前面道路消雪設備完備
長岡市平島2丁目中古住宅
新潟県長岡市平島2丁目195
株式会社 長岡総合開発
価格
:
7,000,000
円
土地面積
:219.26㎡ /66.32坪
建物面積
:113.1㎡ /34.21坪
間取り
:4DK
築年月
:1978年9月
◇高田城址公園徒歩圏内! ◇7DKの広い間取り! ◇消雪道路に面す!
東城町2丁目 売家
新潟県上越市東城町2丁目1-27
上越宅地販売株式会社
価格
:
7,000,000
円
土地面積
:175㎡ /52.93坪
建物面積
:103.3㎡ /31.24坪
間取り
:7DK
築年月
:1971年9月
高床3階建ての住宅です、内覧予約お待ちしています
長岡市西川口中古住宅
新潟県長岡市西川口2401-1
ブレイン・リアルエステート合同会社
価格
:
7,000,000
円
土地面積
:478.2㎡ /144.65坪
建物面積
:211.13㎡ /63.86坪
間取り
:5LDK
築年月
:1991年1月
☆需要が高い直江津地域の中古住宅です☆
国府3丁目
新潟県上越市国府3丁目4-30
有限会社田村家具店
価格
:
7,000,000
円
土地面積
:271.57㎡ /82.14坪
建物面積
:121.08㎡ /36.62坪
間取り
:5DK
築年月
:1979年6月
はちすば通り沿いの広々敷地185.28坪 9DK建物62.36坪に車庫・物置付き
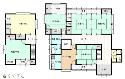
長岡市島崎(和島)中古住宅
新潟県長岡市島崎4761番地
株式会社 エヌ・アール・ケー総合企画
価格
:
7,280,000
円
土地面積
:612.51㎡ /185.28坪
建物面積
:210.03㎡ /63.53坪
間取り
:9DK
築年月
:1998年1月
上越市寺町三丁目中古住宅。高田駅から徒歩11分。5LDKの物件は室内も広々としており、開放感があります。車庫付きで前面道路も除雪が入りますので冬期間も安心です。価格についてもご相談可能です。
上越市寺町三丁目中古住宅
新潟県上越市寺町3-3-28
合同会社エフアセット
価格
:
7,300,000
円
土地面積
:498.48㎡ /150.79坪
建物面積
:146.96㎡ /44.45坪
間取り
:5LDK
築年月
:1982年4月
R7.7.5価格改定!カーポート、車庫付き!4LDK!内装リフォーム済み!
小国町新町 中古住宅
新潟県長岡市小国町新町13-4
ハウスドゥ 長岡中央店
価格
:
7,480,000
円
土地面積
:526.18㎡ /159.16坪
建物面積
:216.95㎡ /65.62坪
間取り
:4LDK
築年月
:1974年6月
鉄骨造3階建。長岡見附三条線沿い。新町小学校まで徒歩3分
長岡市新町3丁目中古住宅
新潟県長岡市新町3丁目29番地
ブレイン・リアルエステート合同会社
価格
:
7,500,000
円
土地面積
:120.16㎡ /36.34坪
建物面積
:170.1㎡ /51.45坪
間取り
:6DK
築年月
:1984年9月
海まで徒歩1分、広い敷地で間取りも広くゆったり過ごせます。
売家
新潟県上越市柿崎区上下浜247-2
有限会社佐藤材木店
価格
:
7,500,000
円
土地面積
:740.49㎡ /223.99坪
建物面積
:143㎡ /43.25坪
間取り
:5LDK
築年月
:1978年11月
◆オーナーチェンジ物件です。現在賃貸中。家賃月額55000円。
東本町3丁目
新潟県上越市東本町3丁目4-5
有限会社田村家具店
価格
:
7,500,000
円
土地面積
:236.05㎡ /71.4坪
建物面積
:114.03㎡ /34.49坪
間取り
:4K
築年月
:1968年3月
閑静な大家族向け住宅
長岡市根小屋 中古住宅
新潟県長岡市根小屋367-1
株式会社 能建 長岡支店
価格
:
7,500,000
円
土地面積
:411.41㎡ /124.45坪
建物面積
:245.63㎡ /74.3坪
間取り
:9DK
築年月
:1963年10月
自然に囲まれた店舗スペース付き住宅です!車3台分の車庫あり!地下は倉庫として利用できます♪
川口田麦山 売住宅(店舗付き)
新潟県長岡市川口田麦山555-1
髙頭不動産 株式会社
価格
:
7,600,000
円
土地面積
:813.66㎡ /246.13坪
建物面積
:224.13㎡ /67.79坪
間取り
:7K
築年月
:1994年7月
敷地274坪の広々8DK 駐車4台以上可能です!
柏崎市米山台東 売住宅
新潟県柏崎市米山台東4684-11
株式会社にいがた不動産
価格
:
7,770,000
円
土地面積
:908.38㎡ /274.78坪
建物面積
:205.08㎡ /62.03坪
間取り
:8DK
築年月
:1977年12月
部屋数が多く広々とした間取りです!
西城町3丁目 中古住宅
新潟県上越市西城町3丁目9番7号
株式会社カンエー・ハウジング
価格
:
7,800,000
円
土地面積
:234.98㎡ /71.08坪
建物面積
:144.94㎡ /43.84坪
間取り
:5DK
築年月
:1981年11月
文教エリア。高田駅徒歩圏内。路線バス営業所近く便が良い。本町商店街、大町朝市、雁木通り再生店舗急増中。
西城町3丁目中古住宅780万円
新潟県上越市西城町3丁目9-7
信濃土地株式会社 上越支店
価格
:
7,800,000
円
土地面積
:234.98㎡ /71.08坪
建物面積
:144.94㎡ /43.84坪
間取り
:5DK
築年月
:1981年11月
高床式住宅(天井高約1450mm)!敷地内消雪設備あり!
長町中古住宅
新潟県長岡市長町2丁目2-2
髙頭不動産 株式会社
価格
:
7,800,000
円
土地面積
:120.93㎡ /36.58坪
建物面積
:134.87㎡ /40.79坪
間取り
:6DK
築年月
:1983年10月
建物状態良好♪全室ペアガラスです
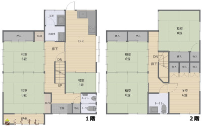
◆売中古戸建◆三条市林町二丁目
新潟県三条市林町2丁目9番地2号
株式会社 ユタカ不動産
価格
:
7,800,000
円
土地面積
:184.6㎡ /55.84坪
建物面積
:116.45㎡ /35.22坪
間取り
:4DK
築年月
:1979年8月
与板のまちの中心地に建つ店舗併用住宅です。
与板町与板店舗併用住宅
新潟県長岡市与板町与板459番地
(株)池田組
価格
:
8,000,000
円
土地面積
:436.32㎡ /131.98坪
建物面積
:326.4㎡ /98.73坪
間取り
:12DK
築年月
:1935年1月
表示切替:
一覧表示
/
地図表示
並び替え:
指定なし
新着順
価格が安い順
価格が高い順
価格は物件の代金総額を表示しており、消費税が課税される場合は税込み価格です。
建築条件付き土地価格には、建物価格は含まれません。
物件情報の詳細については取り扱い店までお問い合わせください。
完成予想図はいずれも外構・植栽・外観等実際のものと異なることが多少あります。
CG合成の画像の場合実際と異なることが多少あります。
完成後1年以上経過したものが未入居として記載される場合があります。ご了承ください。
販売予定物件は販売開始するまで契約または予約の申し込みはできません。
ご購入の場合物件詳細や契約内容についてご自身で十分ご確認いただきますようよろしく御願いします。
建築条件付きとは…その土地に建築する建物の建築請負契約が、一定期間内に成立することを条件として売買される土地のことをいいます。請負契約成立に向けて設計プランを協議するため、土地購入者が希望する建物にするために一定の期間(概ね3ヶ月)交渉期間としその期間内に希望するプランが実現できたかどうかによって土地の購入の判断をします。納得のいくプランができず請負契約が未成立になった場合、土地契約にかかった代金(手付金など)は、すべて返却されます。
716件
該当しました。
<前のページ
11
12
13
14
15
16
17
18
19
20
21
次のページ>
0件
がマッチ
基本条件
物件種別
中古一戸建て
価格
下限なし
100万円
250万円
500万円
1000万円
1500万円
2000万円
2500万円
3000万円
3500万円
4000万円
4500万円
5000万円
5500万円
6000万円
6500万円
7000万円
7500万円
8000万円
8500万円
9000万円
9500万円
1億円
~
上限なし
100万円
250万円
500万円
1000万円
1500万円
2000万円
2500万円
3000万円
3500万円
4000万円
4500万円
5000万円
5500万円
6000万円
6500万円
7000万円
7500万円
8000万円
8500万円
9000万円
9500万円
1億円
間取り
ワンルーム
1K
1DK
1LDK
2K
2DK
2LDK
3K
3DK
3LDK
4K
4DK
4LDK以上
専有面積
下限なし
20㎡
30㎡
40㎡
50㎡
60㎡
70㎡
80㎡
90㎡
100㎡
~
上限なし
20㎡
30㎡
40㎡
50㎡
60㎡
70㎡
80㎡
90㎡
100㎡
土地面積
下限なし
60㎡ (約18坪)
70㎡ (約21坪)
80㎡ (約24坪)
90㎡ (約27坪)
100㎡ (約30坪)
110㎡ (約33坪)
120㎡ (約36坪)
130㎡ (約39坪)
140㎡ (約42坪)
150㎡ (約45坪)
160㎡ (約48坪)
170㎡ (約51坪)
180㎡ (約54坪)
190㎡ (約57坪)
200㎡ (約60坪)
250㎡ (約75坪)
300㎡ (約90坪)
~
上限なし
60㎡ (約18坪)
70㎡ (約21坪)
80㎡ (約24坪)
90㎡ (約27坪)
100㎡ (約30坪)
110㎡ (約33坪)
120㎡ (約36坪)
130㎡ (約39坪)
140㎡ (約42坪)
150㎡ (約45坪)
160㎡ (約48坪)
170㎡ (約51坪)
180㎡ (約54坪)
190㎡ (約57坪)
200㎡ (約60坪)
250㎡ (約75坪)
300㎡ (約90坪)
建物面積
下限なし
60㎡ (約18坪)
70㎡ (約21坪)
80㎡ (約24坪)
90㎡ (約27坪)
100㎡ (約30坪)
110㎡ (約33坪)
120㎡ (約36坪)
130㎡ (約39坪)
140㎡ (約42坪)
150㎡ (約45坪)
160㎡ (約48坪)
170㎡ (約51坪)
180㎡ (約54坪)
190㎡ (約57坪)
200㎡ (約60坪)
250㎡ (約75坪)
300㎡ (約90坪)
~
上限なし
60㎡ (約18坪)
70㎡ (約21坪)
80㎡ (約24坪)
90㎡ (約27坪)
100㎡ (約30坪)
110㎡ (約33坪)
120㎡ (約36坪)
130㎡ (約39坪)
140㎡ (約42坪)
150㎡ (約45坪)
160㎡ (約48坪)
170㎡ (約51坪)
180㎡ (約54坪)
190㎡ (約57坪)
200㎡ (約60坪)
250㎡ (約75坪)
300㎡ (約90坪)
坪単価
下限なし
5万円
10万円
15万円
20万円
25万円
30万円
35万円
40万円
45万円
50万円
~
上限なし
5万円
10万円
15万円
20万円
25万円
30万円
35万円
40万円
45万円
50万円
築年数
指定なし
新築
3年以内
5年以内
10年以内
15年以内
20年以内
方位
北
北東
東
南東
南
南西
西
北西
おすすめ条件
ペット可・相談
楽器可・相談
情報公開日
指定なし
本日
3日以内
1週間以内
1ヶ月以内
0件
がマッチ
人気のあるこだわり条件
角地(124)
高台に立地(37)
日当り良好(356)
閑静な住宅街(383)
スーパー近く(165)
長期優良住宅(4)
設計住宅性能評価付(4)
耐震構造(9)
フラット35S適合(2)
瑕疵担保保険対象(10)
耐震基準適合証明書あり(4)
新築時図面あり(63)
修繕記録あり(10)
BELS/省エネ基準適合認定建物(3)
インスペクション報告書あり(6)
建物確認・完了検査済証あり(29)
適合状況調査報告書あり(1)
瑕疵担保保険付き(19)
LDK15帖以上(168)
全室フローリング(71)
築10年以内(42)
築15年以内(24)
駐車2台可能(244)
駐車3台以上可能(285)
駐車場融雪設備あり(33)
南向き(161)
TVインターホン(148)
複層ガラス(95)
デインプルキー(38)
システムキッチン(266)
カウンターキッチン(84)
IHクッキングヒーター(121)
浄水器(45)
食器洗浄乾燥機(67)
3口コンロ(169)
2口コンロ(26)
ガスコンロ設置可能(35)
ガスコンロ設置済み(52)
追いだき機能付き(314)
浴室乾燥機(63)
バス1坪以上(281)
温水洗浄便座(338)
トイレ2か所以上(253)
シャワー付き洗面台(216)
エアコンあり(258)
床暖房(17)
24時間換気システム(44)
堀ごたつ(3)
全室エアコン(11)
オール電化(54)
太陽光発電システム(8)
省エネ給湯機(59)
ウッドデッキ・テラス(26)
ルーフバルコニー(15)
都市ガス(461)
LPG(95)
上水道(603)
下水道(527)
浄化槽(65)
バリアフリー(26)
その他水道(4)
ウォークインクローゼット(100)
全居室収納あり(159)
床下収納(50)
シューズBOX(163)
シューズインクローゼット(19)
BS端子(19)
CS(5)
CATV(6)
LAN端子(3)
内装リフォーム済み(88)
外装リフォーム済み(64)
リノベーション物件(46)
2世帯向き(38)
即引き渡し可能(146)
別荘(74)
田舎暮らし(170)
事業向け(54)
条件に合った物件数は、
0 件
です。
立地・環境
角地(124)
高台に立地(37)
日当り良好(356)
閑静な住宅街(383)
スーパー近く(165)
構造・工法・仕様
長期優良住宅(4)
設計住宅性能評価付(4)
耐震構造(9)
フラット35S適合(2)
瑕疵担保保険対象(10)
耐震基準適合証明書あり(4)
新築時図面あり(63)
修繕記録あり(10)
BELS/省エネ基準適合認定建物(3)
インスペクション報告書あり(6)
建物確認・完了検査済証あり(29)
適合状況調査報告書あり(1)
瑕疵担保保険付き(19)
面積・間取り
LDK15帖以上(168)
全室フローリング(71)
築年
築10年以内(42)
築15年以内(24)
駐車・駐輪
駐車2台可能(244)
駐車3台以上可能(285)
駐車場融雪設備あり(33)
採光・向き
南向き(161)
管理・防犯
TVインターホン(148)
複層ガラス(95)
デインプルキー(38)
キッチン
システムキッチン(266)
カウンターキッチン(84)
IHクッキングヒーター(121)
浄水器(45)
食器洗浄乾燥機(67)
3口コンロ(169)
2口コンロ(26)
ガスコンロ設置可能(35)
ガスコンロ設置済み(52)
浴室
追いだき機能付き(314)
浴室乾燥機(63)
バス1坪以上(281)
トイレ
温水洗浄便座(338)
トイレ2か所以上(253)
洗面所
シャワー付き洗面台(216)
冷暖房・空調
エアコンあり(258)
床暖房(17)
24時間換気システム(44)
堀ごたつ(3)
全室エアコン(11)
光熱設備
オール電化(54)
太陽光発電システム(8)
省エネ給湯機(59)
バルコニー・テラス
ウッドデッキ・テラス(26)
ルーフバルコニー(15)
室内仕様・設備
都市ガス(461)
LPG(95)
上水道(603)
下水道(527)
浄化槽(65)
バリアフリー(26)
その他水道(4)
収納
ウォークインクローゼット(100)
全居室収納あり(159)
床下収納(50)
シューズBOX(163)
シューズインクローゼット(19)
電気設備
BS端子(19)
CS(5)
CATV(6)
LAN端子(3)
リフォーム
内装リフォーム済み(88)
外装リフォーム済み(64)
リノベーション物件(46)
費用・入居・引渡・条件
2世帯向き(38)
即引き渡し可能(146)
その他
別荘(74)
田舎暮らし(170)
事業向け(54)
条件に合った物件数は、
0 件
です。
アパート・マンション・一戸建て
/
駐車場
/
貸土地
/
店舗
/
事務所
/
倉庫・工場
新築分譲マンション
/
中古マンション
/
新築一戸建て
/
中古一戸建て
/
売土地
/
投資物件・その他
マンション
/
一戸建て
/
土地
建てる・リフォーム
物件掲載企業一覧
掲載希望の企業様へ
新潟の不動産情報サイト
サービス利用規約
運営会社
サイトマップ
プライバシーポリシー
お問い合わせ
リンク
Copyright (C)
株式会社 コモンライフ・コーポレーション
. All Rights Reserved.
新潟・長岡・柏崎の賃貸・マンション・アパート・住宅の不動産物件情報サイト
不動産検索サイト「らくすむ」及び関連サイトに記載の不動産情報は、会員規約に則り、情報提供会社様の責任のもとに発信されております。
不動産の賃借、購入に関しては賃借者、購入者ご自身が情報を確認され、会社企業様から説明を受けられたうえで判断をお願いいたします。
不動産検索サイト「らくすむ」及び関連サイトに記載の不動産情報、写真、デザイン、コンテンツなどの
無断転載・転用・複製
など禁止します。