物件掲載企業数:297|賃貸物件:3,613件|売買物件:3,317件|今週の登録物件:296
閲覧中のブラウザ(インターネットエクスプローラー)は非推奨ブラウザです。
物件が正しく表示されなかったり、正しく検索されない場合があります。最新のブラウザ(Google Chrome・Edgeなど)にてご利用お願いいたします。
  

新潟県長岡市長町2丁目2-2 中古一戸建て 6DK 7,800,000円の物件情報

高床式住宅(天井高約1450mm)!敷地内消雪設備あり!

物件名/所在地 詳細 価格
長町中古住宅
新潟県長岡市長町2丁目2-2
  • 土地面積
    :128.49㎡ /38.86坪
  • 建物面積
    :134.87㎡ /40.79坪
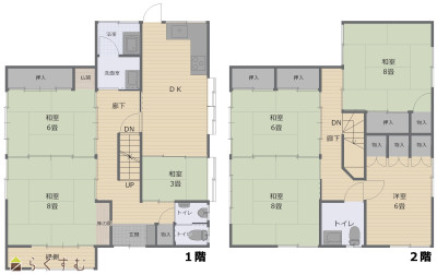
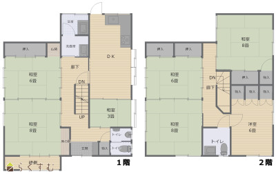
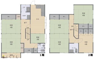
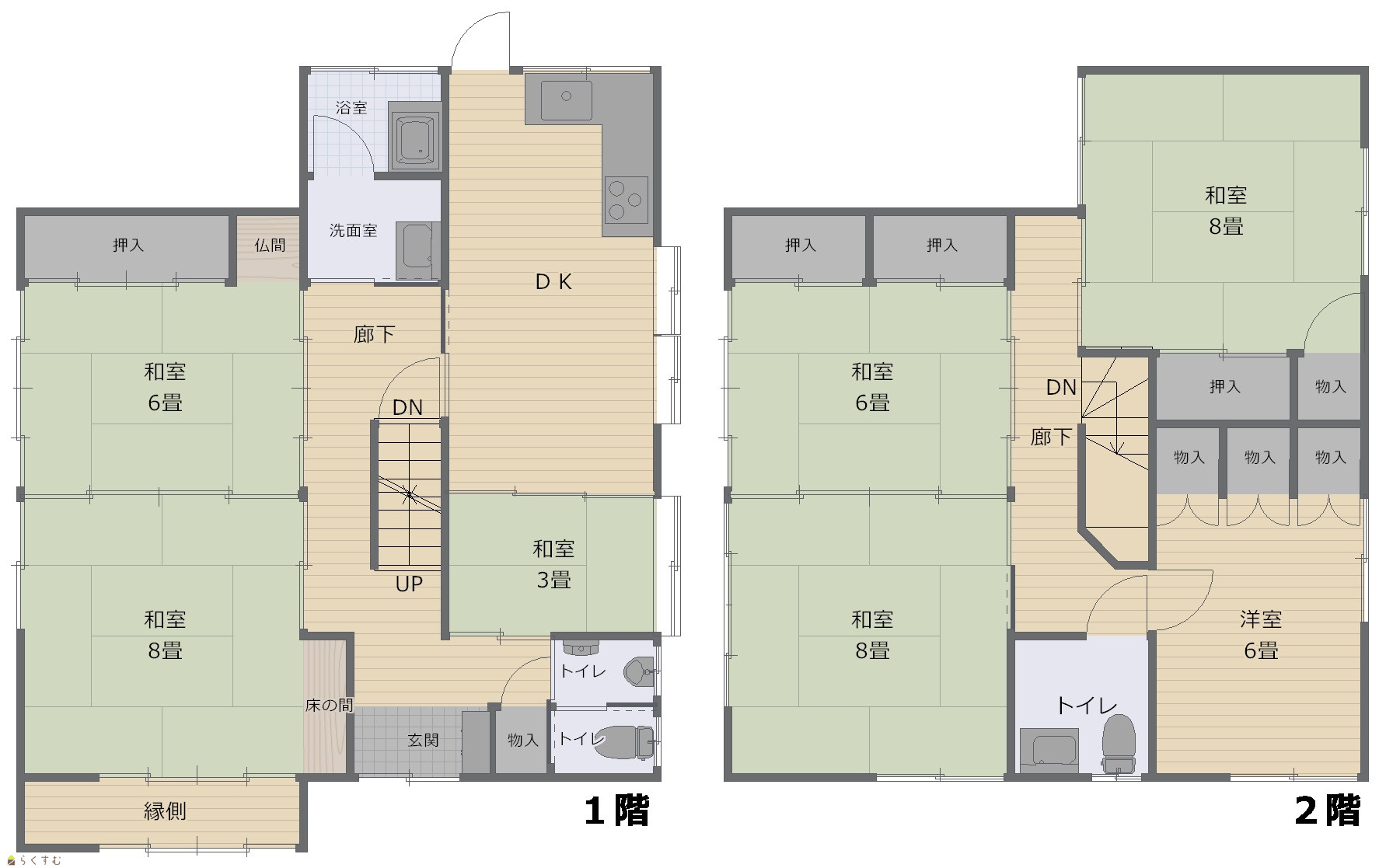
  • 間取り
    :6DK
  • 築年月
    :1983年10月
7,800,000
  • 長町中古住宅
    髙頭不動産 株式会社
  • この物件を問い合わせる/無料
  • TEL: 0120-1818-27

物件画像

外観 間取り
物件画像
※画像クリックで拡大表示
外観
物件画像
※画像クリックで拡大表示
間取り
詳細画像


物件概要

物件コード 00040-201155
物件名 長町中古住宅
交通 駅:信越線 長岡駅から徒歩17分、バス:昭和通りから徒歩2分
物件所在地 新潟県長岡市長町2丁目2-2
物件種別 中古一戸建て
構造 木造 階建 地上2階建
建ぺい率/容積率 80%/300%
建物面積 1階 68.63㎡/ 2階 66.24㎡/ 計 134.87㎡ /40.79坪
土地面積 128.49㎡ /38.86坪
築年月 1983年10月(築42年)
入居(引き渡し)時期 随時入居(引き渡し)可
用途地域 近隣商業地域 地目 宅地  (現状:宅地)
都市計画 市街化区域 学校区 神田小学校(242m)・東中学校(836m)
形状 - 道路 東側 公道 4m
私道 - その他の制限 準防火地域
  • 長町中古住宅
    髙頭不動産 株式会社
  • この物件を問い合わせる/無料
  • TEL: 0120-1818-27

物件詳細情報

所在階/階数 - 号室 -
販売価格 7,800,000円 方位
間取り 6DK
専有面積 - バルコニー面積 -
その他面積 - 駐車場 -
管理費 - 修繕積立金 -
現況 空家
仲介手数料 330,000円
利用制限 -
設備 閑静な住宅街
取引態様 専任
備考 敷地の一部が道路敷きになっております
取り扱い会社

髙頭不動産 株式会社

新潟県長岡市千歳1-3-25

情報登録日 2025/08/21 次回更新予定日 2025/12/30
取引条件有効期限 2025/12/31
  • 長町中古住宅
    髙頭不動産 株式会社
  • この物件を問い合わせる/無料
  • TEL: 0120-1818-27

この物件の地図・周辺情報・行政情報

この物件の周辺情報・行政情報を詳しく見る
【周辺情報】
物件の近くにあるコンビニや銀行・学校など、アイコン付のマップで詳しく表示できます!
【行政情報】
水道料や下水道料・ガス料金など、暮らしに関係のある情報を表示しています。

担当取扱い店舗情報

取扱い店舗画像
髙頭不動産 株式会社
TEL: 0120-1818-27
所在地: 新潟県長岡市千歳1-3-25
交通: 長岡駅
営業時間: 8時30分~17時30分(大手支店は9時~18時)/定休日:本社:土日祝日(事前予約での対応可能)、支店:日曜祝日第5土曜(毎年2月下旬から3月は休みなし)
免許番号: 新潟県知事(17)第191号 この会社の情報を詳しく見る
所属団体名: 新潟県宅地建物取引協会 長岡支部
取引態様: 専任
ホームページ: http://www.takato-f.com