物件掲載企業数:297|賃貸物件:3,612件|売買物件:3,334件|今週の登録物件:291
閲覧中のブラウザ(インターネットエクスプローラー)は非推奨ブラウザです。
物件が正しく表示されなかったり、正しく検索されない場合があります。最新のブラウザ(Google Chrome・Edgeなど)にてご利用お願いいたします。
  
ホーム会社情報物件種別選択 > 物件一覧

全エリア事務所物件情報

物件種別選択へ戻る
表示切替: 一覧表示 地図表示    並び替え:
画像 物件名
所在地
取扱店
面積
間取り
所在階
築年数
賃料
管理費等
共益費
敷金
保証金
礼金
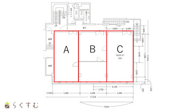
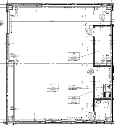
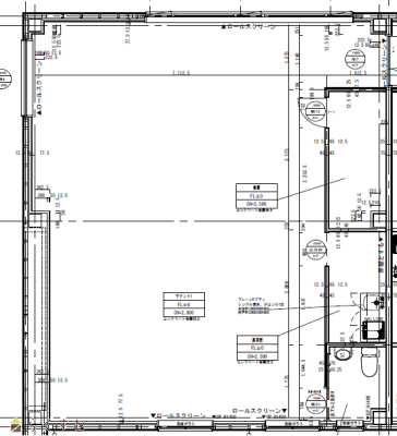
駐車場6台可能
物件画像
物件画像
物件画像
物件画像
詳細☆お気に入り★お気に入り
太刀川写真館貸事務所
    新潟県長岡市上除町西52-2
    (事務所)
    85㎡
    (25.71坪)
    -
    2階
    38年
    15.2万円
    なし
    なし
    2ヶ月
    なし
    なし
    本町三丁目 事務所にどうぞ!男女別トイレあります。
    物件画像
    物件画像
    物件画像
    物件画像
    詳細☆お気に入り★お気に入り
    スガヌマビル
      新潟県上越市本町3-2-31
      (事務所)
      97㎡
      (29.34坪)
      -
      2階
      44年
      15.4万円
      なし
      なし
      30万円
      なし
      なし
      写真たくさんあり!!
      物件画像
      物件画像
      物件画像
      物件画像
      詳細☆お気に入り★お気に入り
      EBPスクエア
      201号室
      • 未入居
      新潟県三条市東裏館2丁目16-15
      (事務所)
      62.47㎡
      (18.89坪)
      -
      -
      1年
      15.5万円
      なし
      なし
      28万円
      なし
      14万円
      写真たくさんあり!!
      VRビューあり!!
      駐車場3台含む
      物件画像
      物件画像
      物件画像
      物件画像
      詳細☆お気に入り★お気に入り
      パキラ半田 店舗・貸事務所
      E号室
        新潟県柏崎市半田2丁目5-11パキラ半田 E号室
        (事務所)
        68.5㎡
        (20.72坪)
        -
        1階
        32年
        16.5万円
        なし
        なし
        1ヶ月
        なし
        1ヶ月
        写真たくさんあり!!
        エレベーター付きオフィスビルです。
        物件画像
        物件画像
        物件画像
        物件画像
        詳細☆お気に入り★お気に入り
        SFビル
        4F号室
          新潟県長岡市沢田1丁目1番6号SFビル4F
          (事務所)
          149.31㎡
          (45.16坪)
          -
          4階
          34年
          16.5万円
          なし
          あり
          3ヶ月
          なし
          なし
          写真たくさんあり!!
          駅近くで利便性の良い立地♪駐車場5台付きで事務所や倉庫など多様な使い方ができます。
          物件画像
          物件画像
          物件画像
          物件画像
          詳細☆お気に入り★お気に入り
          ADI福住ビル
          101号室
            新潟県長岡市福住2-4-44
            (事務所)
            150㎡
            (45.37坪)
            -
            1階
            54年
            16.5万円
            3,300円/月
            なし
            2ヶ月
            なし
            1ヶ月
            写真たくさんあり!!
            大小6つの部屋を用途ごとに使えます
            物件画像
            物件画像
            物件画像
            物件画像
            詳細☆お気に入り★お気に入り
            北城3丁目コスモスビル
              新潟県上越市北城町3丁目5-5
              (事務所)
              115.21㎡
              (34.85坪)
              -
              2階
              52年
              16.5万円
              なし
              あり
              なし
              なし
              なし
              写真たくさんあり!!
              駐車場2台無料!事務所利用でお探しの方へ!!
              物件画像
              物件画像
              物件画像
              物件画像
              詳細☆お気に入り★お気に入り
              ◆貸事務所◆オフィスビルK&B
              1号室
                新潟県三条市興野2丁目1-47
                (事務所)
                76.2㎡
                (23.05坪)
                -
                1階
                28年
                16.5万円
                なし
                あり
                2ヶ月
                なし
                なし
                写真たくさんあり!!
                駅徒歩5分好立地!<現状渡し>
                物件画像
                物件画像
                物件画像
                物件画像
                詳細☆お気に入り★お気に入り
                NNビル
                  新潟県長岡市東坂之上町2丁目4-4
                  (事務所)
                  130.03㎡
                  (39.33坪)
                  -
                  2階
                  44年
                  16.5万円
                  なし
                  なし
                  45万円
                  なし
                  なし
                  写真たくさんあり!!
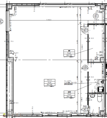
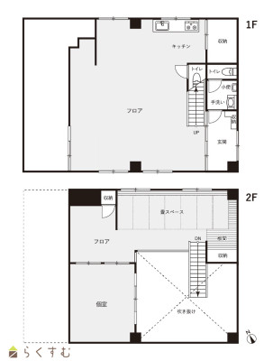
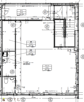
                  1階フリースペース+2階個室 ◆事務所利用や様々な用途に最適な多機能レイアウト◆ 
                  物件画像
                  物件画像
                  物件画像
                  物件画像
                  詳細☆お気に入り★お気に入り
                  ADI福住ビル
                    新潟県長岡市福住2丁目4-44
                    (事務所)
                    152.24㎡
                    (46.05坪)
                    -
                    -
                    54年
                    16.5万円
                    なし
                    あり
                    2ヶ月
                    なし
                    1ヶ月
                    長岡駅から徒歩8分、日当たり良好の角地です。テナントや事務所にちょうど良い広さです。
                    物件画像
                    物件画像
                    物件画像
                    物件画像
                    詳細☆お気に入り★お気に入り
                    ADI福住ビル
                      新潟県長岡市福住2丁目4-44
                      (事務所)
                      150㎡
                      (45.37坪)
                      -
                      1.2階
                      54年
                      16.5万円
                      なし
                      あり
                      2ヶ月
                      なし
                      1ヶ月
                      写真たくさんあり!!
                      長岡駅大手口から徒歩約4分、事務所向け
                      物件画像
                      物件画像
                      物件画像
                      物件画像
                      詳細☆お気に入り★お気に入り
                      高野ビル
                      東号室
                        新潟県長岡市大手通1丁目5-2
                        (事務所)
                        49.58㎡
                        (14.99坪)
                        -
                        3階
                        41年
                        16.5万円
                        なし
                        なし
                        3ヶ月
                        なし
                        なし
                        写真たくさんあり!!
                        VRビューあり!!
                        物件画像
                        物件画像
                        物件画像
                        物件画像
                        詳細☆お気に入り★お気に入り
                        EBPスクエア
                        202号室
                        • 未入居
                        新潟県三条市東裏館2丁目16-15
                        (事務所)
                        80.22㎡
                        (24.26坪)
                        -
                        -
                        1年
                        16.5万円
                        なし
                        なし
                        30万円
                        なし
                        15万円
                        写真たくさんあり!!
                        VRビューあり!!
                        万代橋たもとの好立地♪信濃川を一望できます。
                        物件画像
                        物件画像
                        物件画像
                        物件画像
                        詳細☆お気に入り★お気に入り
                        高野不動産万代橋ビルヂング
                          新潟県新潟市中央区下大川前通2ノ町2230-337BCD
                          (事務所)
                          93.63㎡
                          (28.32坪)
                          -
                          7階
                          35年
                          16.992万円
                          62,300円/月
                          なし
                          6ヶ月
                          なし
                          1ヶ月
                          写真たくさんあり!!
                          駐車場3台分込み!
                          物件画像
                          物件画像
                          物件画像
                          物件画像
                          詳細☆お気に入り★お気に入り
                          木田1丁目貸事務所
                            新潟県上越市木田1丁目1-10
                            (事務所)
                            104.67㎡
                            (31.66坪)
                            -
                            -
                            25年
                            17.38万円
                            なし
                            あり
                            47.4万円
                            なし
                            なし
                            駐車場10台以上可能
                            物件画像
                            物件画像
                            物件画像
                            物件画像
                            詳細☆お気に入り★お気に入り
                            三和町貸事務所・ガレージ
                              新潟県柏崎市三和町1-29
                              (事務所)
                              158.1㎡
                              (47.82坪)
                              -
                              -
                              42年
                              18万円
                              なし
                              なし
                              1ヶ月
                              なし
                              なし
                              写真たくさんあり!!
                              ◇国道18号線近く◇駐車場たっぷりの広い事務所
                              物件画像
                              物件画像
                              物件画像
                              物件画像
                              詳細☆お気に入り★お気に入り
                              桜町 貸事務所
                                新潟県上越市桜町51番地
                                (事務所)
                                198.74㎡
                                (60.11坪)
                                -
                                -
                                32年
                                18万円
                                なし
                                なし
                                1ヶ月
                                なし
                                1ヶ月
                                写真たくさんあり!!
                                柏崎インターより車で直進約4分
                                物件画像
                                物件画像
                                物件画像
                                物件画像
                                詳細☆お気に入り★お気に入り
                                日吉ビル
                                  新潟県柏崎市日吉町3-13
                                  (事務所)
                                  110㎡
                                  (33.27坪)
                                  -
                                  2階
                                  37年
                                  18.15万円
                                  なし
                                  なし
                                  16.5万円
                                  なし
                                  18.15万円
                                  写真たくさんあり!!
                                  長岡駅から徒歩10分の好立地♪
                                  物件画像
                                  物件画像
                                  物件画像
                                  物件画像
                                  詳細☆お気に入り★お気に入り
                                  殿町 二丁目事務所 1階
                                    新潟県長岡市殿町2丁目4番地12
                                    (事務所)
                                    104.7㎡
                                    (31.67坪)
                                    -
                                    1階
                                    43年
                                    18.7万円
                                    なし
                                    なし
                                    18.7万円
                                    なし
                                    18.7万円
                                    写真たくさんあり!!
                                    駐車場4台無料!ロードサイドの1階部分!
                                    物件画像
                                    物件画像
                                    物件画像
                                    物件画像
                                    詳細☆お気に入り★お気に入り
                                    センチュリービル
                                      新潟県三条市本町4丁目6番34号
                                      (事務所)
                                      190.66㎡
                                      (57.67坪)
                                      -
                                      1.2階
                                      38年
                                      18.7万円
                                      なし
                                      あり
                                      2ヶ月
                                      なし
                                      なし
                                      写真たくさんあり!!
                                      表示切替: 一覧表示 地図表示    並び替え:
                                      0件がマッチ
                                      基本条件
                                      物件種別 事務所
                                      賃料


                                      間取り
                                      所在階
                                      面積
                                      築年数
                                      方位
                                      おすすめ条件
                                      情報公開日
                                      0件がマッチ
                                      人気のあるこだわり条件