物件掲載企業数:300|賃貸物件:2,774件|売買物件:3,237件|今週の登録物件:261
閲覧中のブラウザ(インターネットエクスプローラー)は非推奨ブラウザです。
物件が正しく表示されなかったり、正しく検索されない場合があります。最新のブラウザ(Google Chrome・Edgeなど)にてご利用お願いいたします。
  

新潟県長岡市南町1丁目2-30TNビル2F 事務所 14.3万円の物件情報

広くて駐車場2台あり 駅まで徒歩15分

物件名
所在地
面積
間取り
所在階
築年数
方位
賃料
管理費等
共益費
敷金
保証金
礼金
種別
構造
長岡市南町1丁目1-2-30 TNビル2F
新潟県長岡市南町1丁目2-30TNビル2F
118.08㎡
(35.71坪)
-
2階
不詳
-
14.3万円
なし
なし
2ヶ月
なし
なし
事務所
鉄骨鉄筋コン
  • 長岡市南町1丁目1-2-30 TNビル2F
    有限会社 太平住宅長岡
  • この物件を問い合わせる/無料
  • TEL: 0258-36-7160

物件画像

外観 間取り
物件画像
※画像クリックで拡大表示
外観
物件画像
※画像クリックで拡大表示
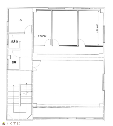
間取り
詳細画像


物件概要

物件コード 00234-100008
物件名 長岡市南町1丁目1-2-30 TNビル2F
交通 駅:上越新幹線 長岡駅から徒歩13分、バス:柏町から徒歩9分
所在地 新潟県長岡市南町1丁目2-30TNビル2F
物件種別 事務所
総戸数 3戸
構造 鉄骨鉄筋コン 階建 地上4階建
所在階/階数 2階/4階 号室 -
面積 118.08㎡ /35.71坪 方位 -
間取り -
賃料 14.3万円/月
管理費 -
礼金 - 敷金 2ヶ月
ほか初期費用 - その他諸費用 -
更新料 - 火災(家財)保険 41,000円
共益費 - 町内費 年12,000円 
駐車場 - バイク料金 -
鍵交換費 - 清掃料 -
更新事務手数料 -
保証区分 連帯保証人のみ
保証会社 区分:指定なし
-
連帯保証人 区分:要
-
仲介手数料 143,000円
築年月 不詳
利用制限 法人:可、ペット:不可、楽器:不可、事務所利用:可、ルームシェア:不可
学校区 千手小学校(525m)・南中学校(130m)
設備 2階以上、融雪設備あり、エアコン、給湯、駐車場あり
入居時期 令和8年7月以降
取引態様 仲介
備考 -
手数料負担割合/配分割合 貸主:0%   借主:100% / 元付:50%   客付:50%  
取り扱い会社

有限会社 太平住宅長岡

新潟県長岡市南町1-2-30

情報登録日 2026/04/10 次回更新予定日 2026/05/01
  • 長岡市南町1丁目1-2-30 TNビル2F
    有限会社 太平住宅長岡
  • この物件を問い合わせる/無料
  • TEL: 0258-36-7160

この物件の地図・周辺情報・行政情報

この物件の周辺情報・行政情報を詳しく見る
【周辺情報】
物件の近くにあるコンビニや銀行・学校など、アイコン付のマップで詳しく表示できます!
【行政情報】
水道料や下水道料・ガス料金など、暮らしに関係のある情報を表示しています。
ローソン 長岡幸町店(コンビニ)まで740m
原信 シビックコア店(スーパー)まで610m
第四北越銀行 長岡南支店(銀行)まで880m
長岡宮原郵便局(郵便局)まで740m

※カメラのアイコンがある場合は、マウスをポイントするとその施設の画像がご覧いただけます。


担当取扱い店舗情報

取扱い店舗画像
有限会社 太平住宅長岡
TEL: 0258-36-7160
所在地: 新潟県長岡市南町1-2-30
交通: 長岡駅
営業時間: 9:00~17:00/定休日:土日祝日(事前予約で定休日でもご案内可)
免許番号: 新潟県知事(5)第4585号 この会社の情報を詳しく見る
所属団体名: 公社 新潟県宅地建物取引協会 長岡支部
取引態様: 仲介
ホームページ: https://www.taiheinagaoka.com/