
南吉田駅、116号線、Next Generation Townにほど近い開発が進んでいるエリアに建つ事務所です。賃料は8万円(税込み)です。5月1日より内覧も可能ですのでお気軽にご連絡ください。













| 物件名 所在地 | 面積 間取り 所在階 | 築年数 方位 | 賃料 管理費等 共益費 | 敷金 保証金 礼金 | 種別 構造 | 
|---|---|---|---|---|---|
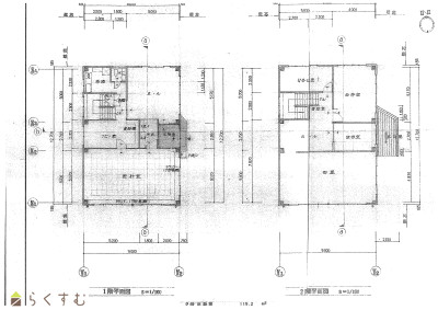
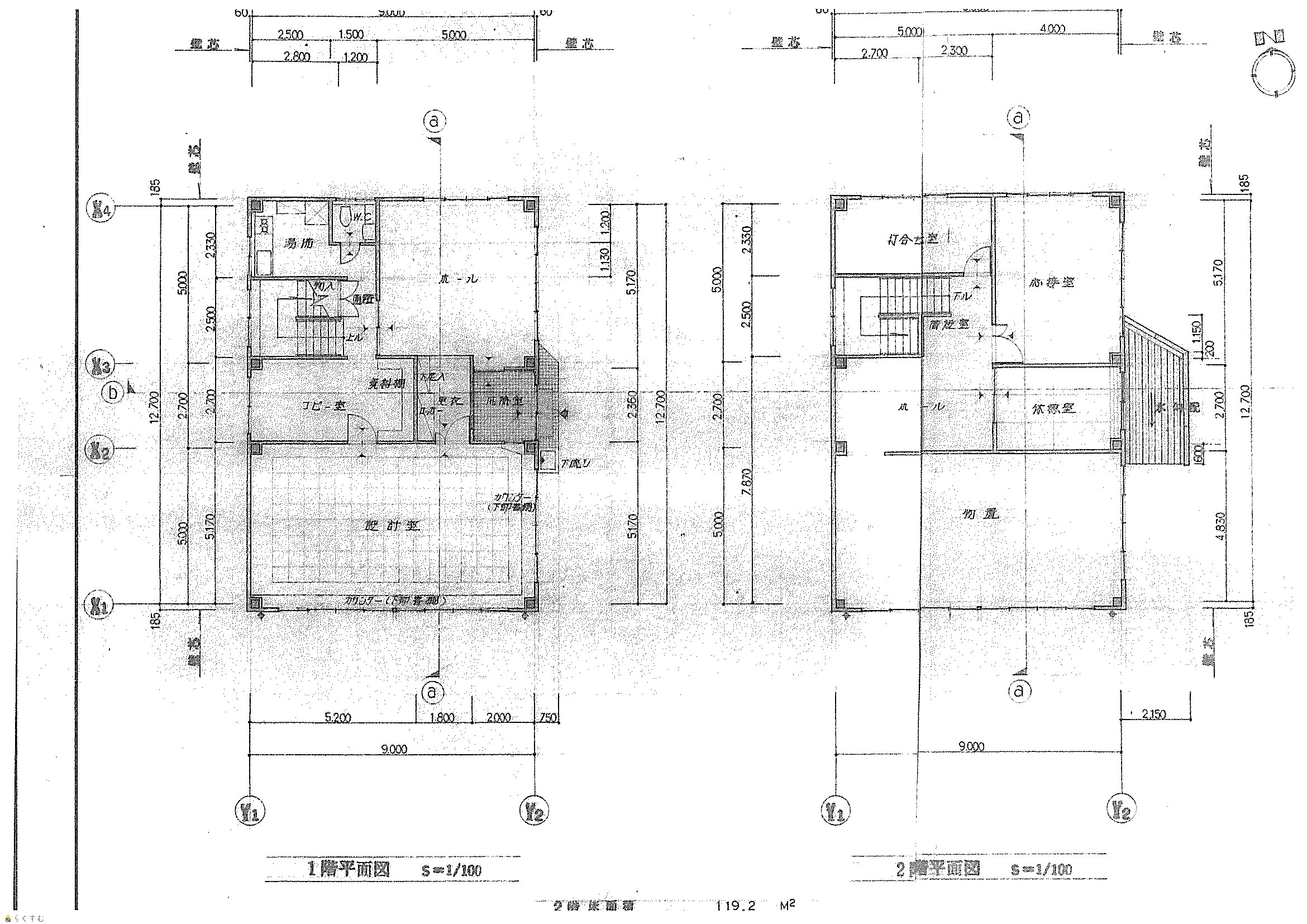
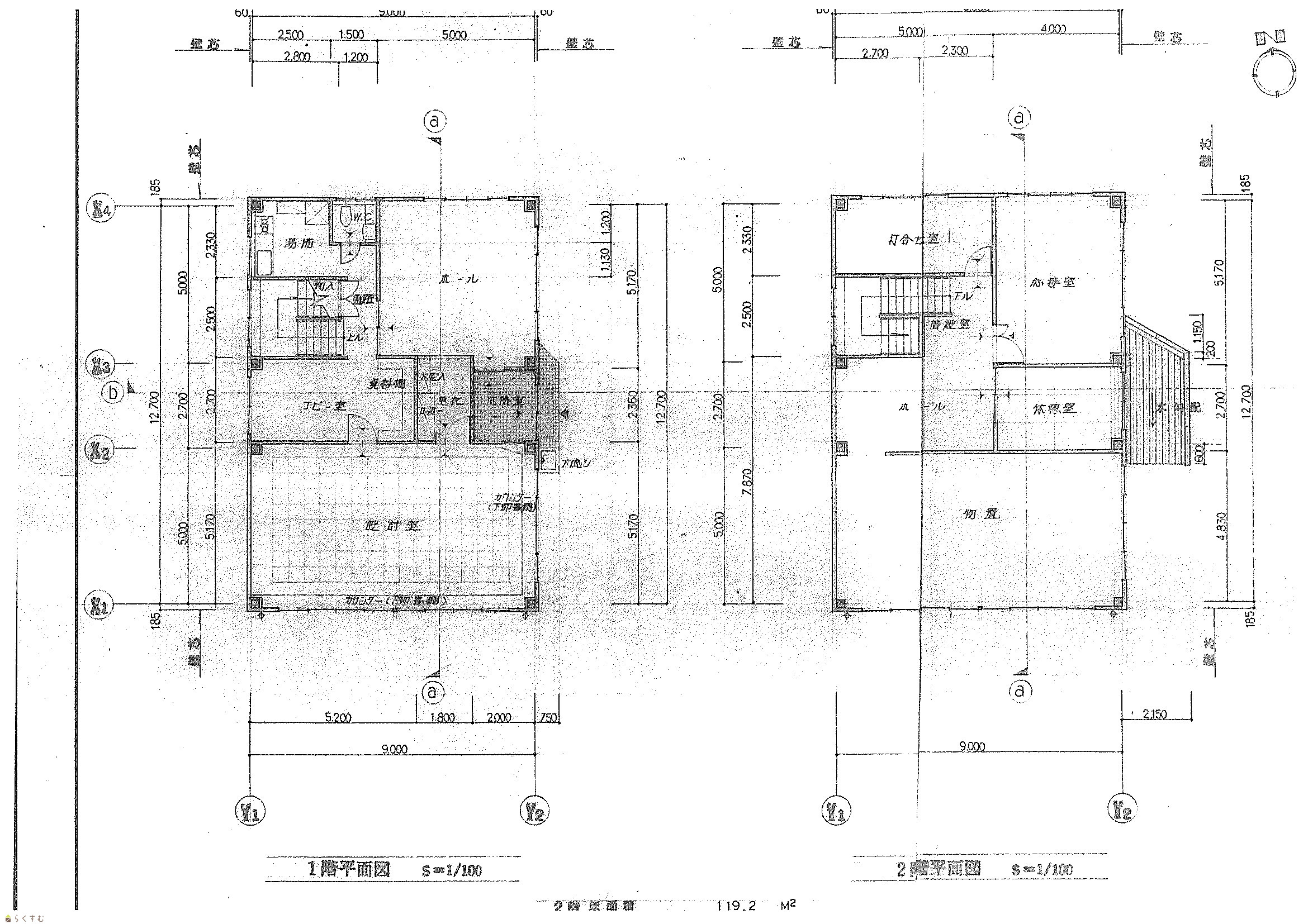
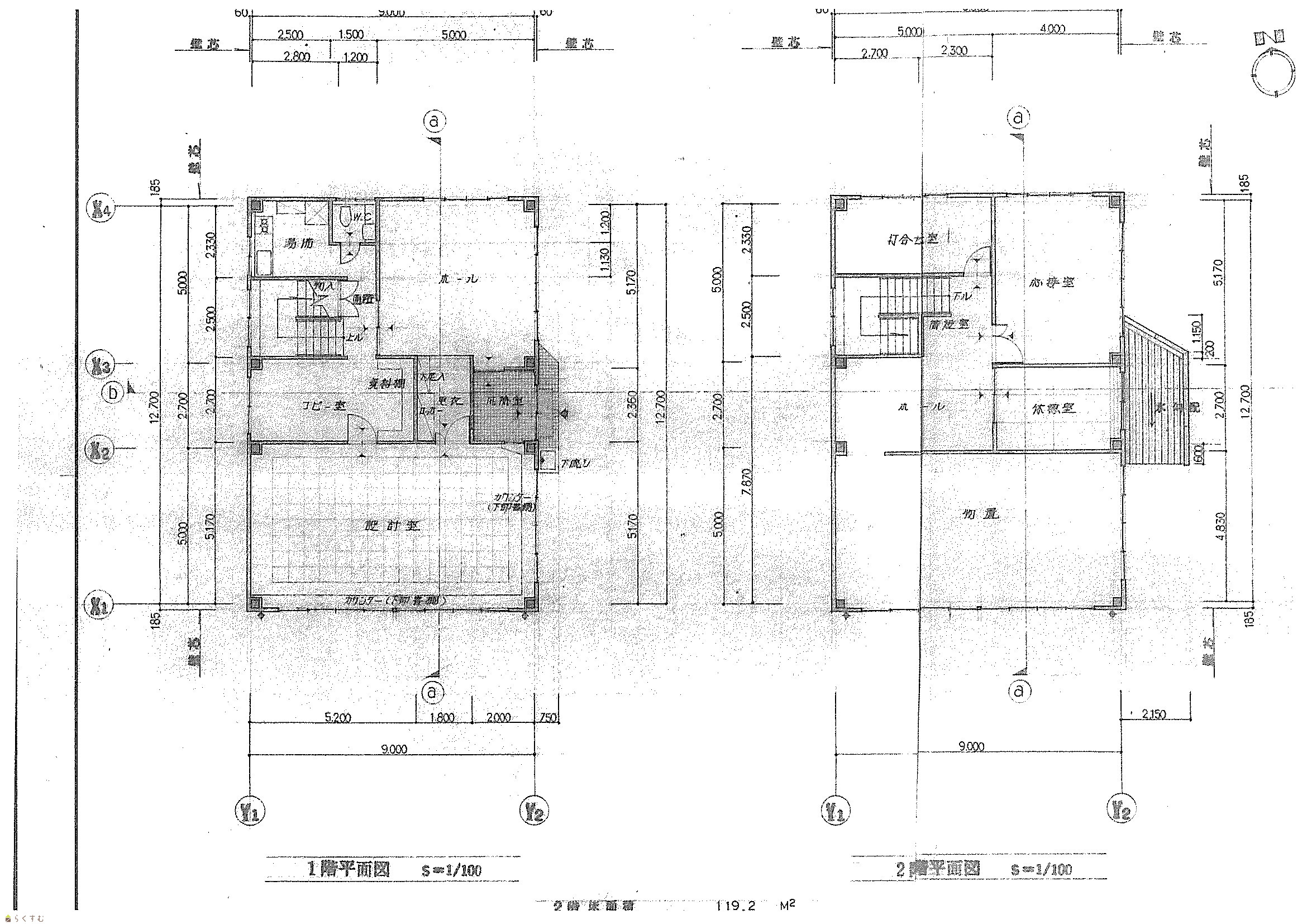
| 燕市吉田貸事務所 新潟県燕市吉田西太田785番地18 | 238.38㎡ (72.1坪) - - | 28年 - | 8万円 なし なし | 3ヶ月 なし なし | 事務所 鉄骨 | 
 
							
						| 残置物は要相談となります。 | |||
| 物件コード | 00196-100107 | ||
|---|---|---|---|
| 物件名 | 燕市吉田貸事務所 | ||
| 交通 | 駅:越後線 南吉田駅から徒歩7分、バス:南吉田駅から徒歩7分 | ||
| 所在地 | 新潟県燕市吉田西太田785番地18 | ||
| 物件種別 | 事務所 | ||
| 総戸数 | - | ||
| 構造 | 鉄骨 | 階建 | 地上2階建 | 
| 所在階/階数 | - | 号室 | - | 
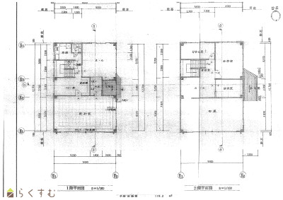
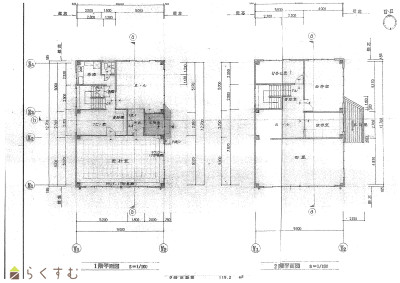
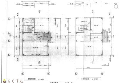
| 面積 | 238.38㎡ /72.1坪 | 方位 | - | 
| 間取り | - | ||
| 賃料 | 8万円/月 | 管理費 | - | 
| 礼金 | - | 敷金 | 3ヶ月 | 
| ほか初期費用 | - | その他諸費用 | - | 
| 更新料 | - | 火災(家財)保険 | 加入の事 | 
| 共益費 | - | 町内費 | 別途町内会へ支払い | 
| 駐車場 | 賃料に込み | バイク料金 | - | 
| 鍵交換費 | - | 清掃料 | - | 
| 更新事務手数料 | - | ||
| 保証区分 | 保証会社のみ | ||
| 保証会社 | 区分:加入要 保証会社名:ジェイリース - | ||
| 家賃保証金 | 80,000円 更新時に賃料の10% | ||
| 連帯保証人 | 区分:不要 - | ||
| 仲介手数料 | 80,000円 | ||
| 築年月 | 1996年12月(築28年) | ||
| 利用制限 | 事務所利用:可 | ||
| 学校区 | 吉田南小学校(633m)・吉田中学校(3,106m) | ||
| 設備 | 融雪設備あり、エアコン、居抜き、スケルトン、駐車場あり | ||
| 入居時期 | 2025年5月1日 | ||
| 取引態様 | 仲介 | ||
| 備考 | 賃貸部分は1階左側の部屋のみですが、その他の部分については相談可能です 右側の部屋は他のテナントが利用中です。トイレ給湯等の水回りは共有スペースとなります | ||
| 手数料負担割合/配分割合 | 貸主:-% 借主:-% / 元付:-% 客付:-% | ||
| 取り扱い会社 | 株式会社 長陵エステート 長岡営業所 新潟県長岡市宮原2丁目13番23号長陵社ビル3階 | ||
| 情報登録日 | 2025/04/10 | 次回更新予定日 | 2025/11/14 | 
 
							
						 
						| TEL: | 0258-86-5133 | |
|---|---|---|
| 所在地: | 新潟県長岡市宮原2丁目13番23号長陵社ビル3階 | |
| 交通: | ||
| 営業時間: | 8:40~17:00/定休日:土曜日曜祭日 | |
| 免許番号: | 新潟県知事(15)第992号 | |
| 所属団体名: | 公社 新潟県宅地建物取引業協会 新潟支部 | |
| 取引態様: | 仲介 | |
| ホームページ: | https://www.choryo-est.co.jp/ | |