| 残置物は要相談となります。 | |||
| 物件コード | 00196-100107 | ||
|---|---|---|---|
| 物件名 | 燕市吉田貸事務所 | ||
| 交通 | 駅:越後線 南吉田駅から徒歩7分、バス:南吉田駅から徒歩7分 | ||
| 所在地 | 新潟県燕市吉田西太田785番地18 | ||
| 物件種別 | 事務所 | ||
| 総戸数 | - | ||
| 構造 | 鉄骨 | 階建 | 地上2階建 |
| 所在階/階数 | - | 号室 | - |
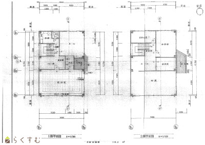
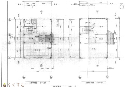
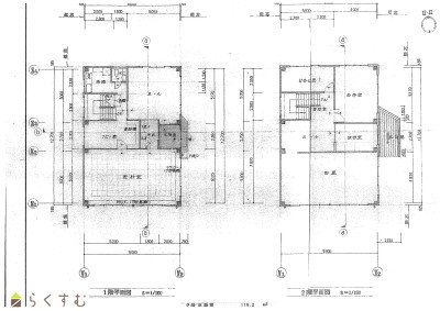
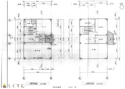
| 面積 | 238.38㎡ (72.1坪) | 方位 | - |
| 間取り |
|
||
| 賃料 | 8万円/月
|
管理費 | - |
| 礼金 | - | 敷金 | 3ヶ月
|
| ほか初期費用 | - | その他諸費用 | - |
| 更新料 | - | 火災(家財)保険 | 加入の事 |
| 共益費 | - | 町内費 | 別途町内会へ支払い |
| 駐車場 |
賃料に込み |
バイク料金 | - |
| 鍵交換費 | - | 清掃料 | - |
| 更新事務手数料 | - | ||
| 保証区分 |
保証会社のみ |
||
| 保証会社 |
区分:加入要 保証会社名:ジェイリース - |
||
| 家賃保証金 |
80,000円
更新時に賃料の10% |
||
| 連帯保証人 |
区分:不要 - |
||
| 仲介手数料 |
80,000円
|
||
| 築年月 | 1996年12月(築29年) | ||
| 利用制限 | 事務所利用:可 | ||
| 学校区 | 吉田南小学校(633m)・吉田中学校(3,106m) | ||
| 設備 | 融雪設備あり、エアコン、居抜き、スケルトン、駐車場あり | ||
| 入居時期 | 2025年5月1日 | ||
| 取引態様 | 仲介 | ||
| 備考 | 賃貸部分は1階左側の部屋のみですが、その他の部分については相談可能です 右側の部屋は他のテナントが利用中です。トイレ給湯等の水回りは共有スペースとなります |
||
| 手数料負担割合/配分割合 | 貸主:-% 借主:-% / 元付:-% 客付:-% | ||
| 情報登録日 | 2025/04/10 | 次回更新予定日 | 2026/03/17 |
|
|
|
|
| TEL: | 0258-86-5133 |
|---|---|
| 所在地: | 新潟県長岡市宮原2丁目13番23号長陵社ビル3階 |
| 交通: | |
| 営業時間: | 8:40~17:00/定休日:土曜日曜祭日 |
| 免許番号: | 新潟県知事(15)第868号 |
| 所属団体名: | 公社 新潟県宅地建物取引業協会 新潟支部 |
| 取引態様: | 仲介 |