
倉庫、物置として利用できます!

| 物件名 所在地 | 面積 間取り 所在階 | 築年数 方位 | 賃料 管理費等 共益費 | 敷金 保証金 礼金 | 種別 構造 | 
|---|---|---|---|---|---|
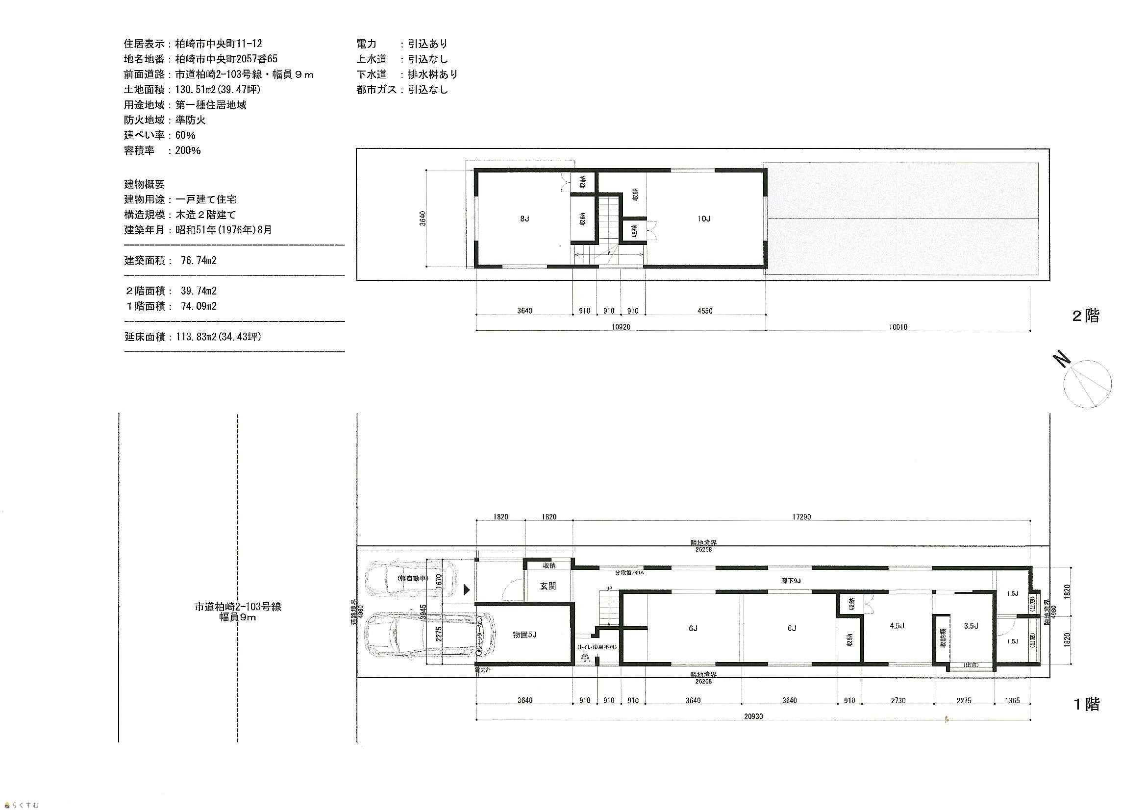
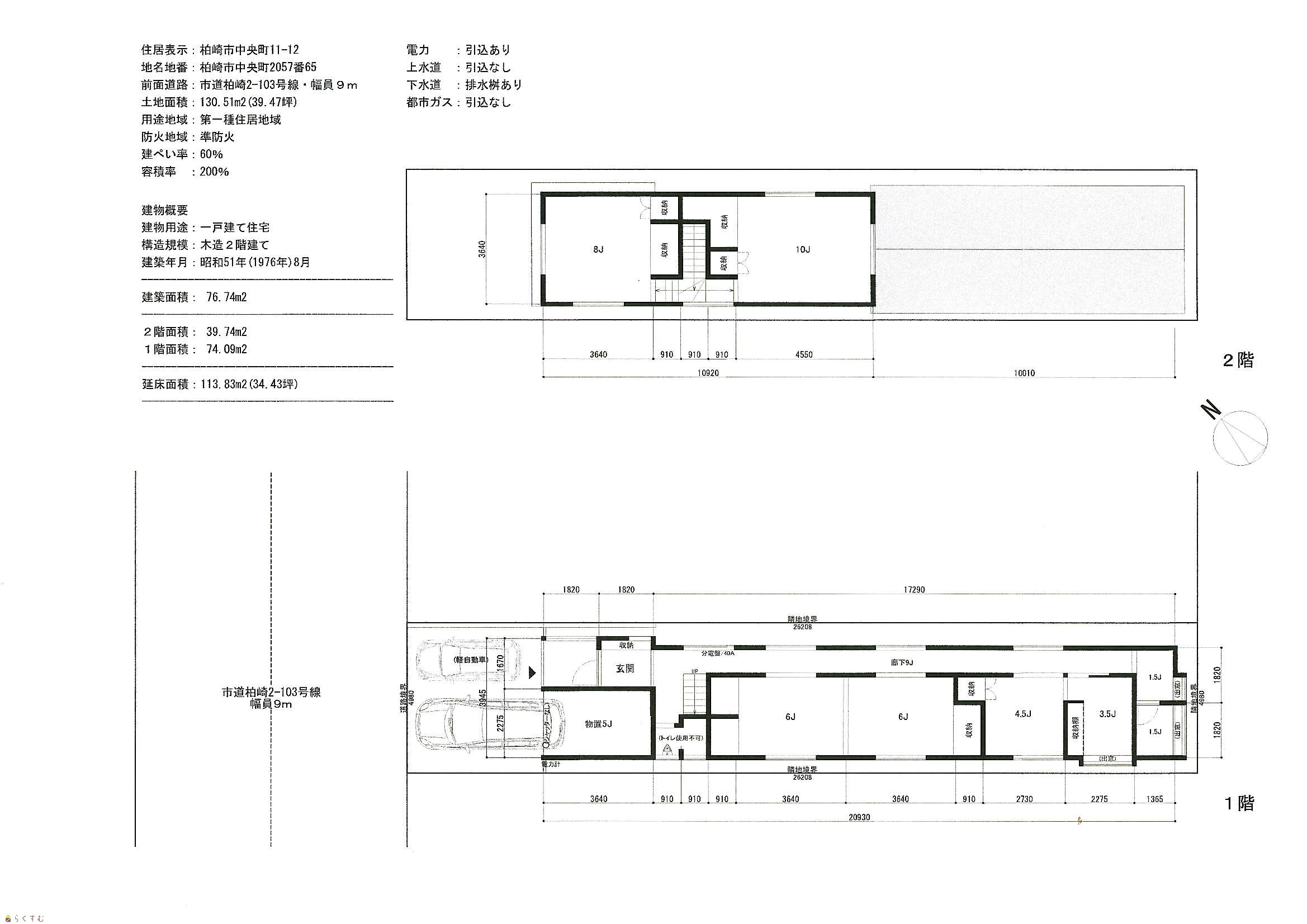
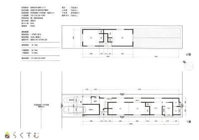
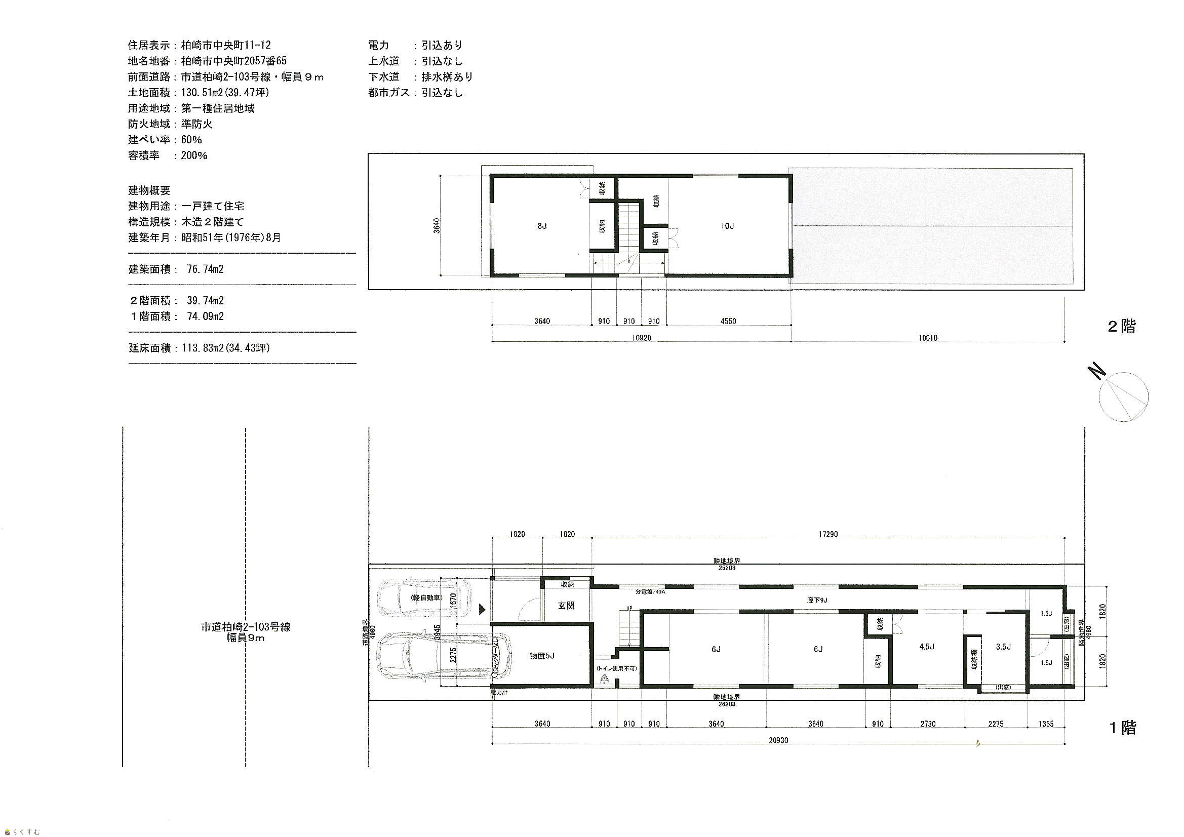
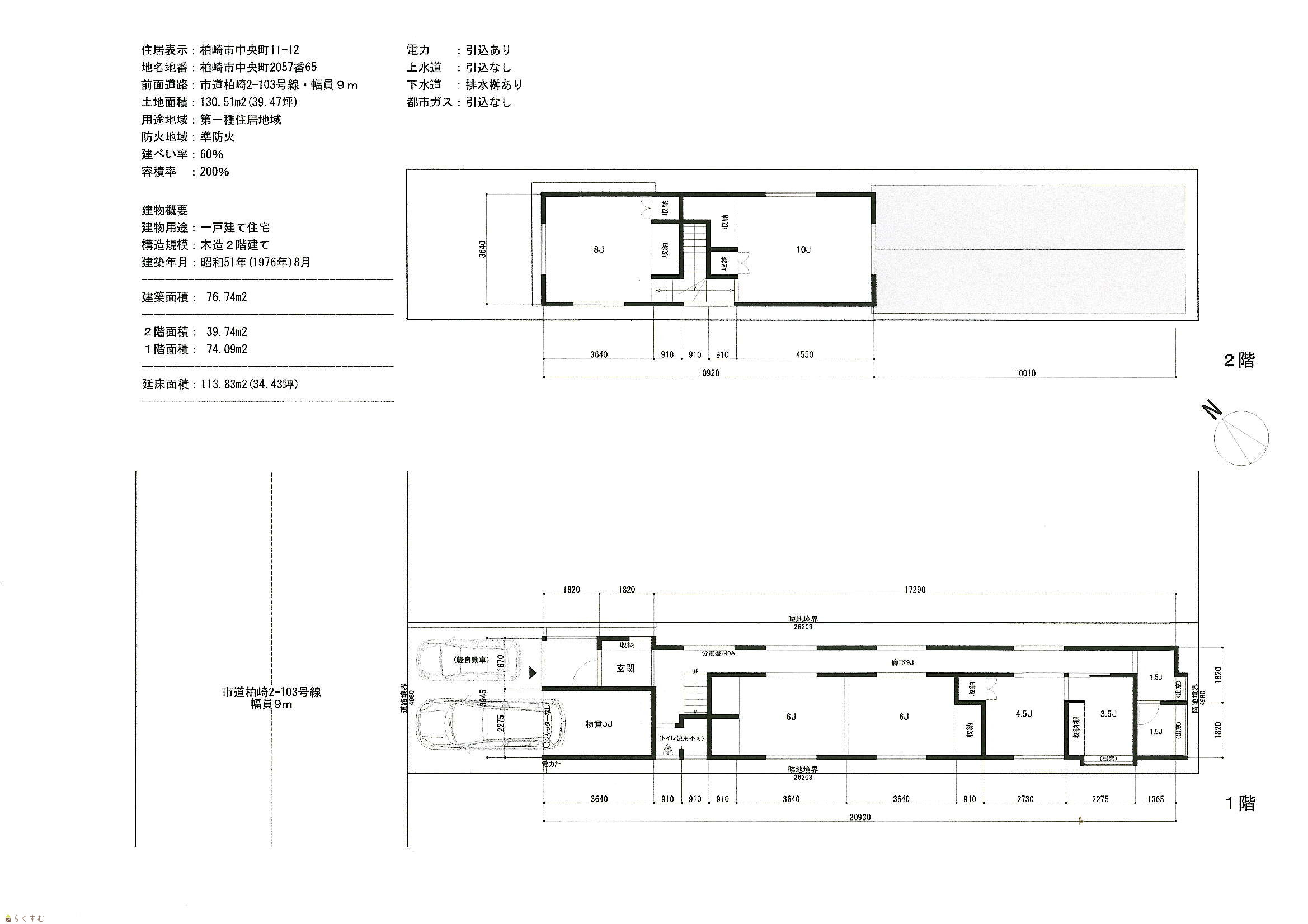
| スペース中央町 新潟県柏崎市中央町11-12 | 113.82㎡ (34.43坪) - - | 49年 - | 3.3万円 なし なし | 2ヶ月 なし なし | 倉庫・工場・その他 木造 | 
 
							
						| 物件コード | 00079-100589 | ||
|---|---|---|---|
| 物件名 | スペース中央町 | ||
| 交通 | 駅:越後線 東柏崎駅から徒歩8分、バス:中央町から徒歩2分 | ||
| 所在地 | 新潟県柏崎市中央町11-12 | ||
| 物件種別 | 倉庫・工場・その他 | ||
| 総戸数 | - | ||
| 構造 | 木造 | 階建 | 地上2階建 | 
| 所在階/階数 | - | 号室 | - | 
| 面積 | 113.82㎡ /34.43坪 | 方位 | - | 
| 間取り | - | ||
| 賃料 | 3.3万円/月 | 管理費 | - | 
| 礼金 | - | 敷金 | 2ヶ月 | 
| ほか初期費用 | - | その他諸費用 | - | 
| 更新料 | - | 火災(家財)保険 | 要加入 | 
| 共益費 | - | 町内費 | 別途 | 
| 駐車場 | 2台可 | バイク料金 | - | 
| 鍵交換費 | - | 清掃料 | - | 
| 更新事務手数料 | - | ||
| 保証区分 | 保証会社+緊急連絡先 | ||
| 保証会社 | 区分:加入要 保証会社名:ジェイリース - | ||
| 連帯保証人 | 区分:不要 - | ||
| 仲介手数料 | 33,000円 | ||
| 築年月 | 1976年8月(築49年) | ||
| 利用制限 | 法人:可、ペット:不可、楽器:不可 | ||
| 学校区 | 柏崎小学校(710m)・第一中学校(575m) | ||
| 設備 | 即引き渡し、駐車場あり | ||
| 入居時期 | 即入居可 | ||
| 取引態様 | 仲介 | ||
| 備考 | - | ||
| 手数料負担割合/配分割合 | 貸主:0% 借主:100% / 元付:50% 客付:50% | ||
| 取り扱い会社 | 株式会社 アーク不動産 新潟県柏崎市幸町3番26アークビル101 | ||
| 情報登録日 | 2025/05/26 | 次回更新予定日 | 2025/11/14 | 
 
							
						| セブン-イレブン 柏崎新花町店(コンビニ)まで110m | 
※カメラのアイコンがある場合は、マウスをポイントするとその施設の画像がご覧いただけます。
| TEL: | 0257-22-6170 | |
|---|---|---|
| 所在地: | 新潟県柏崎市幸町3番26アークビル101 | |
| 交通: | 柏崎駅 | |
| 営業時間: | 9:00~17:30/定休日:土・日・祝日*3月は無休営業致します | |
| 免許番号: | 新潟県知事(7)第4045号 | |
| 所属団体名: | (公社)新潟県宅地建物取引業協会 柏崎支部 | |
| 取引態様: | 仲介 | |
| ホームページ: | http://www.a-ku.co.jp | |