| 物件コード | 00079-100589 | ||
|---|---|---|---|
| 物件名 | スペース中央町 | ||
| 交通 | 駅:越後線 東柏崎駅から徒歩8分、バス:中央町から徒歩2分 | ||
| 所在地 | 新潟県柏崎市中央町11-12 | ||
| 物件種別 | 倉庫・工場・その他 | ||
| 総戸数 | - | ||
| 構造 | 木造 | 階建 | 地上2階建 | 
| 所在階/階数 | - | 号室 | - | 
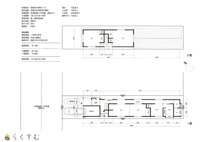
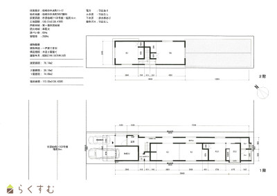
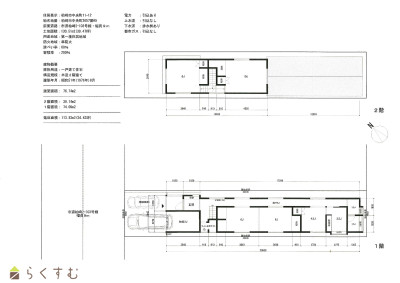
| 面積 | 113.82㎡ (34.43坪) | 方位 | - | 
| 間取り | 
						 | 
					||
| 賃料 | 3.3万円/月
								
								 | 
							管理費 | - | 
| 礼金 | - | 敷金 | 2ヶ月
								
								 | 
						
| ほか初期費用 | - | その他諸費用 | - | 
| 更新料 | - | 火災(家財)保険 | 要加入 | 
| 共益費 | - | 町内費 | 別途 | 
| 駐車場 | 
																									
										
										 2台可  | 
							
							バイク料金 | - | 
| 鍵交換費 | - | 清掃料 | - | 
| 更新事務手数料 | - | ||
| 保証区分 | 
								保証会社+緊急連絡先 | 
						||
| 保証会社 | 
							   区分:加入要 保証会社名:ジェイリース -  | 
							
						||
| 連帯保証人 | 
							   区分:不要 -  | 
						||
| 仲介手数料 | 
								
																	33,000円
									 | 
							
						||
| 築年月 | 1976年8月(築49年) | ||
| 利用制限 | 法人:可、ペット:不可、楽器:不可 | ||
| 学校区 | 柏崎小学校(710m)・第一中学校(575m) | ||
| 設備 | 即引き渡し、駐車場あり | ||
| 入居時期 | 即入居可 | ||
| 取引態様 | 仲介 | ||
| 備考 | - | ||
| 手数料負担割合/配分割合 | 貸主:0% 借主:100% / 元付:50% 客付:50% | ||
| 情報登録日 | 2025/05/26 | 次回更新予定日 | 2025/11/18 | 
							 
						 | 
						
							 
						 | 
					
							 
						 | 
						
							 
						 | 
					
| TEL: | 0257-22-6170 | 
|---|---|
| 所在地: | 新潟県柏崎市幸町3番26アークビル101 | 
| 交通: | 柏崎駅 | 
| 営業時間: | 9:00~17:30/定休日:土・日・祝日*3月は無休営業致します | 
| 免許番号: | 新潟県知事(7)第4045号 | 
| 所属団体名: | (公社)新潟県宅地建物取引業協会 柏崎支部 | 
| 取引態様: | 仲介 |