新潟県小千谷市東栄1丁目7-24 店舗 20万円の物件情報

小千谷市内の人気レストラン(現在営業中)

物件名
所在地
面積
間取り
所在階
築年数
方位
賃料
管理費等
共益費
敷金
保証金
礼金
種別
構造
小千谷市  イタリアンレストラン
新潟県小千谷市東栄1丁目7-24
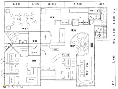
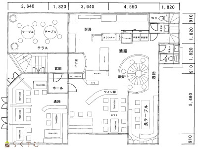
77.11㎡
(23.32坪)
-
2階
39年
-
20万円
6,000円/月
なし
3ヶ月
なし
1ヶ月
店舗
木造
  • 小千谷市  イタリアンレストラン
    ふどうさんの相談所 (ライフデザイン合同会社 イオン長岡店)
  • この物件を問い合わせる/無料
  • TEL: 0258-94-4370 0258-94-4370

物件画像

外観
間取り
物件画像
※画像クリックで拡大表示
外観
物件画像
※画像クリックで拡大表示
2階平面図
詳細画像
物件画像
入口階段
物件画像
店内
物件画像
店内2
物件画像
店内3
物件画像
厨房
物件画像
物件画像
店内入口
物件画像
特別室
物件画像
地図画像


物件概要

物件コード 00039-100090
物件名 小千谷市  イタリアンレストラン
交通 駅:上越線 小千谷駅から徒歩9分、バス:小千谷車庫前から徒歩3分
所在地 新潟県小千谷市東栄1丁目7-24
物件種別 店舗
総戸数 -
構造 木造 階建 地上2階建
所在階/階数 2階/2階 号室 -
面積 77.11㎡ /23.32坪 方位 -
間取り -
賃料 20万円/月
管理費 6,000円/月
礼金 1ヶ月
敷金 3ヶ月
ほか初期費用 - その他諸費用 -
更新料 100,000円
2年毎
火災(家財)保険 賃借人にて借家人賠償保険にご加入ください
共益費 - 町内費 -
駐車場 賃料に含む 10台分 バイク料金 -
鍵交換費 - 清掃料 -
更新事務手数料 -
保証区分 保証会社のみ
保証会社 区分:加入要
保証会社名:ジェイリース
J AKINAI 100% 1年更新10%
家賃保証金 206,000円
連帯保証人 区分:不要
-
仲介手数料 220,000円
築年月 1986年7月(築39年)
利用制限 法人:可、学生:不可、事務所利用:可
学校区 東小千谷小学校(168m)・東小千谷中学校(473m)
設備 2階以上、融雪設備あり、居抜き
入居時期 相談
取引態様 仲介
備考 -
手数料負担割合/配分割合 貸主:-%   借主:100% / 元付:50%   客付:50%  
取り扱い会社

ふどうさんの相談所 (ライフデザイン合同会社 イオン長岡店)

新潟県長岡市古正寺1-249-1イオン長岡店3F

情報登録日 2026/03/15 次回更新予定日 2026/06/13
  • 小千谷市  イタリアンレストラン
    ふどうさんの相談所 (ライフデザイン合同会社 イオン長岡店)
  • この物件を問い合わせる/無料
  • TEL: 0258-94-4370 0258-94-4370

この物件の地図・周辺情報・行政情報

この物件の周辺情報・行政情報を詳しく見る
【周辺情報】
物件の近くにあるコンビニや銀行・学校など、アイコン付のマップで詳しく表示できます!
【行政情報】
水道料や下水道料・ガス料金など、暮らしに関係のある情報を表示しています。

担当取扱い店舗情報

取扱い店舗画像
ふどうさんの相談所 (ライフデザイン合同会社 イオン長岡店)
TEL: 0258-94-4370
所在地: 新潟県長岡市古正寺1-249-1イオン長岡店3F
交通: 長岡駅
営業時間: 10:00~20:00/定休日:年末年始・特別日はお休みいたします
免許番号: 新潟県知事(3)第5090号
所属団体名: 全日本不動産協会 新潟県本部
取引態様: 仲介
ホームページ: http://life-dn.com