| 物件コード | 00039-100090 | ||
|---|---|---|---|
| 物件名 | 小千谷市 イタリアンレストラン | ||
| 交通 | 駅:上越線 小千谷駅から徒歩9分、バス:小千谷車庫前から徒歩3分 | ||
| 所在地 | 新潟県小千谷市東栄1丁目7-24 | ||
| 物件種別 | 店舗 | ||
| 総戸数 | - | ||
| 構造 | 木造 | 階建 | 地上2階建 |
| 所在階/階数 | 2階/2階 | 号室 | - |
| 面積 | 77.11㎡ (23.32坪) | 方位 | - |
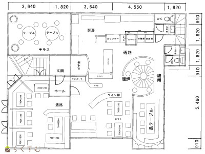
| 間取り |
|
||
| 賃料 | 20万円/月
|
管理費 |
6,000円/月
|
| 礼金 | 1ヶ月
|
敷金 | 3ヶ月
|
| ほか初期費用 | - | その他諸費用 | - |
| 更新料 |
100,000円
2年毎 |
火災(家財)保険 | 賃借人にて借家人賠償保険にご加入ください |
| 共益費 | - | 町内費 | - |
| 駐車場 | 賃料に含む 10台分 | バイク料金 | - |
| 鍵交換費 | - | 清掃料 | - |
| 更新事務手数料 | - | ||
| 保証区分 |
保証会社のみ |
||
| 保証会社 |
区分:加入要 保証会社名:ジェイリース J AKINAI 100% 1年更新10% |
||
| 家賃保証金 |
206,000円
|
||
| 連帯保証人 |
区分:不要 - |
||
| 仲介手数料 |
220,000円
|
||
| 築年月 | 1986年7月(築39年) | ||
| 利用制限 | 法人:可、学生:不可、事務所利用:可 | ||
| 学校区 | 東小千谷小学校(168m)・東小千谷中学校(473m) | ||
| 設備 | 2階以上、融雪設備あり、居抜き | ||
| 入居時期 | 相談 | ||
| 取引態様 | 仲介 | ||
| 備考 | - | ||
| 手数料負担割合/配分割合 | 貸主:-% 借主:100% / 元付:50% 客付:50% | ||
| 情報登録日 | 2026/03/15 | 次回更新予定日 | 2026/06/13 |
|
|
|
|
|
|
| TEL: | 0258-94-4370 |
|---|---|
| 所在地: | 新潟県長岡市古正寺1-249-1イオン長岡店3F |
| 交通: | 長岡駅 |
| 営業時間: | 10:00~20:00/定休日:年末年始・特別日はお休みいたします |
| 免許番号: | 新潟県知事(3)第5090号 |
| 所属団体名: | 全日本不動産協会 新潟県本部 |
| 取引態様: | 仲介 |