新潟県長岡市台町2丁目4番56号 店舗 22万円の物件情報

定期建物賃貸借契約物件  Eプラザ2F貸店舗・30坪 賃料相談可! R8年6月1日より入居可能予定 事前予約にて受付中!

物件名
所在地
面積
間取り
所在階
築年数
方位
賃料
管理費等
共益費
敷金
保証金
礼金
種別
構造
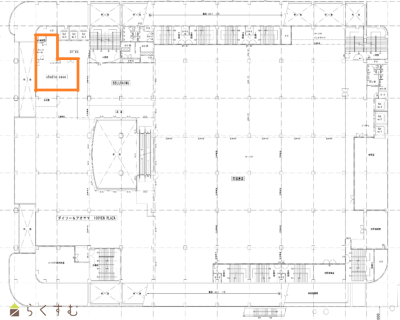
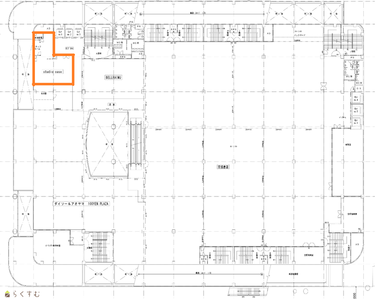
Eプラザ2F 貸店舗
新潟県長岡市台町2丁目4番56号
99.27㎡
(30.02坪)
-
2階
40年
-
22万円
なし
賃料の10%
200万円
なし
なし
店舗
鉄骨鉄筋コン
  • Eプラザ2F 貸店舗
    越後交通 株式会社
  • この物件を問い合わせる/無料
  • TEL: 0258-30-0114 0258-30-0114

物件画像

外観
間取り
物件画像
※画像クリックで拡大表示
外観
物件画像
※画像クリックで拡大表示
間取り
詳細画像
物件画像
印刷用地図


物件概要

定期建物賃貸借契約物件  Eプラザ2F貸店舗・30坪 賃料相談可! R8年6月1日より入居可能予定 事前予約にて受付中!
物件コード 00027-100336
物件名 Eプラザ2F 貸店舗
交通 駅:信越線 長岡駅から徒歩5分、バス:長岡駅東口から徒歩4分
所在地 新潟県長岡市台町2丁目4番56号
物件種別 店舗
総戸数 -
構造 鉄骨鉄筋コン 階建 地上6階地下1階建
所在階/階数 2階/6階 号室 -
面積 99.27㎡ /30.02坪 方位 -
間取り -
賃料 22万円/月
税込み
管理費 -
礼金 - 敷金 200万円
ほか初期費用 - その他諸費用 -
更新料 - 火災(家財)保険 -
共益費 22,000円
賃料の10%
町内費 -
駐車場 料金別途 従業員、来客優遇あり バイク料金 -
鍵交換費 - 清掃料 -
更新事務手数料 -
保証区分 連帯保証人+緊急連絡先
保証会社 区分:指定なし
-
連帯保証人 区分:要
要連帯保証人、 火災保険等を加入の事 
仲介手数料 -
築年月 1985年9月(築40年)
利用制限 学生:不可、子供:不可、ペット:不可、楽器:不可、ルームシェア:不可
学校区 阪之上小学校(233m)・南中学校(1,028m)
設備 融雪設備あり、エアコン、男女トイレ別、エレベーター、駐車場あり
入居時期 R8年6月1日より入居可能予定
取引態様 貸主
備考 ・電気、ガス、水道代は子メーターにて、実測精算します。           ・詳細は、お問い合わせください。
手数料負担割合/配分割合 貸主:-%   借主:-% / 元付:-%   客付:-%  
取り扱い会社

越後交通 株式会社

新潟県長岡市台町2-4-56E・PLAZA1階

情報登録日 2026/03/02 次回更新予定日 2026/03/24
  • Eプラザ2F 貸店舗
    越後交通 株式会社
  • この物件を問い合わせる/無料
  • TEL: 0258-30-0114 0258-30-0114

この物件の地図・周辺情報・行政情報

この物件の周辺情報・行政情報を詳しく見る
【周辺情報】
物件の近くにあるコンビニや銀行・学校など、アイコン付のマップで詳しく表示できます!
【行政情報】
水道料や下水道料・ガス料金など、暮らしに関係のある情報を表示しています。
NewDaysミニ 幹線長岡(コンビニ)まで580m
デイリーヤマザキ 長岡駅東口店(コンビニ)まで310m
NewDaysミニ 長岡2F1号(コンビニ)まで520m
ローソン 長岡駅大手口店(コンビニ)まで660m
ローソン 長岡今朝白一丁目店(コンビニ)まで350m
セブン-イレブン アオーレ長岡店(コンビニ)まで700m
第四北越銀行 長岡東支店(銀行)まで470m
郵便ポスト(郵便局)まで630m

※カメラのアイコンがある場合は、マウスをポイントするとその施設の画像がご覧いただけます。


担当取扱い店舗情報

取扱い店舗画像
越後交通 株式会社
TEL: 0258-30-0114
所在地: 新潟県長岡市台町2-4-56E・PLAZA1階
交通: 長岡駅東口バスロータリー前
営業時間: 10:00~18:00/定休日:なし ※年末年始、GWお盆期間は休日がございます。
免許番号: 新潟県知事(16)566号
所属団体名: 新潟県宅地建物取引業協会 長岡支部
取引態様: 貸主
ホームページ: http://www.echigo-kotsu.co.jp/fudosan/