| 定期建物賃貸借契約物件 Eプラザ2F貸店舗・30坪 賃料相談可! R8年6月1日より入居可能予定 事前予約にて受付中! | |||
| 物件コード | 00027-100336 | ||
|---|---|---|---|
| 物件名 | Eプラザ2F 貸店舗 | ||
| 交通 | 駅:信越線 長岡駅から徒歩5分、バス:長岡駅東口から徒歩4分 | ||
| 所在地 | 新潟県長岡市台町2丁目4番56号 | ||
| 物件種別 | 店舗 | ||
| 総戸数 | - | ||
| 構造 | 鉄骨鉄筋コン | 階建 | 地上6階地下1階建 |
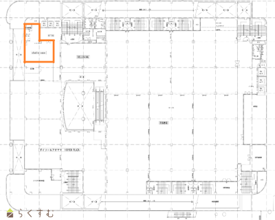
| 所在階/階数 | 2階/6階 | 号室 | - |
| 面積 | 99.27㎡ (30.02坪) | 方位 | - |
| 間取り |
|
||
| 賃料 | 22万円/月
税込み |
管理費 | - |
| 礼金 | - | 敷金 | 200万円
|
| ほか初期費用 | - | その他諸費用 | - |
| 更新料 | - | 火災(家財)保険 | - |
| 共益費 |
22,000円
賃料の10% |
町内費 | - |
| 駐車場 | 料金別途 従業員、来客優遇あり | バイク料金 | - |
| 鍵交換費 | - | 清掃料 | - |
| 更新事務手数料 | - | ||
| 保証区分 |
連帯保証人+緊急連絡先 |
||
| 保証会社 |
区分:指定なし - |
||
| 連帯保証人 |
区分:要 要連帯保証人、 火災保険等を加入の事 |
||
| 仲介手数料 | - | ||
| 築年月 | 1985年9月(築40年) | ||
| 利用制限 | 学生:不可、子供:不可、ペット:不可、楽器:不可、ルームシェア:不可 | ||
| 学校区 | 阪之上小学校(233m)・南中学校(1,028m) | ||
| 設備 | 融雪設備あり、エアコン、男女トイレ別、エレベーター、駐車場あり | ||
| 入居時期 | R8年6月1日より入居可能予定 | ||
| 取引態様 | 貸主 | ||
| 備考 | ・電気、ガス、水道代は子メーターにて、実測精算します。 ・詳細は、お問い合わせください。 | ||
| 手数料負担割合/配分割合 | 貸主:-% 借主:-% / 元付:-% 客付:-% | ||
| 情報登録日 | 2026/03/02 | 次回更新予定日 | 2026/05/22 |
|
|
|
|
| TEL: | 0258-30-0114 |
|---|---|
| 所在地: | 新潟県長岡市台町2-4-56E・PLAZA1階 |
| 交通: | 長岡駅東口バスロータリー前 |
| 営業時間: | 10:00~18:00/定休日:なし ※年末年始、GWお盆期間は休日がございます。 |
| 免許番号: | 新潟県知事(16)566号 |
| 所属団体名: | 新潟県宅地建物取引業協会 長岡支部 |
| 取引態様: | 貸主 |