| 物件コード | 00234-100008 | ||
|---|---|---|---|
| 物件名 | 長岡市南町1丁目1-2-30 TNビル2F | ||
| 交通 | 駅:上越新幹線 長岡駅から徒歩13分、バス:柏町から徒歩9分 | ||
| 所在地 | 新潟県長岡市南町1丁目2-30TNビル2F | ||
| 物件種別 | 事務所 | ||
| 総戸数 | 3戸 | ||
| 構造 | 鉄骨鉄筋コン | 階建 | 地上4階建 |
| 所在階/階数 | 2階/4階 | 号室 | - |
| 面積 | 118.08㎡ (35.71坪) | 方位 | - |
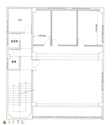
| 間取り |
|
||
| 賃料 | 14.3万円/月
|
管理費 | - |
| 礼金 | - | 敷金 | 2ヶ月
|
| ほか初期費用 | - | その他諸費用 | - |
| 更新料 | - | 火災(家財)保険 |
41,000円
|
| 共益費 | - | 町内費 | 年12,000円 |
| 駐車場 | - | バイク料金 | - |
| 鍵交換費 | - | 清掃料 | - |
| 更新事務手数料 | - | ||
| 保証区分 |
連帯保証人のみ |
||
| 保証会社 |
区分:指定なし - |
||
| 連帯保証人 |
区分:要 - |
||
| 仲介手数料 |
143,000円
|
||
| 築年月 | 不詳 | ||
| 利用制限 | 法人:可、ペット:不可、楽器:不可、事務所利用:可、ルームシェア:不可 | ||
| 学校区 | 千手小学校(525m)・南中学校(130m) | ||
| 設備 | 2階以上、融雪設備あり、エアコン、給湯、駐車場あり | ||
| 入居時期 | 令和8年7月以降 | ||
| 取引態様 | 仲介 | ||
| 備考 | - | ||
| 手数料負担割合/配分割合 | 貸主:0% 借主:100% / 元付:50% 客付:50% | ||
| 情報登録日 | 2026/04/10 | 次回更新予定日 | 2026/05/01 |
|
|
|
|
| TEL: | 0258-36-7160 |
|---|---|
| 所在地: | 新潟県長岡市南町1-2-30 |
| 交通: | 長岡駅 |
| 営業時間: | 9:00~17:00/定休日:土日祝日(事前予約で定休日でもご案内可) |
| 免許番号: | 新潟県知事(5)第4585号 |
| 所属団体名: | 公社 新潟県宅地建物取引協会 長岡支部 |
| 取引態様: | 仲介 |