物件掲載企業数:300|賃貸物件:2,773件|売買物件:3,235件|今週の登録物件:271
閲覧中のブラウザ(インターネットエクスプローラー)は非推奨ブラウザです。
物件が正しく表示されなかったり、正しく検索されない場合があります。最新のブラウザ(Google Chrome・Edgeなど)にてご利用お願いいたします。
  

長岡市新保1丁目16-23 一戸建て 6DK 6.5万円の物件情報

新保地区 6DKの一軒家です。

物件名
所在地
面積
間取り
所在階
築年数
方位
賃料
管理費等
共益費
敷金
保証金
礼金
種別
構造
新保1『中島貸家』 6月より可能になります
1号室
長岡市新保1丁目16-23
153.45㎡
(46.41坪)
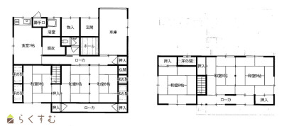
6DK
1階
56年
指定なし
6.5万円
なし
なし
2ヶ月
なし
なし
アパート・マンション・一戸建て
木造
  • 新保1『中島貸家』 6月より可能になります
    ㈱スタッフサイトウ不動産部
  • この物件を問い合わせる/無料
  • TEL: 0258-24-0623

物件画像

外観 間取り
物件画像
※画像クリックで拡大表示
外観
物件画像
※画像クリックで拡大表示
間取り
詳細画像


物件概要

インナー式ガレージ あります。
物件コード 00011-100160
物件名 新保1『中島貸家』 6月より可能になります
交通 駅:信越線 北長岡駅から徒歩15分、バス:新保1丁目から徒歩3分
所在地 長岡市新保1丁目16-23
物件種別 アパート・マンション・一戸建て
総戸数 -
構造 木造 階建 地上2階建
所在階/階数 1階/2階 号室 1号室
面積 153.45㎡ /46.41坪 方位 指定なし
間取り 6DK
追い焚き機能/シャワー
賃料 6.5万円/月
管理費 -
礼金 -
敷金 2ヶ月
ほか初期費用 - その他諸費用 -
更新料 - 火災(家財)保険 15,000円
加入の事
共益費 - 町内費 -
駐車場 - バイク料金 -
鍵交換費 - 清掃料 -
更新事務手数料 -
保証区分 連帯保証人+緊急連絡先
保証会社 区分:指定なし
-
連帯保証人 区分:要
-
仲介手数料 71,500円
築年月 1969年6月(築56年)
利用制限 ペット:不可、楽器:不可
学校区 富曾亀小学校(664m)・東北中学校(753m)
設備 駐車場1台無料、追いだき機能付き、暖房便座、洗面所独立、エアコン2基、都市ガス、洗濯機置場 室内、脱衣所、各居室照明、即入居可
入居時期 相談
取引態様 代理
備考 令和8年6月より入居可能になります
手数料負担割合/配分割合 貸主:-%   借主:100% / 元付:50%   客付:50%  
取り扱い会社

㈱スタッフサイトウ不動産部

新潟県長岡市蔵王2丁目4番17号

情報登録日 2026/04/07 次回更新予定日 2026/05/01
  • 新保1『中島貸家』 6月より可能になります
    ㈱スタッフサイトウ不動産部
  • この物件を問い合わせる/無料
  • TEL: 0258-24-0623

この物件の地図・周辺情報・行政情報

この物件の周辺情報・行政情報を詳しく見る
【周辺情報】
物件の近くにあるコンビニや銀行・学校など、アイコン付のマップで詳しく表示できます!
【行政情報】
水道料や下水道料・ガス料金など、暮らしに関係のある情報を表示しています。
ローソン 長岡新保店(コンビニ)まで210m
セブン-イレブン 長岡永田店(コンビニ)まで520m
良食生活館 川崎店(スーパー)まで730m
原信 新保店(スーパー)まで750m
原信 川崎店(スーパー)まで880m
まつむら第二歯科(病院)までm
大光銀行 新保支店(銀行)までm
しんきん(銀行)までm
長岡永田郵便局(郵便局)までm

※カメラのアイコンがある場合は、マウスをポイントするとその施設の画像がご覧いただけます。


担当取扱い店舗情報

取扱い店舗画像
㈱スタッフサイトウ不動産部
TEL: 0258-24-0623
所在地: 新潟県長岡市蔵王2丁目4番17号
交通: JR北長岡駅
営業時間: 8:30~17:30/定休日:第2・4土曜・日曜・祭日
免許番号: 新潟県知事(2)第5364号 この会社の情報を詳しく見る
所属団体名: 新潟県宅地建物取引業協会 長岡支部
取引態様: 代理
ホームページ: http://hokuetsu-fudousan.com